An Encore For HGA

When a college in Minnesota needed to expand its beloved arts center, it knew where to turn: to Hammel, Green & Abrahamson, the firm it had partnered with four decades before.

10 MIN READ

Come winter, blizzard conditions aren’t uncommon in the Minnesota heartland near St. Joseph, home to the College of Saint Benedict, a 94-year-old Catholic college for women. But no matter the season, there’s always a whirlwind darting about campus in the sprightly, octogenarian person of Sister Colman O’Connell.

Sister Colman, as she’s fondly known, was already a fixture on the bucolic, 292-acre campus back in 1962. A Saint Benedict graduate, she had been teaching here less than 10 years and already been promoted to head of the school’s theater department. That’s how she came to know Curtis Green.

As Sister Colman tells it, Green and his business partner, Dick Hammel, were talented young architects from Minneapolis. They drove north one day and strode confidently across campus to make their pitch for a new residence hall the college wanted to build. But they were late–so late that the nun who met them at the door informed them the issue already had been decided, but please come in anyway. The two upstarts walked in, charmed the committee, and left with the commission.

Unlike the 513-person corporation that Hammel, Green & Abrahamson (HGA) has become today, the practice that Hammel and Green were representing then was just getting off the ground. The architects were inexperienced but impressive in their thoroughness: Sister Colman recalls how they insisted on interviewing students, not just the administration and staff. So when it came time to expand the campus further with an ambitious fine-arts center, it seemed irrelevant that the small-but-promising office in Minneapolis had never done a performance theater. All that mattered, says Sister Colman, was this: “We knew Hammel and Green and thought they were a smart pair.”

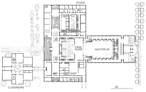
The sisters set their sights high, seeking a sophisticated performance hall for the student body of fewer than 500. Green and Hammel were even more ambitious, convincing the college that its active fine-arts program could support an auditorium for 1,000 people, along with studio space for the theater, art, and music departments.

“All three programs were important from the start,” says Sister Colman, stressing Saint Benedict’s roots. Even in its first incarnation as a tiny academy for girls, it had a stage, and theater productions were serious undertakings. (According to one account, the nun in charge had family resources that enabled her to import a set designer from New York City.) Music and the visual arts were highly regarded in a spiritual culture that values creative expression.

To inform their design process, the architects took their clients on a sweeping tour of fine-arts facilities in the Midwest. All across Michigan, Indiana, Wisconsin, and Minnesota, “We looked at the best auditoriums and the best arts centers,” says Sister Colman. Many were part of huge institutions, such as the University of Michigan, that dwarfed Saint Benedict. “Some had good music departments. Some had good theaters. But it was the rare one that had everything we needed,” she adds. Green also schooled himself by traveling to Europe and visiting Benedictine monasteries. Although his assignment in Minnesota was for a very different type of building, he wanted to wrap it in a skin that evoked the same somber mood.

Dedicated in 1964, the Benedicta Arts Center was immediately hailed as one of the best buildings of its kind. Architecture critics praised the flexibility of the center, with its 973-seat auditorium and 293-seat theater uniquely configured face to face so they could share a common flyloft, with curtains, rigging, and lighting available to both theaters. In addition, the two-part auditorium stage operated on lifts, which allowed limitless options for theatrical and concert setups. Walls in the auditorium were clad with vertical wooden slats, with movable burlap draperies behind to adjust the room’s acoustics. The auditorium quickly earned a reputation for its stellar acoustics, although a 20-ton “sound isolation door” separating the two theaters proved less effective in practice than in theory.

Green’s stately arts center, built in a cornfield somewhat distant from the other campus buildings, soon became the icon that identified the college. With its dark, severe walls and small openings for light, the center possessed monastic qualities that seemed appropriate for the campus culture. More important, it began to draw world-class music and theater to central Minnesota.

“In some people’s minds, it’s the signature building of the campus,” says Jim Fredricks, the college’s facility manager. “Others refer to our performing arts and our building as our football team—some have used that analogy. It serves the function that big-time athletics do on other campuses.”

About the Author

No recommended contents to display.

Upcoming Events

  • Reimagining Sense of Place: Materiality, Spatial Form, and Connections to Nature

    Webinar

    Register for Free
  • Homes that Last: How Architects Are Designing a Resilient Future

    Webinar

    Register Now
All Events