Wilson Residence

Project Details

Project Name
Wilson Residence
Architect
Envision Design
Project Types
Project Scope
Renovation/Remodel
Shared By
Mahesh Rajanala
Project Status
Built
Size
3,800 ft²
Room or Space
Other

Project Description

2005 RADA
Renovation /Merit

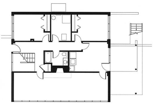
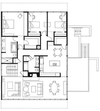
It’s one to thing to overhaul a poorly designed home by an unknown architect, but things get trickier when the house is a classic mid-century Modern by Charles Goodman and sustainability is integral to the program. Architect Kendall Wilson accomplished both demanding tasks for this project while preserving the spirit of the original building. “You could do anything here, but you shouldn’t,” the judges said, admiring Wilson’s restraint.

“We wanted to respect the house, but we also wanted to improve it,” says Wilson, who integrates green design in all his projects. The house is 1,000 square feet larger but notably more energy efficient than the original. Wilson upgraded the roof and wall insulation with formaldehyde-free fiberglass, replaced the energy-hogging windows with insulated units, and installed an efficient mechanical system. He also used earth-friendly products such as bio-based materials, reclaimed brick, and zero-VOC paint. The judges called it a “beautiful extension of an existing house.”

Upcoming Events

  • Design Smarter: Leveraging GIS, BIM, and Open Data for Better Site Selection & Collaboration

    Live Webinar

    Register for Free
  • Slate Reimagined: The Surprising Advantages of Slate Rainscreen Cladding

    Webinar

    Register Now
  • The State of Residential Design Today: Innovations and Insights from RADA-Winning Architects

    Webinar

    Register for Free
All Events