See-Through House

Project Details

Project Name
See-Through House
Project Types
Single Family
Shared By
dmadsen
Project Status
Built
Style
Modern
Size
3,900 ft²

Project Description

Text by Aaron Betsky

Hank Koning, FAIA, and Julie Eizenberg, FAIA, of Koning Eizenberg Architecture eschew grand theories and expressive modes of design. The façade of the 3,100-square-foot house they designed on 12th Street in Santa Monica, Calif., is, according to Eizenberg, “just the outline of what you could build according to zoning and setback requirements.” That the white stucco face, etched against the California sky, recalls a barn in a manner that evokes the open, rough-hewn character of the house’s interior, while alluding to and abstracting the various gambrels and gables of the eclectic group of its surrounding houses, is, she says, a fortuitous accident.

The clients wanted something more than the one-story Spanish Colonial Revival bungalow they owned around the corner, and less than the McMansions that are rapidly replacing similar neighborhood structures. The wife grew up in a traditional Quaker home in Philadelphia, the husband in a Los Angeles midcentury modern house. They wanted, according to the wife, “something simple, not too large nor too cold; a place where I could always feel part of the family even if we’re all off on our own.”

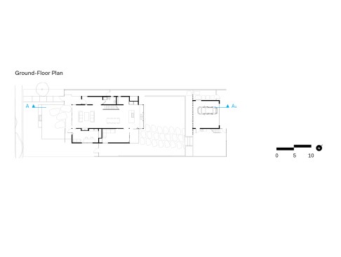
Eizenberg and Koning’s solution was to make the house appear as a single, unified mass, cladding its sides with shingle shakes that will weather in time. The open-plan ground level includes a living area with a heated concrete floor and plain plaster walls.
This room runs the full length of the house to the rear garden and steals “borrowed views,” as Eizenberg calls them, through windows shaded and sheltered from the street with movable panels of ipe wood slats. Past a kitchen island and a counter suspended in a bay window, the space opens to the rear. To either side of the living room, the architects added “saddlebags,” (borrowing Charles Moore’s term) that contain a study and TV room to the south and an entry, toilet, and pantry to the north. Both the staircase to the upper floor and the front of the kitchen island are covered with pegboard, which Eizenberg imagines may host either art or creations by the clients’ children.

Upstairs, the three children’s rooms line up to the south of a high, skylit corridor and gathering space, leaving the north side for one shared bathroom and a utility space. The master suite takes up the floor’s west side, gaining views over the street and beyond. A guest suite occupies the space above a garage at the back of the rear yard.

Modesty and simplicity guide the house’s design, from the arrangement of rooms to finishes and straightforward detailing. The house is familiar in its shapes, modern and functional in its forms, and comfortable in its materials. “I never bought that styles, whether modern or historical, had an ethical value,” Eizenberg says. “We just want to build what works. This is a house where we would want to live.” 

Project Credits
Project: See-Through House, Santa Monica, Calif.
Client: Withheld
Architect: Koning Eizenberg Architecture, Santa Monica, Calif. . Julie Eizenberg, FAIA, Hank Koning, FAIA, Nathan Bishop, Jesse Baiata-Nicolai, Jennifer Rios, Troy Fosler (team)
Structural Engineer: Parker Resnick Structural Engineering
Contractor: William Kent Development
Landscape Architect: Kathleen Ferguson Landscapes
Lighting Designer: Oculus Light Studio
Surveyor: Becker & Miyamoto
Geotechnical: Ralph Stone and Co.
Size: 3,100 square feet (main house); 800 square feet (accessory building); 7,500 square feet (total lot area)
Cost: Withheld

Upcoming Events

  • Design Smarter: Leveraging GIS, BIM, and Open Data for Better Site Selection & Collaboration

    Live Webinar

    Register for Free
  • Slate Reimagined: The Surprising Advantages of Slate Rainscreen Cladding

    Webinar

    Register Now
  • The State of Residential Design Today: Innovations and Insights from RADA-Winning Architects

    Webinar

    Register for Free
All Events