Olympic Tower Residence

Project Details

Project Name
Olympic Tower Residence
Project Types
Multifamily
Project Scope
Interiors
Shared By
mohan reddy
Project Status
Built
Style
Modern
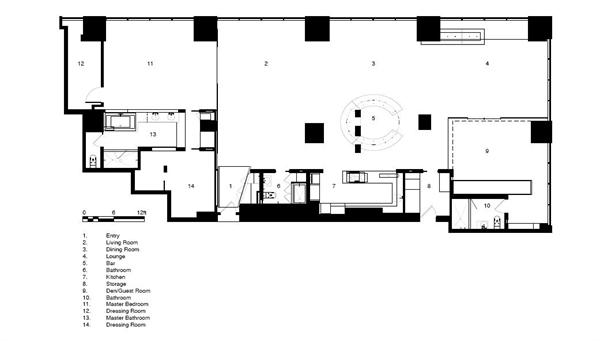
Size
3,400 ft²
Room or Space
Architectural Detail

Project Description

2009 RADA
Architectural Interiors / Merit
The showstopping city views from this Manhattan pied-à-terre created a clear directive for architect Wayne Turett. “The client’s main objective was to display the view,” he explains. “It comes down to not distracting you when you’re looking out the window.” So Turett and his team specified a mostly white palette for the ultra-minimalist, 3,400-square-foot apartment, including white lacquered columns, polished white quartz floors, and a glossy, white-painted ceiling.

“It celebrates New York City,” remarked a judge. “It really takes glamorous architecture to the extreme, in a fun way.”

Upcoming Events

  • Design Smarter: Leveraging GIS, BIM, and Open Data for Better Site Selection & Collaboration

    Live Webinar

    Register for Free
  • Slate Reimagined: The Surprising Advantages of Slate Rainscreen Cladding

    Webinar

    Register Now
  • The State of Residential Design Today: Innovations and Insights from RADA-Winning Architects

    Webinar

    Register for Free
All Events