NASA 3D-Printed Habitat Challenge: Team Gamma

Project Details

Project Name
NASA 3D-Printed Habitat Challenge: Team Gamma
Architect
Foster + Partners
Project Scope
New Construction
Project Status
On the Boards/In Progress

Project Description

FROM FOSTER + PARTNERS NEW YORK:

Foster + Partners New York’s design for a modular habitat on Mars has been shortlisted amongst 30 finalists for
the 3D Printed Habitat Challenge organised by America Makes and NASA. The design outlines plans for a
settlement on Mars constructed by an array of pre-programmed, semi-autonomous robots prior to the eventual
arrival of the astronauts. The design of the habitat – carried out in collaboration with industrial and academic
partners – envisions a robust 3D-printed dwelling for up to four astronauts constructed using regolith – the loose
soil and rocks found on the surface of Mars.

The proposal considers multiple aspects of the project from delivery and deployment to construction and
operations. The habitat will be delivered in two stages prior to the arrival of the astronauts. First, the semiautonomous
robots select the site and dig a 1.5 metre deep crater, followed by a second delivery of the inflatable
modules which sit within the crater to form the core of the settlement. Given the vast distance from the Earth and
the ensuing communication delays, the deployment and construction is designed to take place with minimal
human input, relying on rules and objectives rather than closely defined instructions. This makes the system more
adaptive to change and unexpected challenges – a strong possibility for a mission of this scale.

Three different kinds of robots are parachuted to the surface of Mars, each performing a specialised task within
the large-scale Regolith Additive Construction (RAC) process. The larger ‘Diggers’ create the crater by excavating
the regolith, which the medium-sized ‘Transporters’ then move into position over the inflatable habitat modules
layer by layer. The loose Martian soil is then fused using microwaves around the modules using the same
principles involved in 3D-printing by several small ‘Melters’. The fused regolith creates a permanent shield that
protects the settlement from excessive radiation and extreme outside temperatures. The separation of tasks
amongst the large number of robots, and the modularity of the habitat means a high level of redundancy is
incorporated within the system – if one robot fails, or a single module is damaged, there are others that can fulfil
its task, increasing the chances of a successful mission.

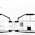
The design of the compact 93 sqm habitat modules combines spatial efficiency with human physiology and
psychology, with overlapping private and communal spaces, finished with ‘soft’ materials and enhanced virtual
environments, which help reduce the adverse effects of monotony, while creating positive living environment for
the astronauts.
This continues the practice’s earlier design explorations for building in extreme environments and extra-terrestrial
habitats such as the Lunar Habitation project in consortium with the European Space Agency. 

Upcoming Events

  • Design Smarter: Leveraging GIS, BIM, and Open Data for Better Site Selection & Collaboration

    Live Webinar

    Register for Free
  • Slate Reimagined: The Surprising Advantages of Slate Rainscreen Cladding

    Webinar

    Register Now
  • The State of Residential Design Today: Innovations and Insights from RADA-Winning Architects

    Webinar

    Register for Free
All Events