Modernized Contemporary

Project Details

Project Name
Modernized Contemporary
Location
GenevaIllinois
Architect
Liv Companies
Project Types
Single Family
Project Status
Built
Year Completed
2016
Size
1,600 ft²

Project Description

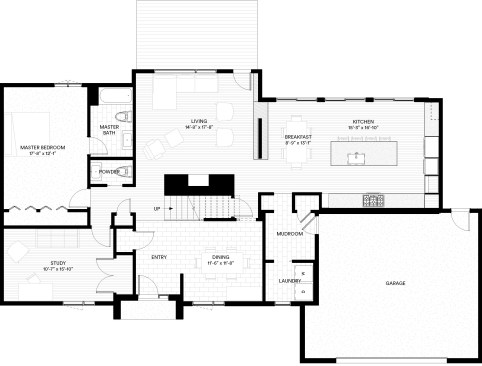
This family came to us with a very cool 1970's home that needed some updating. The home had lots of space, vaulted areas, an overlook, and other interesting elements, but the overall layout left the spaces and circulation with something to be desired. We found the most usable rooms were dark and compartmentalized, and as a result some of the more interesting spaces were under-utilized. The first piece of the plan dealt with expanding the kitchen to better connect the family center to the living spaces and the backyard. in order to do this, we relocated the laundry room and dining room to the front of the house which was previously an unused formal living room. This move allowed us to drastically expand the kitchen and connect it to the new laundry, mudroom, and dining spaces, and the existing fantastically vaulted family room. The reconfiguration of the interior spaces gave us an opportunity to re-design the window and door locations to maximize natural light, and at the same time give the outside of the home a much needed makeover.

Upcoming Events

  • Design Smarter: Leveraging GIS, BIM, and Open Data for Better Site Selection & Collaboration

    Live Webinar

    Register for Free
  • Slate Reimagined: The Surprising Advantages of Slate Rainscreen Cladding

    Webinar

    Register Now
  • The State of Residential Design Today: Innovations and Insights from RADA-Winning Architects

    Webinar

    Register for Free
All Events