Martis Residence

Project Details

Project Name
Martis Residence
Location
TruckeeCA
Project Types
Single Family
Project Status
Built
Year Completed
2013
Size
7,000 ft²

Project Description

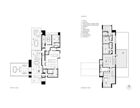
This refined mountain home is designed for a young couple and their children as a retreat from their hectic Silicon Valley lives. Set within a private community near Lake Tahoe, this home provides a peaceful setting for rest, relaxation and entertaining with close friends and family. Formally, the house is conceived as three volumes. The first, a zinc clad ground floor podium containing support, guest quarters and a poker room with wine cellar. The second, a cedar clad private wing contains bedrooms and a playroom for the children. This volume, designed as a truss, hovers above the public spaces at the ground plane below. Buttressed by massive stone walls and balanced on a single column, the volume heroically projects into the surrounding landscape. The master suite reaches towards the distant mountains while the family/bedroom suite extends into the forest. A generous roof terrace provides a private perch nestled within the canopies of the surrounding pines. Lastly, the public spaces at the ground plane are contained within a taut glass line. The entry vestibule, kitchen, informal dining and family room take cover below the mass of the private wing. Oversized glass sliding doors open to the covered terrace, lawn, fire pit and evergreen forest beyond. The formal living space, situated within the pine trunks, is capped with a thin roof. This volume achieves it transparency by employing delicate columns, cable trusses and butt glazed insulated units. From its elevated position it splits the site, defining the private realm and capturing commanding views of the mountains from the edge of the tree line.

Upcoming Events

  • Design Smarter: Leveraging GIS, BIM, and Open Data for Better Site Selection & Collaboration

    Live Webinar

    Register for Free
  • Slate Reimagined: The Surprising Advantages of Slate Rainscreen Cladding

    Webinar

    Register Now
  • The State of Residential Design Today: Innovations and Insights from RADA-Winning Architects

    Webinar

    Register for Free
All Events