Hollenbeck Police Station

Project Details

Project Name
Hollenbeck Police Station
Architect
AC Martin
Project Types
Other
Shared By
xulu
Project Status
Built
Size
54,000 ft²
Certifications & Designations
LEED Gold

Project Description

When the city of Los Angeles announced it wanted to redesign 13 of the city’s aging police stations, architect David Martin set his sights on a station in one of the most dangerous neighborhoods in town: Boyle Heights. “It’s a rough, tough area,” says Martin, principal at local architecture and planning firm AC Martin. “So we thought, of all the sites, we might really be able to make a difference on this one.”

The entrance is located in an undulated glass façade featuring roughly 70 bent frosted-glass panels. Each panel consists of two pieces of bent clear glass laminated together with a translucent interlayer, creating a semi-opacity that obscures what’s going on inside, but still allows light to filter through. The pieces attach to a curtain wall system with a custom aluminum bracket designed in-house at AC Martin, and then further engineered by Dallas-based Curtain Wall Design & Consulting.

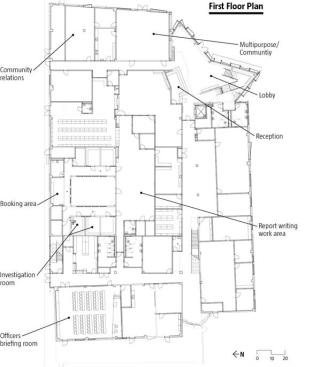
The façade is oriented toward the street, with a fronting plaza area that looks onto a nearby park. The intent was to make a deliberately open area that could be used by the community—and become part of it. A publicly available multipurpose room is designed into the building, so local groups can hold events there. Double doors open the community room up into the plaza, allowing events to spill out into the neighbourhood.

Ensuring the security of police personnel was a top priority in determining the location of windows, holding cells, and detainee processing areas. And while the glass panels on the façade are not bulletproof, the glass behind them is.

Wide hallways make it easier to maneuver with heavy equipment, and recycled rubber floors ease the impact of a long day of standing.

Upcoming Events

  • Design Smarter: Leveraging GIS, BIM, and Open Data for Better Site Selection & Collaboration

    Live Webinar

    Register for Free
  • Slate Reimagined: The Surprising Advantages of Slate Rainscreen Cladding

    Webinar

    Register Now
  • The State of Residential Design Today: Innovations and Insights from RADA-Winning Architects

    Webinar

    Register for Free
All Events