Hollenbeck Police Station

Project Details

Project Name
Hollenbeck Police Station
Architect
AC Martin
Project Types
Industrial
Shared By
Devan
Project Status
Built
Size
179,000 ft²
Certifications & Designations
LEED Gold

Project Description

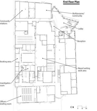
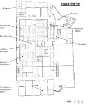
The Hollenbeck Police Station routinely responds to gang violence and drug problems in the neighborhood, and the brutal design of the old building matched the area’s toughness with a hard, unwelcoming exterior. With the replacement station, AC Martin sought to change that.

Instead of unyielding brick walls, the design team made liberal use of glass. The entrance is located in an undulated glass façade featuring roughly 70 bent frosted-glass panels. Each panel consists of two pieces of bent clear glass laminated together with a translucent interlayer, creating a semi-opacity that obscures what’s going on inside, but still allows light to filter through. The pieces attach to a curtain wall system with a custom aluminum bracket designed in-house at AC Martin, and then further engineered by Dallas-based Curtain Wall Design & Consulting. While the glass panels on the façade are not bulletproof, the glass behind them is. The effect is a sculptural, staccato display that serves Martin’s idea of literal and figurative transparency, an important tool in building trust with the community. Fully operational since July, the station is on its way to earning LEED Gold certification

Read the full article: http://architectmagazine.stg.zonda.onl/institutional-projects/hollenbeck-police-station.aspx

Upcoming Events

  • Design Smarter: Leveraging GIS, BIM, and Open Data for Better Site Selection & Collaboration

    Live Webinar

    Register for Free
  • Slate Reimagined: The Surprising Advantages of Slate Rainscreen Cladding

    Webinar

    Register Now
  • The State of Residential Design Today: Innovations and Insights from RADA-Winning Architects

    Webinar

    Register for Free
All Events