Chioco Tiny Victories

Project Details

Project Name
Chioco Tiny Victories
Location
Austin Texas
Architect
Chioco Design
Project Types
Single Family
Project Scope
New Construction
Shared By
Madeleine D’Angelo
Project Status
Built
Year Completed
2020
Size
200 ft²

Project Description

This project is part of “Small Houses, Big Impact,” which appeared in the April 2021 issue of ARCHITECT .

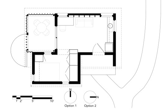
When Chioco Design began the Tiny Victories 2.0 process, the team “perhaps arrogantly assumed that all residents would prioritize the same things we value as designers: copious natural light, connection to the outdoors, open plan,” explains founding principal, Jamie Chioco, Assoc. AIA. Instead, their home’s resident, a woman who had been chronically homeless for decades, was looking for something functional. “It challenged us as architects to look past our Modernist tendencies, which are rife with privilege, toward a more practical sense of comfort and safety,” Chioco says. By offsetting the living area and sleeping area from the main kitchenette, the firm created a sense of multiple rooms, hoping to lend the 200-square-foot project a spacious feel. The firm exposed the project’s interior framing wall in an effort to save square footage, and then built ample shelving into the wall as another nod to function. Light spills into the house through operable windows, which also ensure proper cross ventilation, and a private screen porch extends off the back of the house.

Project Credits
Project: Chioco Tiny Victories, Community First! Village, Austin, Texas
Architects: Chioco Design, Austin. Jamie Chioco, Assoc. AIA (principal), Ben Dimmitt (project manager), Christy Taylor, AIA (project designer), Mike Chaveriat (project designer), Irela Casanova (intern)
General Contractor: IE2 Construction, Fey Carroll (senior project manager), Bert Schnoebelen (project manager)
Size: 200 square feet (residence), 60 square feet (screened porch)
Cost: $20,000 (material cost only)

Materials and Sources
Countertops: Daltile
Wallcoverings: Daltile
Windows and Doors: Cornerstone Windows, Pinnacle Doors

FROM THE ARCHITECTS:

Shelia’s Home is located in Phase II of the Community First Village, a neighborhood of tiny homes located just outside the city limits of Austin. It is a community dedicated to the respectful housing and comprehensive welfare of people who have struggled with chronic and sustained homelessness. This village of tiny homes includes numerous onsite staff and volunteers to foster a sense of belonging, as well as support communities that provide jobs, healthcare, and career services, including: an outdoor cinema, a community metalworking forge, auto mechanic garage, screenprinting press, and art studios.Chioco Design was one of five architecture firms selected to participate in the design and construction of a custom tiny home for one of the residents. AIA Austin’s Design Voice Committee, which focuses on design and community outreach, organized the competition and subsequent design charrettes. Each firm was partnered with a “Seed Neighbor”, a longtime resident of the village, who would be integrally involved in the design process and ultimately ‘seed’ the next phase of houses for future residents.

Upcoming Events

  • Design Smarter: Leveraging GIS, BIM, and Open Data for Better Site Selection & Collaboration

    Live Webinar

    Register for Free
  • Slate Reimagined: The Surprising Advantages of Slate Rainscreen Cladding

    Webinar

    Register Now
  • The State of Residential Design Today: Innovations and Insights from RADA-Winning Architects

    Webinar

    Register for Free
All Events