Castelldefels

Project Details

Project Name
Castelldefels
Architect
Ral Arquitectes
Project Types
Project Scope
New Construction
Shared By
Ashleigh Popera
Project Status
Built
Year Completed
2017
Team

Project Description

FROM THE ARCHITECTS:

The building is situated in residential development that is located a few kilometers from the sea line in the town of Castelldefels, very close to the city of Barcelona. Castelldefels sits on a large sand dune next to the sea frequented all year by visitors. Urban planning of the neighborhood sets densities higher than desired, which means that relations between adjacent houses and even with the front edged line become somewhat uncomfortable, especially in contrast to the apparent isolation of the area. On this particular plot was another small stumble of five stories in the form of a block of multi-family houses in the northeast, although a row of old poplars would deal with this issue.

The proportion and dimensions of the plot contrasted with demands, and forced a layout where a long wall and a long facade were established parallel to the street, both with southward orientations, through which would pass almost all the relations that the building would establish with its surroundings beyond its own limits. We began to work on this and see how it could deal with the exterior beyond the specific thickness, and we decided to wrap the house with a grid of large format pieces.

Gaps in the exterior found their place through the formation of patios or terraces, appearing as subtracted volumes introducing the idea of a "fortress”. There is also a respectable cantilever which is responsible for housing the porch linked to the living room and the pool, the perception of which will change depending on the usability of mobile lattice pieces.

In this way, I like to think that if the house finds its place in the neighborhood, it is partly thanks to its contradictory nature. It may be that a building without a clear formal expression is also somewhat contradictory.

The old poplars on the back façade are tall trees with deciduous leaves that in spring and summer become very populated. These leaves receive solar radiation from early in the morning until just before noon. When the rays of light cross the first leaves that stand in their way, they project a perfectly defined flat shadows on the posterior facade, but in turn, behave as a convergent lens that generates a new projection of the other leaves, and so on. It produces a different resolution and complex projection where the leaf is both light and an obstacle.

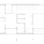
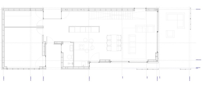
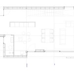
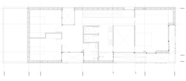
Inside there is a space containing kitchen, dining room and living room, as well as a guest room, laundry room and a small toilet. The staircase is very close to the exit to the porch and leads to a "children's quarters" formed by a game room from which you can access both bedrooms and a bathroom. All these pieces are related to the outside by terraces within the built volume. The master bedroom above the cantilever is connected to the bathroom via the double space of the living room. The unfolding of the facade at this point allows the appearance of terraces around the entire room.

The building sits on a reinforced concrete slab just a few centimeters from the water and will be practically the only element of the house manufactured with wet processes. From this slab starts a structure of rolled steel. This is responsible for the existence of the cantilever, and constitutes a first disjointed skeleton in the absence of the appearance of the rest of structure, composed of “C” galvanized steel profiles assembled by screws. The enclosures are also dry made by layers, as well as a ventilated façade of wood and cement composed panels.

Editor's note: This description has been edited for clarity.

Upcoming Events

  • Slate Reimagined: The Surprising Advantages of Slate Rainscreen Cladding

    Webinar

    Register Now
  • The State of Residential Design Today: Innovations and Insights from RADA-Winning Architects

    Webinar

    Register for Free
  • Specifying Smarter with Copper-Clad Aluminum (CCA) Metal-Clad Cable

    Webinar

    Register for Free
All Events