Camano Island Library Remodel

Project Details

Project Name
Camano Island Library Remodel
Location
848 N Sunrise DriveCamano IslandWAUSA98282
Project Scope
Renovation/Remodel
Shared By
Dan Nelson
Project Status
Built
Year Completed
2016
Style
Modern
Size
5,000 ft²
Team
Principal Architect: Dan Nelson
Library Specialist/Architect: Stig Carlson Architecture
Project Architect: Jayme Zold
Room or Space
Other

Project Description

In June, 2007, a pilot project library, funded by the Sno-Isle Library, opened on Camano Island. This non-traditional library operated out of retail space at the gateway to Camano Island. It quickly became clear that the community needed a permanent, larger home for their local library. When an adjacent local restaurant became available in 2013, Sno-Isle jumped at the chance to purchase the building and successfully passed a bond in 2014 to fund renovation and expansion of the structure to serve as a permanent community library.

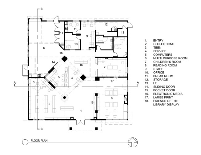
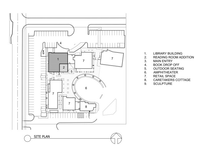
The existing 4,500 square foot restaurant building was located on a site within the Camano Commons retail development. The structure was surrounded by parking & service areas on three sides and the remaining façade faced southeast to a common courtyard/public space. Interiors were divided into various dining areas, kitchen and ancillary spaces. Through an intensive series of staff workshops and public meetings, a number of goals and priorities were established for the project:

 Clearly identify the facility as a public library, while re-using as much of the existing building structure as possible
 Locate a new building entrance that is identifiable, accessible, and pedestrian-friendly
 Add additional space to the existing structure to accommodate a reading room (approximately 500 SF)
 Create a strong connection between the library and public open space to the southeast
 Open up the interior of the space for ease of circulation and staff monitoring
 Add a sense of volume and additional natural light to a relatively dim, confined space while still controlling acoustics
 Update building mechanical, electrical & lighting systems with modern energy efficient equipment

The Architect for the library renovation was also the designer of the original structure, which gave them a thorough understanding of the site and structural constraints. The design solution includes a new entry located on the courtyard side of the building. It has clear visual access from parking areas but also provides a buffer between pedestrian and the parking area. Larger windows were added to the building to provide views both into and out of the facility, to bring in added natural light and to create a strong visual connection to the public courtyard. An existing outdoor terrace was enclosed and became a reading room which looks out to the commons area. The team worked with local artists to install public art in the landscape areas. On the interior of the building, customer service functions were located in a central, clerestory-lit space. Dark finishes and lowered ceilings were removed and new acoustical panels added to give a sense of volume. New lighting throughout the building utilizes efficient lighting strategies and technologies including zoning & controls to take advantage of daylighting, occupancy sensors and LED fixtures. The project was successfully completed within an aggressive schedule of approximately one year for design/permit/bid/construction and within a relatively modest construction budget of approximately $160/sf. This project earned a NWAIA Citation Award for 2016.

Upcoming Events

  • Design Smarter: Leveraging GIS, BIM, and Open Data for Better Site Selection & Collaboration

    Live Webinar

    Register for Free
  • Slate Reimagined: The Surprising Advantages of Slate Rainscreen Cladding

    Webinar

    Register Now
  • The State of Residential Design Today: Innovations and Insights from RADA-Winning Architects

    Webinar

    Register for Free
All Events