Box & One Lofts

Project Details

Project Name
Box & One Lofts
Project Types
Multifamily
Project Scope
New Construction
Shared By
Rafi
Project Status
Built
Size
7,318 ft²
Room or Space
Other

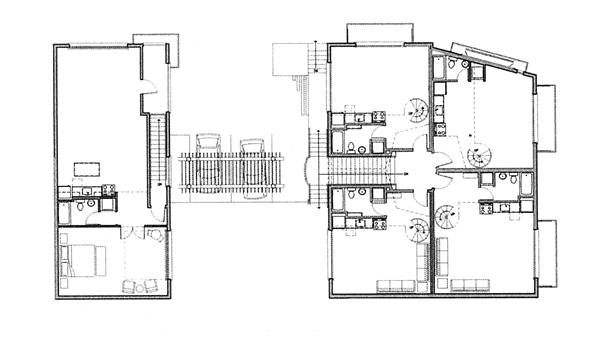
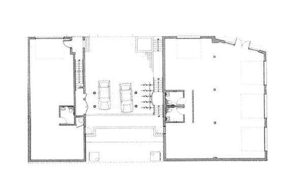
Project Description

2003 RADA
Multifamily / Merit

This is urban living,” said the jury, who were impressed by the project’s strong indoor-outdoor connections and neighborhood feel.

Kevin Cavenaugh, an intern with FFA, bought an undeveloped urban infill lot and turned it into two live/work buildings, with commercial spaces (currently a bakery and a wine bistro) on the ground floors and loft apartments above. “I’ve always wanted to design a building with garage doors and radiant heated concrete floors,” says Cavenaugh. “So I decided to be my own client and just do it.”

Commercial garage doors were custom-fit with argon-filled glazing; 8-inch-thick concrete floors are the sole heat source. As a pleasant surprise after the design was complete, FFA discovered the project qualifies for the U.S. Green Building Council’s Leadership in Energy and Environmental Design (LEED) certification.

Upcoming Events

  • Design Smarter: Leveraging GIS, BIM, and Open Data for Better Site Selection & Collaboration

    Live Webinar

    Register for Free
  • Slate Reimagined: The Surprising Advantages of Slate Rainscreen Cladding

    Webinar

    Register Now
  • The State of Residential Design Today: Innovations and Insights from RADA-Winning Architects

    Webinar

    Register for Free
All Events