Abbot Kinney Lofts

Project Details

Project Name
Abbot Kinney Lofts
Project Types
Multifamily
Project Scope
New Construction
Shared By
Mahesh Rajanala
Project Status
Built
Size
3,400 ft²
Room or Space
Other

Project Description

2009 RADA
Multifamily / Merit

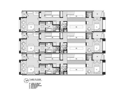
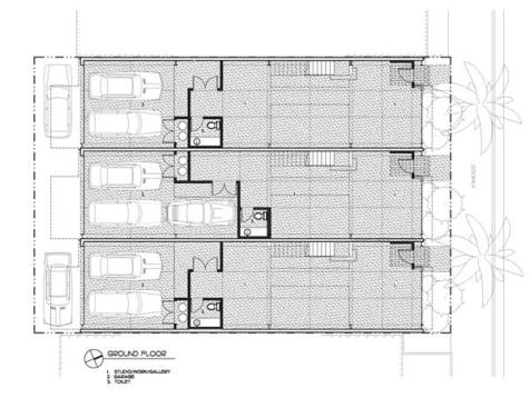
Drawing inspiration from the eclecticism of Venice, Calif., Equinox Architecture designed Abbot Kinney Lofts as an antidote to the stark white contemporary boxes going up in the neighborhood.
Adaptable to owners’ changing needs, the 20-foot-wide units are a mix of exposed elements on the lower levels, but transition to warmer materials and a more residential layout on the upper floors. “The materials are honest and true and pick up on industrial loft living,” says Jim Gelfat. The lofts’ materials reference the area’s commercial pedigree, but a warm, rusted steel-and-ceramic mural depicting Venice street life gives back to the community in a personal way.

The judges praised the connection to the street: “There’s a lot going on,” said one, “but not too much.”

Upcoming Events

  • Design Smarter: Leveraging GIS, BIM, and Open Data for Better Site Selection & Collaboration

    Live Webinar

    Register for Free
  • Slate Reimagined: The Surprising Advantages of Slate Rainscreen Cladding

    Webinar

    Register Now
  • The State of Residential Design Today: Innovations and Insights from RADA-Winning Architects

    Webinar

    Register for Free
All Events