Firm leadership: Alison Von Glinow, AIA, and Lap Chi Kwong
Year founded: 2017
Location: Chicago
Firm size: Two partners and three to five interns
How founders met: At the Harvard Graduate School of Design

courtesy Kwong Von Glinow
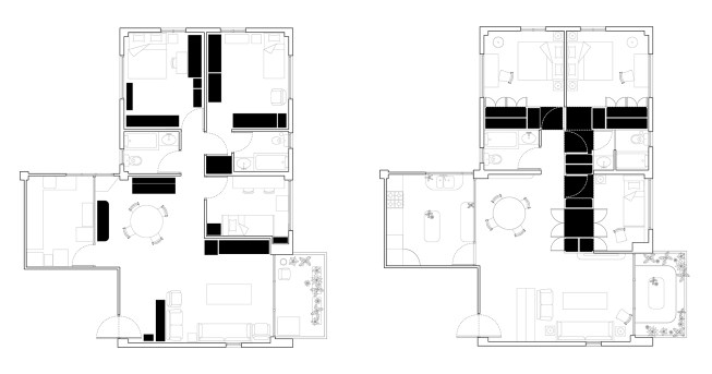
Kwong Von Glinow served as developer and architect for Ardmore House, a spec home in Chicago that defies convention by placing the bedrooms on the lower level and the shared living spaces on the second floor.

courtesy Kwong Von Glinow
Ardmore House
Experience: Von Glinow: Herzog & de Meuron, Skidmore, Ownings & Merrill (Chicago and New York offices), Toshiko Mori Architect, Svendborg Architects; Kwong: Herzog & de Meuron, Schacht Aslani Architects.
Firm mission: “Enjoy architecture.” When we first put the two words together, it sounded quite odd in a good way. “Architecture” tends to sound serious and critical, while “enjoy” is a little too lighthearted for the context of architecture. We like that tension. The phrase “enjoy architecture” has emerged as an attitude as well as an approach and mission in our office.
First commission: The Storage “T”

courtesy Kwong Von Glinow
The Storage “T,” an apartment renovation in Hong Kong, combines all of the closet and storage spaces into one T-shaped unit that serves as the defining element of the layout.

courtesy Kwong Von Glinow
Rather than rely on part-to-whole storage products, the “Storage T” is an architectural device organizing the layout and contents of the apartment.
Favorite project and why: Ardmore House. After working through several housing competitions that tested new values for living, we wanted to bring those values to a built reality. We received several inquiries for housing developments but found it is not easy to convince potential clients of the value of shared spaces and light and air without a built precedent. We decided to put these values to the test in our own development project. Ardmore House is not designed for one specific client, but the goal is to rethink housing’s future by considering how the next generation of homebuyers wants to live.
Another favorite project and why: The Table Top Apartments. From the start, the objective of our practice was to create projects that were relatable—so that people could understand our work and perhaps our work could help to make architectural thinking accessible to more people. It was during this project that we started to use the term “borrowing the familiar” as a way to make spaces relatable through their familiarity, albeit in a different context. This is how the Table Top apartments came about.

courtesy Kwong Von Glinow
The Table Top Apartments, a modular system that resembles (what else?) a series of stacked table tops, can be configured as anything from a four-story walk-up to a residential tower, with the modules arranged to create shared outdoor space.

courtesy Kwong Von Glinow
The Table Top Apartments

courtesy Kwong Von Glinow
Plan for the Table Top Apartments
Biggest challenge in running a successful practice: We learned quickly that just being a good designer doesn’t keep the projects running or coming. We’ve had to teach ourselves and our staff new skills, including talking to clients, lecturing, marketing, and managing a team in addition to finances. Basically, how to be everything all at once, while still making design the most important part of our practice.
Favorite rule to break: We use a term called “smuggling architecture” in our work, which sounds like breaking the rules, but is actually about working within them. For us, smuggling architecture means providing a new and alternative approach to design that injects architectural significance into topics that have lost their connection with the discipline—or that weren’t associated with it to begin with. We recently had an installation on display at the Swiss Architecture Museum in Basel, Switzerland, where we smuggled architecture into suburban model homes. The builders of these homes were not necessarily seeking alternatives to their stock plans, but smuggling architecture plays along with the common and everyday and engages subtly. Perhaps this is soft rule-breaking.

Tom Bisig
The "Smuggling Architecture" exhibition, which was on display at the Swiss Architecture Museum in Basel, updates three suburban home plans with subtle architectural tweaks.

courtesy Kwong Von Glinow
An image from "Smuggling Architecture"
Design trend that should come back: The best design work does not follow trends. We’re both lucky to have had the opportunity to work at Herzog & de Meuron. One pursuit that we keep close as we build our practice (something we learned while at HdM) is that the goal of each project can be different, rather than driving to align with some sort of signature move. This gives the design freedom to evolve with how we see and encounter things. We prefer to use the word taste: something that is curated over time.

courtesy Kwong Von Glinow
The “Give me a minute, please!” pavilion, which was designed with UB Studio, will be displayed next summer as part of the Designing a Better Chicago initiative. It contains a series of furniture-scale follies that will offer a brief moment of retreat from the bustle of city life.

courtesy Kwong Von Glinow
In the Loop, a proposal for an ADA-compliant entrance to City Hall in San Antonio, Texas, doubles as a gathering space.
Biggest career leap: Von Glinow: Becoming a mom. I never would have expected to give that answer earlier in my career. Since attending Barnard College, I’ve been acutely aware of women’s struggles in the profession of architecture: drop-offs in licensure, hardships to reach partnership positions, and difficult decisions about how to balance a career with family life, to name a few. A big reason that Lap Chi and I started our independent practice was so that we could create and set the agenda of our own live-work balance, especially knowing that we wanted kids in our future. Since pregnancy, I was happily shocked at how welcoming and supportive our clients were. We have been able to have deeper connections that go beyond talking about how to make beautiful architecture. And within our own office, we’ve adapted to a “new professionalism,” in which our daughter Marni might be practicing her vocal chords in the background during conference calls. This is an environment we feel we couldn’t be luckier to be in.