Home to a Thousand Souls

Tigerman McCurry architects eschews sentimentality in the design of one of the world's largest homeless shelters.

10 MIN READ

Homelessness is a grim reality of urban life, but one that many city dwellers would prefer to ignore. Yet, despite public opposition to efforts to build a new Chicago home, there’s hope to be found in the story of Pacific Garden Mission, a massive homeless shelter that recently moved into new quarters designed by Tigerman McCurry Architects. Founded in Chicago in 1877 by a Midwestern couple who combined a warm bed and hot meal with ministering of the gospel, the organization today bills itself as the largest continuously operating rescue mission in the country, providing food, shelter, clothing, medical care-and spiritual nourishment-to a broad constituency of men, women, and children.

For years, Pacific Garden Mission had been pressured by the city Board of Education to vacate its men’s facility on South State Street in the former Skid Row. As the neighborhood gentrified, the site was increasingly eyed for expansion by Jones College Prep, an adjacent public high school. Mission leaders were willing to relocate, but each time they pursued a site for a new shelter, a wave of NIMBYism swelled up from nearby residents. When the Board of Education began to threaten suit, the mission asked Stanley Tigerman to testify on its behalf. (He was referred to the mission by a student at Archeworks, the alternative design school co-founded by Tigerman that links student teams with nonprofit partners to address social needs.) Tigerman agreed to help. And although a suit was never filed, he soon became more than the mission’s advocate. He became its architect.

Before then, Tigerman had been vaguely aware of the faith-based mission, best known among Chicagoans for its illuminated cross emblazoned with the words “Jesus Saves.” He began to visit the mission frequently, meeting with its director, staff, and residents. He soon learned that the mission ran a second shelter for women and children west of the downtown Loop. And he gained a new appreciation for its treatment of the homeless. “The mission treated these people with great respect and dignity,” he explains. “They are not referred to as indigents, but as overnight guests.”

What captured Tigerman’s imagination was the poignancy of the project the fact that, given a sudden change in circumstance, nearly anyone can become homeless. Working with mission leaders, he set out to help find a new site. Ultimately, the combination of strained neighborhood politics and the mission’s desire to build an ambitious multipurpose shelter led to the selection of a parcel south of the Loop at 14th and South Canal streets, surrounded by commuter rail tracks and parking lots for UPS trucks. Says Tigerman: “There is no urban fabric, literally.” The site was selected primarily because of its availability, adequate size, and reasonable proximity to the old site a mile away.

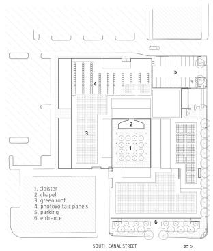
Rather than attempt to generate a pedestrian-friendly building in a pedestrian-hostile environment, Tigerman’s approach was to create an oasis-not simply a place to lay one’s head for the night, but a retreat from the day-to-day struggle for food, shelter, and personal safety. Its ground-floor gathering spaces and upper-level sleeping rooms surround a central cloister, much like a monastery, which provides a quiet space for rest and contemplation.

As he began to design, Tigerman eschewed overt domestic references such as pediments or gabled roofs. Instead, he adopted a formal vocabulary of brick and structural concrete that blends into its light industrial surroundings. “This is not a home. It’s an institution,” he explains. “You are trying to get people back into society.” Inside, his strategy was to create bright, clean, functional space that can serve many purposes. In addition to its ability to accommodate 1,000 people in bunks-and another 400 on severe winter nights-the 156,000-square-foot facility has a dining room that seats more than 600. Working in three shifts, the mission serves 1,800 people per meal. The facility also includes linen and laundry areas, libraries, two gymnasiums, and a barber shop and a beauty salon. Clothing is donated, sorted, cleaned, and distributed in a basement-level space that Tigerman likens to a store-a store handling more than a million articles of clothing each year.

Residents of the facility tend to hear about it by word of mouth, says David McCarrell, the mission’s president. By far, the greatest numbers of guests-about 550 men and 125 women and children in total-are transients who come on a night-by-night basis. After checking in, they are led to a large chamber where they hang their clothes for the night (the room is super-heated to kill lice and other vermin). Then they take a shower and receive a sleeping gown. Medical care is available for those who need it; all are given access to the barber shop or beauty salon.

A smaller number of people sign up for the Bible program ministry, which requires a minimum commitment of 60 days and can last up to a year. These individuals become part of the facility’s team and are given work assignments in the laundry, library, kitchen, or cleaning group. In addition to their job, they attend daily classes focused on straightening out their lives. After eight months, the emphasis shifts to career development. Those who complete the program “are ready to go out in the workforce and be productive citizens,” says McCarrell. “We want to give them the skills to do that.” The mission’s 600-seat auditorium is the setting for productions of “Unshackled,” the dramatic accounts of transformed lives that the mission has broadcast live on radio since 1950. The program’s reach is now worldwide, with translations performed in eight languages.

The mission holds three gospel services in the space each day, says David Fuller, director of facilities and systems. Smaller religious services and other small gatherings take place in the chapel, whose translucent glass walls face onto the courtyard.

Weaving the ground-floor spaces together is a broad, L-shaped corridor known to residents and staff as “the yellow brick road.” Its outdoor benches, street lights, sidewalk trash receptacles, and street signs were incorporated to engender familiarity, Tigerman notes. The 20-foot-wide circulation space, whose concrete floor is finished with bright yellow epoxy paint, has reinvigorated the mission, says Fuller. “It’s a very interactive kind of place?very much like a street,” he adds. The glass-enclosed corridor wraps two sides of the courtyard, allowing borrowed light to enter deep into the building.

In addition to providing daily Bible classes, Pacific Garden Mission has a tradition of helping its clients earn high school diplomas and offering life skills programs, such as checking account management, basic English, and computer training. To aid the efforts, Tigerman provided five classrooms and a half-dozen small counseling rooms. Large sleeping rooms are located on second-and third-floor wings for men and in separate second-floor rooms for transient women, long-term female residents, and women with children. The architects designed the space-saving bunks in a way that allows them to be paired side by side, with a metal partition separating the occupants.

About the Author

No recommended contents to display.

Upcoming Events

  • Design Smarter: Leveraging GIS, BIM, and Open Data for Better Site Selection & Collaboration

    Live Webinar

    Register for Free
  • Slate Reimagined: The Surprising Advantages of Slate Rainscreen Cladding

    Webinar

    Register Now
  • The State of Residential Design Today: Innovations and Insights from RADA-Winning Architects

    Webinar

    Register for Free
All Events