Inside Out

Inside Out: Evoking Tradition and Craft Through Restaurant Details

In this series on innovative spaces, Alex Gong, an associate at Rockwell Group in New York, walks us through the firm's intricate design for Katsuya, a Japanese restaurant in the Big Apple.

3 MIN READ

Nikolas Koenig

Project Name: Katsuya Manhattan West, New York

The Client: SBE Entertainment Group, a hospitality company headquartered in Los Angeles.

What were the guiding principles for this project?
The design for Katsuya’s Manhattan West location invites guests into a world of refined theatricality, evoking traditions of the past and present. We blended Japanese craft, architecture, and cultural references—including kumiki (wood joinery), urushi (lacquer), shōji, wagara (decorative patterns), kabuki (theater), torii and pagoda (religious architecture), and sumi-e (ink painting) and ukiyo-e (“floating world”) prints—with contemporary Western restaurant design.

Design Firm Profile: Alex Gong, associate at Rockwell Group, was the lead interior designer on a 6-person team, led by partner-in-charge Greg Keffer, AIA, that designed Katsuya. Based in New York with offices in Los Angeles and Madrid, Rockwell Group is an interdisciplinary architecture and design firm that works to emphasize innovation and thought leadership in every project. Founded by David Rockwell, FAIA, the 300-person firm aims to merge performance and architecture to create extraordinary experiences and built environments across the globe.

courtesy Rockwell Group

Katsuya design moodboard

courtesy Rockwell Group

Katsuya design moodboard


Nikolas Koenig

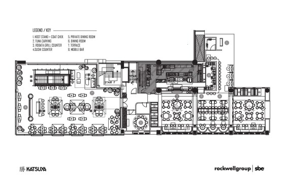
Consider scale and divvy up your main dining room.
For the interior dining rooms, we took a maximalist approach to Japanese aesthetics. We reduced the scale of the 207-seat restaurant by dividing the space into three smaller dining rooms defined by a series of portals, which are inspired by traditional Japanese cloud and plume passageway forms. These double arc portals are finished in a red lacquer frame with end-grain wooden blocks treated with a red stain. The checkerboard pattern on the oak floor is also a direct reference to the 18th-century kabuki actor Sanogawa Ichimatsu, who was known for wearing a checkerboard-patterned costume.

Nikolas Koenig

Rely on materials to define a center dining room.
Ribbed glass screens printed with a blue-to-red ombre effect echo the translucence of shoji paper in a modern material. The screens define the communal table in the main dining room. The screens are hung from black powder-coated metal bracings evocative of Japanese joinery. The table is finished with red lacquer-like finish and is illuminated by a custom chandelier with a lazily undulating form that appears like waves rendered in watery sumi-e ink.

Nikolas Koenig

Anchor spaces with key furniture or focal wallcoverings.
Hollywood banquettes placed at the north end of the dining room anchor the rest of the space. A custom wallcovering by the Toronto-based Moss & Lam Studio on the sushi bar’s back wall depicts a kabuki theater performer. The glass screen is etched on one side only; the reflective interior helps to create a different and more intimate experience.

Nikolas Koenig

Use form to define interior space.
The side indoor dining room, intended to accommodate small- to medium-sized parties, is painted a warm cream color and features linen drapery on either side, creating an open and airy environment. It includes two-, four-, six-, and eight-top tables, as well as a robata grill. The arch at the end of the room is broken down into several smaller-scale archways, creating several intimate dining booths. Hidden linear lights help to highlight the arches and provide the dining room with a soft ambiance.

Nikolas Koenig

Create pockets of privacy.
The intimate, 10-seat private dining room is located between the main dining area and the terrace. The centerpiece of the space is a photographic print by Erik Madigan Heck titled “Without a Face 13.” A checkerboard wood floor, wood paneling, and a red-toned, fan-pattern wallcovering add warmth to the space.


Read more: Fostering 21st-century learning in a historical community | Nurturing beauty and community in assisted living | A thoughtful Ugg flagship store that unlocks a harmonious retail experience | Inside a Chicago winery that serves up good food and community | Designing an inclusive, flexible workplace

No recommended contents to display.

Upcoming Events

  • Design Smarter: Leveraging GIS, BIM, and Open Data for Better Site Selection & Collaboration

    Live Webinar

    Register for Free
  • Slate Reimagined: The Surprising Advantages of Slate Rainscreen Cladding

    Webinar

    Register Now
  • The State of Residential Design Today: Innovations and Insights from RADA-Winning Architects

    Webinar

    Register for Free
All Events