The Project: Ugg Flagship, New York
The Client: Ugg, Deckers Brands

courtesy Quezada Architecture and Florencia Pita & Co.
What were the guiding principles for this project? The Southern California–based Ugg company is launching a global expansion, with this flagship store signifying its evolution from purveyor of their classic boot to a broad lifestyle brand. The design of the boutique is inspired by the experience of California and informed by the reinterpretation of traditional craftsmanship, with custom fixtures and furniture made through both advanced and traditional fabrication techniques in downtown Los Angeles. “An imagined California is one that transcends reality to characterize both the emotion and warmth of the California lifestyle that captivates the world,” explains Cecilia Quezada, AIA, partner at Quezada Architecture. “From nature to home and back again, this journey captures the aura of the Ugg brand by highlighting the specific qualities of the California landscape that defines it—light, texture, air.”
Designers: Cecilia Quezada, AIA, principal, partner, and majority-owner of the San Francisco–based firm Quezada Architecture, worked in partnership with Florencia Pita, founder of the Los Angeles firm Florencia Pita & Co. With Quezada working as the project architect and Pita as the project designer, the Ugg Flagship store is the first design collaboration between the two female-owned and founded firms. Pita and Quezada are cousins, both born in Argentina and now living in California.
Inside the Project

courtesy Quezada Architecture and Florencia Pita & Co.

courtesy Quezada Architecture and Florencia Pita & Co.
Moodboard for the Ugg Flagship

Barkow Photo
Embody a California ethos
To recreate the experience and ethos of California, we looked to architecture, art, film, and literature. The Eames House—in which a steel structure and modular kit of parts were employed to create an open and flexible space that existed in harmony with nature—inspired the layout of the brand’s new headquarters. The quality of light and landscape in California inspired both a glowing LED wall and the store’s soft, curving contours. Like the work of Ed Ruscha and David Hockney, we sought to achieve more than just a snapshot of California, but rather, a more layered image of California and its ideals, guided by openness and flexibility.

Barkow Photo

Barkow Photo
Design for a lifestyle, not just a product
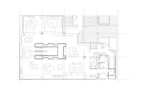
The flagship is driven a lifestyle concept that goes beyond products or merchandise and explores the ideal of a more free and open space for an open society. The retail space is fluid: There are no designated men’s or women’s areas—they can all be either/or, and the layout can be constantly changed and re-adapted. The custom-made freestanding fixtures, which allow for a more intimate shopping experience, are designed to be movable and flexible, embracing multiple lifestyles and narratives.
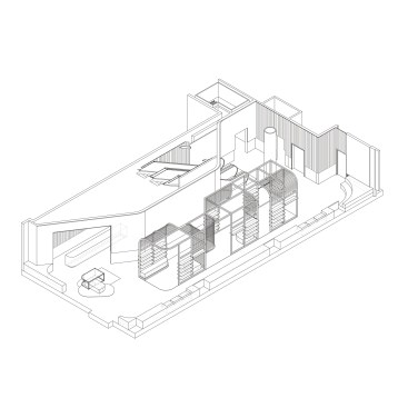
The store is arranged across the first two levels of a 26-story tower located on the corner of Fifth Avenue and 45th Street. The street level’s high ceiling and enveloping windows bring in the cityscape, while a large steel-framed structure acts as a modular construct for display, circulation, and the framing of views. This structure can be merchandised in three modules: the front module toward the entry serving as an exhibition display and “lifestyle” feature, the center module as a seasonal display, and the third module as a shoppable display. The “store window” is a delineated bench that begins at the front of the store on Fifth Avenue and continues to the south window at 45th Street. This bench plays a double role as both a seating area and display surface, engaging with the view of the sidewalk.

Barkow Photo
Use dynamic lighting to signal spatial shifts
At the north wall, the structure is backed by a large graphic wall that leads to the back of the store, curving as it welcomes customers to take the escalator to the second level. The graphic surface features LED lights; on the ground level, its graphic will change every season, but as one takes the escalator, the experience changes to one of immersive light, with the translucent programmable LED lighting coming from the wall and ceiling surfaces. The escalator, as a transitional space similar to the open-roof courtyard typical of a Midcentury house, suggests a soft, glowing, California-inspired sunset. On the second floor, the lighting scheme supports a shift towards more intimate and domestic experience: Displays and private seating areas are arranged to emulate living rooms and cozy parlors, with details that exude warmth, including soft lighting and textured surfaces.

courtesy Quezada Architecture and Florencia Pita & Co.
Ugg undersole geometry

courtesy Quezada Architecture and Florencia Pita & Co.
Ugg logo design
Transform a brand logo into a design motif
We abstracted two hallmarks of the Ugg brand to form design motifs throughout the store, bringing them to life using craft techniques. These geometric profiles were repeated, forming a pattern that was laser-cut into the metal surfaces of furniture, fixtures, and parts of the façade. The geometry of the classic Ugg boot undersole also figures into the surfaces throughout. As inspiration, our team looked at the embossed “sun flake” geometry and the undulating curve of the sole when viewed from the side. The curve was extruded to create a custom-milled panel material with vertical grooves and light and shadow effects, giving texture and character to the walls and surfaces of displays and tables throughout.

courtesy Quezada Architecture and Florencia Pita & Co.
Project materials palette

courtesy Quezada Architecture and Florencia Pita & Co.
Ugg Flagship materials
Invest in custom materials
Custom-made terrazzo in a soft white hue with gold and grey-silver flecks also figures prominently in the design, but through a reinvented approach. While the material is typically used for flooring, here it is molded to wrap fixtures and furniture such as benches, tables, and risers. Instead of appearing as a flat surface, the material becomes volumetric, with plasticity and softness. Its composition of aggregate stone and bonding polymer provides a textured effect. Through the design’s warmth, flexibility, and future-forward attention to craft, we worked to summon the brand’s newly expansive direction.

Barkow Photo

Michal Czerwonka

Michal Czerwonka
Correction: this piece has been updated to reflect Cecilia Quezada’s title. She is a principal, partner, and majority-owner of Quezada Architecture.
Read more: Inside a Chicago winery that serves up good food and community | Designing an inclusive, flexible workplace | Using design to unlock student creativity