Prepared for Takeoff

The new JetBlue terminal at New York's JFK airport sets a high standard for air travel without overshadowing a cherished landmark.

7 MIN READ

A discussion of urban or architectural context at New York’s John F. Kennedy International Airport (JFK) would be short: There is none. JFK, which opened as Idlewild International Airport in 1948, has evolved through terminal and auxiliary expansions and additions into a daunting labyrinth of on- and off-ramps, parking lots, and information overload. The latest addition is the one exception that proves the rule.

The new $550 million facility for New York City–based JetBlue Airways—also known as Terminal 5, or T5—actually has a context of historic significance. T5’s site is directly adjacent to the iconic TWA Flight Center, designed by Eero Saarinen, which opened in 1962 and closed in 2001. Due to programmatic complexity, terminals typically are designed from the inside out. In order to secure the site, however, JetBlue had to commit to providing a contextual solution respectful of, if not deferential to, the Saarinen structure, which received historic landmark status from the City of New York in 1994 and was placed on the National Register of Historic Places in 2005.

The Washington, D.C., and New York offices of Gensler, the design architect of record, responded with a crescent-shaped structure that slips quietly behind the landmark, separated from it by arrival and departure roadways. Though the TWA terminal will never be an operational component of JetBlue, it will house, when renovations are complete, an e-ticket kiosk for passengers who choose to enter there. Passage to T5 will be provided through Saarinen’s original tubular corridors, which have been restored and joined to the new terminal.

Efficiency and Comfort

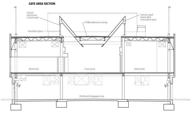
JetBlue’s brand identity stands out for its emphasis on high-value, low-cost service. Gensler translated the airline’s brand and business model into a minimalist architectural aesthetic by the smart use of simple materials, including exposed structural steel, corrugated metal, and glass.

The 635,000-square-foot, 16-gate facility will be JFK’s busiest, accommodating 20 million passengers a year and 10 flights at each of 26 gates every day. One primary goal is to maintain a 30-minute plane turnaround time, which is 40 percent faster than the industry average. “Optimal operational performance of all functions in the terminal was a priority,” explains Gensler principal William Hooper Jr., who led the design team. “The by-product of efficient operations is passenger comfort,” he says, “and comfort is a major part of the JetBlue paradigm.”

The budget was extremely tight. “Any construction-related cost that might result in an increase in the price of a plane ticket was out of the question,” says Hooper. “On the other hand, durability is essential to efficiency. If we could demonstrate that a particular material, though slightly more expensive, would reduce the kind of maintenance and repair that can interfere with operations, the client was amenable.”

Security and Transparency

Since 9/11, all U.S. airports have undergone extensive security upgrades and reorganizations, many of which have a stress-inducing, jerry-built feel to them. When building the new terminal, Gensler seized the opportunity to apply lessons learned from the 50 passenger terminals it has completed over the past two decades. The central security area has 20 lanes, each with an X-ray for carry-on baggage and magnetometers for passenger screening, making it the largest single checkpoint in the country. To expedite traffic, there are special lanes for families with small children and strollers, as well as “black diamond” lanes for seasoned travelers, called after the name for expert ski slopes.

“Passengers can clearly see which channel they should take, and there is enough space to allow them to move down the line without overcrowding,” says Hooper. “Such transparency speeds movement.”

The floors in the screening area feature soft rubber flooring, typically found on playgrounds and in athletic facilities. “We determined that this surface was more comfortable than cold, hard terrazzo for standing without shoes,” says Hooper. “We also wanted to reduce the stress of having to hurriedly gather your belongings as they come off the conveyor, so we designed a 225-foot-long bench for ‘revesting’ before continuing to the gate or marketplace area.”

About the Author

No recommended contents to display.

Upcoming Events

  • Design Smarter: Leveraging GIS, BIM, and Open Data for Better Site Selection & Collaboration

    Live Webinar

    Register for Free
  • Slate Reimagined: The Surprising Advantages of Slate Rainscreen Cladding

    Webinar

    Register Now
  • The State of Residential Design Today: Innovations and Insights from RADA-Winning Architects

    Webinar

    Register for Free
All Events