Chicago Hope

John Ronan's brash new youth center energizes an inner-city neighborhood.

6 MIN READ

Hedrich Blessing

Three teens huddled against a bracing winter’s rain make their way down South Chicago Avenue, a big two-way street that cuts through Chicago’s Greater Grand Crossing neighborhood.

The avenue used to be an industrial hub on the city’s South Side. The mills and foundries that once crowded the street are largely gone. The trio walks past empty, fenced-off lots and unused buildings.

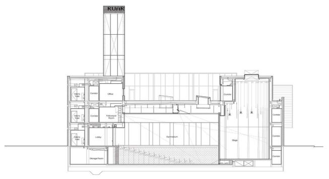
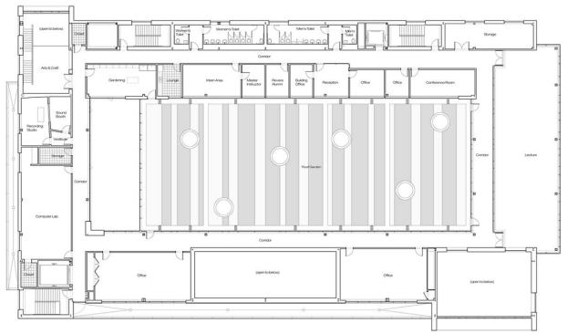
But the kids break into a half-sprint as they cross Ingleside Avenue and enter the Gary C. Comer Youth Center, a colorful beacon rising from the tough, gray street. Its checkerboard façade of red, blue, and silver metallic panels jumps out from the surrounding brick and frame houses. The center’s rectangular 74,000-squarefoot mass is topped by an 80-foot steel-framed tower with a scrolling LED sign that proudly announces what’s happening inside.

No other building in Chicago—or anywhere else, for that matter—looks quite like it.

“There wasn’t a real model for this,” says the building’s architect, John Ronan, principal of the eponymous Chicago firm, during a walk-through on this rainy afternoon. “No prototype. It wasn’t really an auditorium, it wasn’t really a community center, and it wasn’t really a recreation building. It was all those things and a little bit more.”

The $30 million center was funded by Gary C. Comer, philanthropist and founder of Lands’ End, who grew up a few blocks north of the center. He died last October at age 78, just months after the building’s May 2006 dedication.

Originally, Comer’s plan was to build a headquarters for one local arts group, the South Shore Drill Team & Performing Arts Ensemble. Founded in 1980, the drill team has performed its stylized dance routines and synchronized rifle tosses for audiences around the world. But it had no home of its own, so its members—now 300 strong—practiced in local schools, churches, and warehouses.

“He asked what I needed for the drill team, and I told him we needed a facility to practice in,” says Arthur Robertson, the team’s director and founder, referring to Comer. “At the time, we were looking to find a warehouse and gut it and fix it up. And we did look at some places. Then [Comer] said, ‘We’re just going to build you a facility.’”

The center’s mission expanded as Comer realized that Greater Grand Crossing needed an adequate community center, a theater, and a space for indoor recreation.

Comer founded Lands’ End (the errant apostrophe became part of its trademark) in 1962. What began as a small mail-order sailboat equipment business grew into a company that was worth nearly $2 billion when Sears, Roebuck & Co. bought it in 2002.

A billionaire ranked among America’s 400 richest people by Forbes, Comer never forgot his old neighborhood. He bought computers and uniforms and paid college tuition for students from his alma mater, Paul Revere Elementary School, located one block east of the center. Comer also built affordable homes in the area. In 2001, he and his wife, Frances, made a gift to found the Comer Children’s Hospital at the nearby University of Chicago.

But the youth center would be the philanthropic venture closest to his heart. From the beginning, in 2003, Comer was intimately involved in every phase of the center’s design. After meeting Ronan—who had designed a striking elementary-school building for the Akiba Schechter Jewish Day School in Chicago—Comer picked his small, 10-year-old practice over larger and more established architecture firms.

“Gary [was] one of the richest people in the world, but you’d never know it if you met him,” Ronan says. “Very down to earth. He liked personal attention. He wanted to work with somebody and not get fobbed off on minions. He called four or five other people, and I think he found them to be pretentious.”

About the Author

Lee Bey

Lee Bey is a former Chicago Sun-Times architecture critic whose writing and photography have appeared in a variety of outlets, including Bauwelt, Chicago Architect, The Guardian, the Chicago Reader, and Crain’s Chicago Business. His latest exhibition, "Chicago: a Southern Exposure," was featured in the 2017 Chicago Architecture Biennial.

No recommended contents to display.

Upcoming Events

  • Design Smarter: Leveraging GIS, BIM, and Open Data for Better Site Selection & Collaboration

    Live Webinar

    Register for Free
  • Slate Reimagined: The Surprising Advantages of Slate Rainscreen Cladding

    Webinar

    Register Now
  • The State of Residential Design Today: Innovations and Insights from RADA-Winning Architects

    Webinar

    Register for Free
All Events