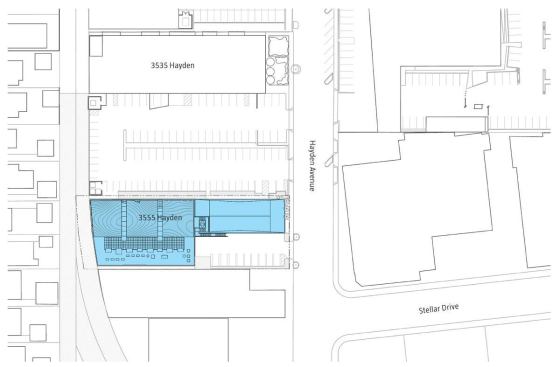
3555 Hayden

The research-intensive firm of Eric Owen Moss Architects layers a swelling rooftop addition onto a warehouse.

12 MIN READ

Business—rather than necessity—is the mother of invention in Culver City, Calif., where Eric Owen Moss has pursued a 15-year-long odyssey of experimentation. The latest landmark along his journey is a sculptural rooftop addition known simply by its address: 3555 Hayden. Like many of Moss’ commercial projects, this flexible office space for a cable television network is an idiosyncratic mix of formal exploration, material inquiry, and structural bravado. “This is absolutely a research project, in terms of the form of the roof, its structure, and the finish,” Moss says.

3555 Hayden continues Moss’ long string of projects for husband-and-wife developers Frederick and Laurie Samitaur-Smith. What began as small-scale reconfigurations of defunct warehouses and factories has, over the past decade, produced entirely new buildings of a larger scale. The patronage of the Samitaur-Smiths—who function much like the Medicis, albeit in Culver City, an industrial suburb of Los Angeles—has allowed Moss to challenge architectural norms with daring buildings such as Samitaur (1996), Slash & Backslash (2000), and Stealth (2002), all of which provide flexible, interactive work environments for a host of creative companies.

Without apology, the driving force behind all this is profit, not art. “When Frederick started, his marketing idea was that he could use architecture to sell commercial space,” Moss recalls. Based on the roster of companies that now occupy the growing village of Moss buildings—including Nike, America Online, Kodak, and advertising heavyweight Ogilvy & Mather—the strategy appears to be working just fine.

Building and Site

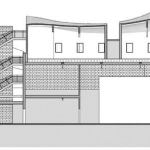
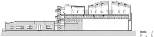
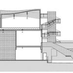
The golden-hued forms resting on top of 3555 Hayden constitute the second addition Moss has made to the building, a warehouse from the early 1950s. To convert the building into a sound stage in the late 1990s, he added a concrete-block second floor above the original brick box. In his inimitable style, Moss characterizes his latest layered addition as “Trajan over Nero”—a reference to how Trajan, the Roman emperor, constructed new baths directly on top of his predecessor Nero’s elaborate palace, the Domus Aurea. “It’s not a new idea,” Moss explains. “But it is worth considering as a precedent for how a city grows by one piece subsuming another.”

Such theoretical constructs are the stuff informing Conjunctive Points, the ongoing urban-scale collaboration between Moss and his developer–patrons. Standing on the third-floor terrace carved from the north side of the 3555 Hayden addition, a visitor beholds several of Moss’ built works, each of which is a unique response to zoning restrictions and market conditions.

At 3555 Hayden, the primary zoning constraint was the stipulated 43-foot height limit. The roof form complies with the code by averaging the height but distributing the volume where needed inside. Its functional program: to provide postproduction offices for the company that uses the sound stage beneath it.

Moss Projects in Culver City

1. 8522 National (1988)
Adaptive reuse of five warehouses to office space
60,000 square feet
2. Lindblade Tower (1989)
3. Paramount Laundry (1989)
4. 9046 Lindblade (1990)
These three discrete buildings now make up, with 3962 Ince, a complex of high-tech office space
55,000 square feet in total
5. The Box (1994)
A renovated warehouse topped by a trapezoidal box that serves as a conference room
12,000 square feet
6. 3520 Hayden (1994)
Unites two new and two existing buildings; one of the latter was an airplane-engine factory
25,000 square feet
7. 3962 Ince (1995)
8. Samitaur (1996)
A long gunmetal-gray building hovers between—and above—two older ones
87,000 square feet
9. 3535 Hayden (1997)
Warehouse conversion
52,000 square feet
10. What Wall? (1998)
Office space with distorted, funhouse-mirror façade
9,000 square feet
11. The Umbrella (1999)
Its experimental glass design required a new mode of fabrication
16,000 square feet
12. Slash & Backslash (2000)
A warehouse conversion with sharply angled forms that gave rise to its name
45,000 square feet
13. The Beehive (2001)
Office building/conference center
10,000 square feet
14. Stealth (2002) Shifts from a square to a triangle in section
50,000 square feet
15. 3555 Hayden (2007)


Framing and Sheathing

The building’s roof—swooping, slotted, and coated in fiberglass—proved to be every inch a research project. Like a kind of wild sand dune, its complex form presented a host of challenges, starting with the design and fabrication of the structural system to support it.

The underpinnings for the rooftop addition were put in place in the late 1990s, when Moss first converted the building into a loftlike sound stage. A redundant steel structure was inserted along the perimeter, anticipating later vertical expansion. (See the first drawing in the sequence of axonometrics in the image gallery.) Buried in the walls of the current addition are steel and wood columns that extend upward from the perimeter frame to support the new undulating roof.

The complex roof geometry is a 42-foot-wide creation of glue-laminated wood beams. Each beam was laminated and milled to a unique curvature and has a continuous changing bevel on the top surface, cut on a mammoth CNC (computer numerically controlled) milling machine according to 3-D digital files provided by Moss’ office. The CNC machine also plotted small holes on top of the beams to indicate the center lines for the rafters, whose 16-inch spacing varies ever so slightly from beam to beam to adjust for the fact that each beam is a different length.

Rafters were CNC-milled out of 2x10s, 2x12s, and 2x14s, depending on how much material had to be cut away to achieve the desired curvature. No two are alike. Each rafter has a curve cut along one side, is notched on both ends for hanging, and milled with an index code that can identify it and indicate its location in the roof system—a necessity when nearly 300 unique parts are involved.

Because Moss wanted to expose the wood structure on the interior, the exterior surface had to perform as an insulated package. The assembly is composed of a plywood shear diaphragm on the interior (two layers of 1/2-inch plywood, thin enough to flex over the curved beams and rafters), with rigid insulation and fire-resistant cement board sheathing on the exterior. A consistent 3-inch cavity separates the inner and outer surfaces by means of a flexible steel track that conforms to the curves. This consistency was important to preserving the geometry established by the beams: A sloppy installation of sheet material would have degraded the shape. Spray-foam insulation was applied between the ribs of the steel track; its superiority over rigid foam was, in this application, a no-brainer.

Empirical tests were done in the studio to identify a gypsum board that had adequate flex and sufficient ability to bond with the final coating of fiberglass. The cured fiberglass popped off some cement-board products, or it made the boards fail internally and rip apart. The ultimate specification was a cement board with integral glass fibers that could penetrate the resin applied to the outer surface.

About the Author

No recommended contents to display.

Upcoming Events

  • Design Smarter: Leveraging GIS, BIM, and Open Data for Better Site Selection & Collaboration

    Live Webinar

    Register for Free
  • Slate Reimagined: The Surprising Advantages of Slate Rainscreen Cladding

    Webinar

    Register Now
  • The State of Residential Design Today: Innovations and Insights from RADA-Winning Architects

    Webinar

    Register for Free
All Events