“They looked at a problem and found a really simple solution that could have an enormous impact.” — juror Erin Besler
The term “waste trees” is misleading—it refers to trees that are too thin to be milled into boards, not necessarily because there’s anything wrong with the wood itself. But waste trees are a big problem: Today, about 10 percent of American forests—about 56 million acres—are overstocked and undermanaged, in part because so many trees are too small to make the timber industry’s cut. That’s where WholeTrees Architecture and Structures comes in. Based in Madison, Wis., the firm has spent 10 years developing applications for unmilled timber, opening up new markets for “using waste trees in innovative and beautiful ways,” says Amelia Baxter, the firm’s CEO and co-founder.

WholeTrees
To WholeTrees, waste trees represent an overlooked opportunity. “Unmilled trees are 50 percent stronger than milled trees of the same width and species,” Baxter says. They’re as strong as steel in compression when you factor in the weight-to-strength ratio, and twice as strong in tension—in part because the tension fibers in the outermost rings of a tree are the first things to get cut off in the milling process. Using waste trees makes sense environmentally and financially, too. Large trees are harvested on a 30- to 60-year cycle. But small trees can be harvested on a 10-year cycle, which translates into a faster turnaround on investments and more jobs for loggers and drivers.

WholeTrees
The largest timber (A) that can be milled from any given log (B) will only have 17–33% of the original strength of the unmilled log.
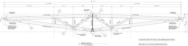
The firm’s latest innovation, developed with a grant from the U.S. Department of Agriculture, is a high-tension wing-truss design that can span up to 60 feet and bear a load of up to 800 pounds per foot. The truss is made entirely of wood, save for steel connectors and reinforcements at major connection points that were refined through an intensive testing and research process—though Baxter says an all-timber truss is in the works.

So far, interest in the truss has come from what Baxter calls “nature-oriented institutions.” For a new Madison location of Festival Food Store, an organic grocery chain, WholeTrees designed a roof structure that uses 86 of their new trusses, some up to 55 feet in span and bearing 29,000 pounds. (The design also incorporates 12 columns made from unmilled ash trees that were culled from Madison-area parks.)

Wood construction is increasingly popular, though largely because of engineered wood products like glulam. But such products also face challenges—among them local codes. Unmilled timber doesn’t have that concern, Baxter says, because it is definable as heavy timber in the International Building Code.

WholeTrees
For the grocery store, the trusses make aesthetic as well as structural sense, and the client chose them in part as a symbol of its nature-friendly bona fides. In the future, Baxter and WholeTrees hope that all sorts of clients will choose unmilled timber—including those just as happy to cover up the wood like they would steel or concrete. “I want to get to the point where people are choosing this because it’s cost-efficient with steel, not just because it looks good,” she says.

WholeTrees
Project Credits
Project: Round Timber Structural Components: Commercial-Scale Wing Truss
Client: Gebhardt Development; Festival Foods
Design Firm/Fabricator: WholeTrees Architecture and Structures, Madison, Wis. . Amelia Baxter (CEO and co-founder), Roald Gundersen (co-founder) Primary Investigator: Douglas Rammer (Forest Products Laboratory)
Structural Engineer: General Engineering Co. (GEC); Forest Products Laboratory
General Contractor: Tri-North Builders Funding: USDA Small Business Innovation Research Program; private investment
Special Thanks: Chris Gosch, AIA (Bark Design); Kent Fish (GEC); Karl Fink (Fink+Associates); Bill Bennoyer (Tri-North Builders); Chris Miller (New Paradigm Design Workshop); Adrian Pereyra (Pere Design); Alyssa Tope, Kysa Heinitz, Tom Mack, Martin Whitehead, Candace Kao, Michaela Harms (WholeTrees Architecture and Structures)