Process Makes Perfect

High-performance design creates healthy environments for high-performance learning.

6 MIN READ

Considering the staggering benefits of high-performance schools, it seems an obvious choice to “go green.” High-performance schools offer an exceptionally cost-effective means to enhance student learning, using on average 33 percent less energy than conventionally designed schools, and provide substantial health gains, including reduced respiratory problems and absenteeism. According to the 2006 study, Greening America’s Schools, Costs and Benefits, co-sponsored by the American Institute of Architects (AIA) and Capital E, a green building consulting firm, high-performance lighting is a key element of healthy learning environments, contributing to improved test scores, reduced off-task behavior, and higher achievement among students. Few argue this point more convincingly than architect Heinz Rudolf, of Portland-Oregon-based Boora Architects, who has designed sustainable schools for more than 80 school districts in Oregon, Washington, Colorado, and Wyoming, and has pioneered the high-performance school movement. Boora’s recently completed project, the Baker Prairie Middle School in Canby, Oregon is one of the most sustainable K-12 facilities in the state, and illustrates Rudolf’s progressive and research-intensive approach to school design.

For the Baker Prairie Middle School, the design process began by inspiring the planning committee to support “a sustainable building that is connected holistically and where everything works together,” according to Rudolf, who led the project. The Baker Prairie planning committee—roughly 40 individuals including the district superintendent, school administrators and board members, teachers, and parent association and community representatives—initially had been resistant to Boora’s proposal for a high-performance school because they were fearful of the increased costs, maintenance requirements, and perceived “extravagance” of green architecture. To illustrate the intrinsic simplicity and advantages of the school as they proposed, Rudolf took the committee on a tour of a number of existing sustainable schools Boora had designed in the region. The immediate experience of these daylight suffused and sustainable spaces was powerful enough to convince even the most resistant critics among the committee. An important first-step, Rudolf feels exposing people to functioning sustainable spaces is essential to mitigating common misconceptions about green design.

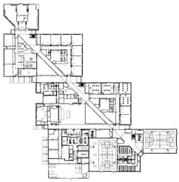
Once the client had agreed to a sustainable program, thorough analysis of the site and the location of the proposed building began. For Rudolf this step is of primary importance to ensure “maximum opportunities for bringing daylight into the building.” Once the optimum site location is determined, daylighting can be further enhanced through design—“hollowing out” interior spaces, creating transparency between rooms, and determining appropriate ceiling heights and daylight apertures. At Baker Prairie, Rudolf organized the interior spaces of the 138,000-square-foot school into three “pods”, staggered along a main corridor that runs diagonally through the plan. This program allows all classrooms and most areas direct access to daylight, which is harvested through abundant windows, skylights, clerestories, and prism-like atriums that connect ground-floor areas with outdoor spaces.

As changing classroom needs often necessitate great flexibility in lighting conditions, Rudolf designed the daylighting to work in partnership with electric light. When necessary daylight can be supplemented by efficient T8 fixtures, or in the opposite extreme, when darkened room conditions are required, daylight can be shut out entirely with mechanized shading systems. These systems are also in place in the library, gymnasiums, and common areas. Furthermore, energy reduction is ensured throughout the school with automatic lighting controls, including occupancy sensors, time clocks, photocell sensors, bypass switches, and lighting relay panels. After the initial design phase, an extended period of empirical investigation took place. This involved extensive computerized daylight modeling followed by the construction and testing of 1/2-inch and full-scale models. For the latter, Rudolf enlisted the help of local Canby High School students, enrolled in a construction course, to build a full-scale mock-up on the Baker Prairie site. It was an extraordinary opportunity for the high school students, who received substantial hands-on experience in construction as well as in the principles of sustainable design. While the expense of such mock-ups generally makes this kind of testing prohibitive for such modestly budgeted projects, Rudolf secured donations from the Portland-based non-profit organization, BetterBricks for the $6000 mockup construction budget, and the necessary interior finishes from the Northwest company, Miller Paints.

The mock-up was essential to the design process for several reasons, primary among them, the ability to test a proposed 8-foot horizontal offset daylighting shaft provided by manufacturer Solatube. This critical experimentation revealed proper placement of lens openings in the ceiling, as well as allowing adjustments in the placement of skylights and the T8 fixtures. The most invaluable result of the mock-up was not revealed until much later when several million dollars had to be cut from the construction budget. Typically elements associated with sustainable design—skylights, windows, controls, and other mechanical systems—are the first to be sacrificed. Thanks to his extensive research however, Rudolf was able to convincingly illustrate the tremendous benefits the school’s sustainable features proposed, particularly in terms of projected energy savings. After reviewing the results of this research, the school board agreed to keep the high-performance systems and find other areas for budgetary reductions. As Rudolf describes, “In a way it saved the project—they could have said ‘let’s just go to strip lighting and eliminate the daylight sensors and dimmers’ and so forth—but they certainly wouldn’t have ended up with the building they received.”

Completed in January 2007 the Baker Prairie Middle School is a success with the community as well as with its 800 students, who according to Rudolf, “absolutely love it.” While the project was designed with the goal of obtaining LEED Silver certification (the project is in the final stages of the application process), the completed school is within a point of Gold—due in no small part to Rudolf’s research-driven and integrated approach to the design of sustainable schools. It is not daylighting or natural ventilation or energy-efficient mechanical systems alone that make a project truly sustainable, as Rudolf argues, “all of these have to be considered together…if one element is out of sync with the other than the whole design will fail. If one system is altered, then all systems are implicated.” Baker Prairie has elegantly achieved this holistic balance and has given its students the immeasurable advantages of a healthy and dynamic environment for learning.

DETAILS

PROJECT Baker Prairie Middle School, Canby, Oregon

CLIENT Canby School District, Canby, Oregon

ARCHITECT/INTERIOR DESIGNER Boora Architects, Portland, Oregon

LIGHTING DESIGNER Interface Engineering, Portland, Oregon

IMAGES Courtesy Boora Architects

PROJECT SIZE 142,700 square feet

BUILDING COST $23,100,000 (total construction cost); $161.88 per square foot

LIGHTING COST $370,000 (material costs); $2.59 per square foot

WATTS PER SQUARE FOOT 0.74

MANUFACTURERS & APPLICATIONS

Peachtree Lighting | Vertical fluorescents

Firelite | Wall-mount fluorescent T8; standard stem-mounted classroom fluorescent T8

Paramount Industries | Gym fluorescents

Rebelle | Two-story hallway compact fluorescent

Capri Lighting | Low-voltage tracklight

Day Brite Lighting | Restroom fluorescent T8 striplights; undercounter fluorescent T5s

Jammar Lights | Low-profile tracklights; metal halides

LumenArt | Hand-blown accent lights

Gardco Lighting | Pole lights Gullwing; exterior half cylinder wall series compound fluorescent

Luminaire | T8 vandal-resistant locker room fixtures

Guth Lighting | Exterior vapor-proof fluorescent “Jelly Jars”

Orgatech | Exterior floodlights; compact/linear fluorescents

About the Author

No recommended contents to display.

Upcoming Events

  • Slate Reimagined: The Surprising Advantages of Slate Rainscreen Cladding

    Webinar

    Register Now
  • The State of Residential Design Today: Innovations and Insights from RADA-Winning Architects

    Webinar

    Register for Free
  • Specifying Smarter with Copper-Clad Aluminum (CCA) Metal-Clad Cable

    Webinar

    Register for Free
All Events