Bending Light

Over a career that spans more than 40 years, James Carpenter has inhabited the junction of architecture, art, design, and engineering. Working with glass, steel, and the sun, his studio crafts environments that mitigate the boundary between inside and outside and bring attention to the phenomenological qualities of light.

7 MIN READ
James Carpenter in his New York City office.

Robert Clark

James Carpenter in his New York City office.

“I think of light in an intellectual or philosophical way, it carries information from its history, which could be a millisecond, or could be a billion years. It’s not just something illuminating a wall. It has an informational resource within it and what we’re trying to do is understand how you can bring about a realization or a manifestation of that.”
—James Carpenter


James Carpenter, principal of New York–based James Carpenter Design Associates (JCDA), isn’t a lighting designer in the traditional sense. His practice has carved out a specialty in developing technically adroit, architecturally integrated apparatuses that sculpt and transmit daylight—often paired with electric sources—which bring illumination far into the interior of a building or even underground. And Carpenter’s 40-plus-year career has encompassed everything from material research and structural engineering to architectural design and sculpture.

His background, interestingly enough, is firmly rooted in the art world. Born in Washington State and raised in New England, Carpenter enrolled at the Rhode Island School of Design (RISD) in 1968. There, he started studying architecture, but an interest in working directly with materials, combined with the excellent workshops at the industrial-design-focused RISD, led him to switch his focus to sculpture during his second year. He was particularly taken with glass, and studied under artist Dale Chihuly.

Luminous Glass Bridge, Marin County, Calif. (1987) A proposal for a private client, the project is one of Carpenter’s early explorations examining the use of glass as a structural material.

©JCDA

Luminous Glass Bridge, Marin County, Calif. (1987) A proposal for a private client, the project is one of Carpenter’s early explorations examining the use of glass as a structural material.


Another interest was film. Carpenter made a number of movies—using Super 8 film—that he projected on glass and other materials, and that were shown in galleries in New York and Europe during the 1970s. Between making films and working on glass sculptures, Carpenter became fascinated with light and how he could make people aware of its informational content and phenomenological characteristics.

“Migration,” Super 8 film loop (1975)Carpenter’s early sketches and storyboard panels for the film.

© James Carpenter

“Migration,” Super 8 film loop (1975)Carpenter’s early sketches and storyboard panels for the film.

You can see the early stages of his experiments in the 1975 movie “Migration,” which documents salmon swimming up a 60-foot section of a shallow river off the Puget Sound in Washington. On a scaffold perched over the river, Carpenter set up six cameras, 90-degrees to the water and each rotated off axis in relation to one another, looking down into the rippling surface. Projected on a gallery floor at full-scale, the six frames present a fractured record of the river, so that the salmon swimming upstream from frame-to-frame go in and out of view, as they move from light to dark underwater. Each of the nine frames in each film is also copied and repeated three times, giving the movie a staccato quality and holding the image a moment longer for viewers to absorb the information. “You realize what you’re looking at is not just the fish swimming upstream, or the gravel below. It’s also the perfectly reflected image of the sky overhead,” Carpenter says. “The water in that river has information on top, within it, and beyond it. I think of glass the same way. The material coalesces all those levels of information. Your eye tends to dismiss glass as a nonentity, but I’m thinking of it for its wealth of information.”

“Migration,” Super 8 film loop (1975)The film on view in a gallery installation.

© James Carpenter

“Migration,” Super 8 film loop (1975)The film on view in a gallery installation.

“Migration,” Super 8 film loop (1975)The film documents the spawning of Pacific Northwest salmon and explores the phenomena of light and transparency through the spatial compression of the sky and its reflection on the water’s surface.

© James Carpenter

“Migration,” Super 8 film loop (1975)The film documents the spawning of Pacific Northwest salmon and explores the phenomena of light and transparency through the spatial compression of the sky and its reflection on the water’s surface.


From Art to Architecture
After college, Carpenter taught at the University of California, Berkeley for a brief period before moving back east to take a job at Corning with inventor Donald Stookey. Stookey, who established the field of glass ceramics, was, at the time, developing a process for making color photography using glass as a medium. In the late 1970s, architect Norman Foster heard of the technology and approached Corning about developing an architectural variation that he could incorporate into the design of his HSBC project in Hong Kong. The idea was to create an integrated louver system in the building’s curtainwall, with the photosensitive emulsion that forms stripes in the glass that would change the angle of entering light and cut down on heat loading and glare. Corning put Carpenter in charge of the project, and while it proved too expensive to be implemented, the louver project made him realize that he knew a lot about the technical nature of glass—and that there was an opportunity to work with the architectural community. So in 1979, he set up JCDA and the firm was soon getting calls from the likes of architects I.M. Pei and Edward Larrabee Barnes.

Dichroic Light Field, New York, (1994–95) The dichroic glass fins projecting from the façade react with available light.

© David Sundberg

Dichroic Light Field, New York, (1994–95) The dichroic glass fins projecting from the façade react with available light.

Dichroic Light Field, New York, (1994–95) Ever-changing lighting conditions create a variety of colors and shadow variations on the artwork.

© David Sundberg

Dichroic Light Field, New York, (1994–95) Ever-changing lighting conditions create a variety of colors and shadow variations on the artwork.

Dichroic Light Field, New York, (1994–95) A close-up view of the dichroic glass fins.

© David Sundberg

Dichroic Light Field, New York, (1994–95) A close-up view of the dichroic glass fins.

Over time, JCDA’s role as a glass consultant evolved to the point that it was being asked to design specific parts of buildings. One such project is the Dichroic Light Field, an installation on the Handel & Associates–designed Millennium Tower on Columbus Avenue in New York City, completed in 1995. JCDA outfitted the building’s block-long, blind masonry façade with a glass screen; from this screen projects a matrix of 2-foot-long dichroic glass fins. The reactive surface picks up available light, deepening the façade and activating it with an array of colors and atmospheric reflections—whether directly from the sun on a clear, blue day; diffusing from a gray, overcast sky; bouncing off the surrounding buildings; or coming from electric light at night. The appearance of the installation also changes as the viewer’s perspective changes, so that everyone who looks at it sees something slightly different depending upon where they stand.

“A lot of our projects, like Dichroic Light Field and 7 World Trade Center, deal with volumetric qualities,” Carpenter says. “It relates more to how you see things in nature. In a natural setting you’re looking at billions of illuminated surfaces over a deep field of vision, and the eye is capable of comprehending that and assessing it. It’s not just about light washing a surface, but interacting with elements and materials, providing a richer and more informative capability to elucidate the character of a place.”

7 World Trade Center, New York (2003–06)The tower’s 82-foot-high podium wall at its base is composed of a double-layer stainless steel screen and conceals Con Edison transformers. The screen’s prismatic wires catch light during the day, and at night interact with LED lighting.

© Andreas Keller

7 World Trade Center, New York (2003–06)The tower’s 82-foot-high podium wall at its base is composed of a double-layer stainless steel screen and conceals Con Edison transformers. The screen’s prismatic wires catch light during the day, and at night interact with LED lighting.

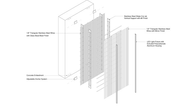
7 World Trade Center, New York (2003–06)An exploded axonometric view of the podium wall showing the double-layer stainless steel screen and LED lighting elements.

© JCDA

7 World Trade Center, New York (2003–06)An exploded axonometric view of the podium wall showing the double-layer stainless steel screen and LED lighting elements.

Many Disciplines, Many Companies
In addition to JCDA, Carpenter is a partner in three other companies: Carpenter Norris Consulting, in New York, which designs daylighting systems; Architecture Operations, also in New York, a licensed architecture practice that works on smaller building projects; and London-headquartered Carpenter Lowings, which takes on European projects and is run by former JCDA employee Luke Lowings.

Folded Light, London (2013–16) Designed by Carpenter’s U.K. firm, Carpenter Lowings, this artwork was created for a 40-meter-tall atrium in a new office building. The folded panels capture the vertical angles of light across the 10-story space.

Timothy Soar

Folded Light, London (2013–16) Designed by Carpenter’s U.K. firm, Carpenter Lowings, this artwork was created for a 40-meter-tall atrium in a new office building. The folded panels capture the vertical angles of light across the 10-story space.

Carpenter Lowings recently completed Folded Light, an installation that embodies the blend of architecture, art, design, and engineering that characterizes Carpenter’s career-long fascinations. Running the full height of a narrow, 40-meter-tall (430.5-foot-tall) atrium in a 10-story office building in London, the work is composed of 47 folded, triangular stainless steel panels asymmetrically divided by a blade of dichroic glass. As in JCDA’s Sky Reflector-Net at the Fulton Transit Center in lower Manhattan, daylight activates the rippled surface by entering at the top of the atrium, connecting the space to what is happening in the sky. Meanwhile, the dichroic glass casts differing complementary colors on either side of the space. Cool-white electric lighting shines down on the installation from above, while a range of sources, emitting different colors, uplight the work, and sidelight emanates from each of the building’s floors. All supplement the natural light and accentuate the rich hues produced in the surfaces of the stainless steel panels.

Sky Reflector-Net at Fulton Transit Center, New York, (2004–14)Commissioned for the MTA Arts for Transit and Urban Design, JCDA’s competition-winning “lightweight tensile structure” brings daylight through the transit hub’s atrium and all the way down to the station’s subway platforms below.

©JCDA

Sky Reflector-Net at Fulton Transit Center, New York, (2004–14)Commissioned for the MTA Arts for Transit and Urban Design, JCDA’s competition-winning “lightweight tensile structure” brings daylight through the transit hub’s atrium and all the way down to the station’s subway platforms below.

Sky Reflector-Net at Fulton Transit Center, New York, (2004–14)A soaring sense of space and endless light fills the main atrium, lifting one's eye up to the sky.

James Ewing/OTTO

Sky Reflector-Net at Fulton Transit Center, New York, (2004–14)A soaring sense of space and endless light fills the main atrium, lifting one's eye up to the sky.


Illuminating Phenomena
JCDA is currently working with architects Cooper Robertson and Partners and landscape architecture firm Michael Van Valkenburgh Associates on a renovation of the Museum of Westward Expansion at the Jefferson National Expansion Memorial in St. Louis. The project includes a new western entrance and 45,000-square-foot addition to the museum, which is buried under the plaza at the feet of Eero Saarinen’s Gateway Arch. For this, JCDA is designing optical aluminum surfaces that diffuse and reflect the natural light conditions on the plaza deep into the interior, blending the experience of the exterior and subterranean environments.

Museum of Westward Expansion, St. Louis, (2010–present, below)Scheduled to open in 2017, this rendering shows the new entry plaza. The form “suggests the cast shadow of the Arch on the landscape.”

©JCDA

Museum of Westward Expansion, St. Louis, (2010–present, below)Scheduled to open in 2017, this rendering shows the new entry plaza. The form “suggests the cast shadow of the Arch on the landscape.”

Museum of Westward Expansion, St. Louis, (2010–present, below)A rendering of the new entry.

©JCDA

Museum of Westward Expansion, St. Louis, (2010–present, below)A rendering of the new entry.


“It’s not just about light washing a surface, but interacting with elements and materials, providing a richer and more informative capability to elucidate the character of a place.”
—James Carpenter


Though not a lighting designer per se, Carpenter has worked with light throughout his professional life. His innovative approach to materials and how they can be developed and used to further our understanding and appreciation of light phenomena serves as a guide and as an inspiration for those working with light. As in a James Turrell Sky Space or Robert Irwin light work, Carpenter’s projects ask us to slow down and experience something we take for granted, namely the behavior of a star’s life-giving photons as they interact and illuminate the world around us. •

About the Author

No recommended contents to display.

Upcoming Events

  • Design Smarter: Leveraging GIS, BIM, and Open Data for Better Site Selection & Collaboration

    Live Webinar

    Register for Free
  • Slate Reimagined: The Surprising Advantages of Slate Rainscreen Cladding

    Webinar

    Register Now
  • The State of Residential Design Today: Innovations and Insights from RADA-Winning Architects

    Webinar

    Register for Free
All Events