Kroon Hall

New Haven, Conn./Hopkins Architects

5 MIN READ
Sir Michael Hopkins, Chairman, Hopkins Architects

Sir Michael Hopkins, Chairman, Hopkins Architects

Green design is an attractive alternative these days. But given the eco-friendly mission of the School of Forestry and Environmental Studies at Yale University in New Haven, Conn., building green was not an option. It was an imperative. In planning their new $33.5 million building, school administrators not only sought to create a healthy place to study and work, they also wanted to bridge the gap between nature and people, deep in the heart of the city. That goal was met with aplomb by Hopkins Architects, of London, whose Kroon Hall—designed to consume half the energy of an equivalent academic building and reduce greenhouse gas emissions by 62 percent—is targeted to achieve LEED Platinum.

A blend of optimal performance and good design, the new home to faculty offices and an environmental resource center cuts a contemporary image while fitting comfortably among the venerable landmarks of Yale. “The challenge was to convert a backyard into a nice place,” says Hopkins director Michael Taylor. A gas-fired power plant, parking lot, and assorted dumpsters were removed from the site, replaced by the new academic center and two courtyards that knit the campus together. “That’s a big win,” Taylor adds.

Working with executive architect Centerbrook Architects and Planners and sustainability consultant Atelier Ten, Hopkins created a 58,000-square-foot facility whose tall, narrow shape and east-west orientation reinforce the active and passive strategies used to heat and cool it. The lowest floor is set into a hillside, with only its south side exposed, providing thermal insulation and increasing the amount of natural light that enters the building from adjacent courtyards. A south-facing colonnade encourages activity to spill outside.

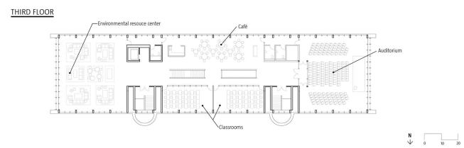
Thick walls of Briar Hill sandstone on the north and south façades have operable, high-performance windows set deep within precast concrete surrounds to shade from summer sun. Raised above the walls is a barnlike roof supported by arched frames of laminated Douglas fir. The roofline, lined in red oak (half of which comes from Yale’s own forests), creates a third-floor loft that houses an auditorium, two classrooms, a café, and a large common room.

As part of the design process, the team evaluated some 25 different sustainable measures to determine which were most cost- and energy-efficient. A 100-kilowatt photovoltaic array on the rooftop proved most desirable. It supplies 25 percent of the building’s electrical need. (The remaining electricity will be purchased from renewable sources, allowing the building to meet its goal of carbon neutrality.) In addition, four solar panels embedded in the southern façades help provide the building with hot water. Heating and cooling is provided by ground-source heat pumps that draw water from four 1,500-foot-deep wells near the building.

Integral to the building’s design is a displacement ventilation system that moves air through a plenum and into occupied spaces through diffusers in the raised floors. Low-velocity fans in the basement keep the air circulating almost imperceptibly. Fresh air is fed into the building through this system in summer and winter. But in spring and fall the mechanical systems are shut down, and occupants (prompted by color-coded lights) open the windows for ventilation.

A rainwater harvesting system channels water from the roof and grounds to a garden in the south courtyard, where aquatic plants filter out sediment and contaminants. The graywater is then used for landscape irrigation or pumped back into Kroon Hall for flushing toilets. In tandem with low-flow fixtures, the system is expected to save more than 500,000 gallons of potable city water per year.

Just four years ago, Yale President Richard Levin pledged to achieve a 43 percent reduction in Yale’s greenhouse gas emissions by 2020. With the completion of Kroon Hall, the most sustainable building on campus, the university has taken concrete steps to achieve that goal.



Project Kroon Hall
Location New Haven, Conn.
Client Yale University—John Bollier (associate vice president of facilities); Laura Cruickshank (university planner); Sam Carbone (director of project management and construction); Lawrence Regan (planner); David Spalding (senior mechanical engineer); Danielle Gunther-Gawlak (project manager)
Design Architect Hopkins Architects, London—Sir Michael Hopkins (chairman); Michael Taylor (director); Sophy Twohig (project director); Henry Kong, Thomas Corrie, Tom Jenkins, Nate Moore, Edmund Fowles, Andrew Stanforth, Kyle Konis, Rose Evans, Sascha Novograd, Laura Wilsden (project team)
Executive Architect Centerbrook Architects and Planners, Centerbrook, Conn.—Mark Simon (partner); James A. Coan (project manager); Theodore C. Tolis
Structural Engineers, Mechanical, Electrical, Plumbing, Fire Protection Arup
Sustainable Design Atelier Ten
Landscape Architect Olin Studio
Civil Engineering and Stormwater Management Nitsch Engineering
Geothermal Engineers Haley and Aldrich
Construction Manager Turner Construction Co.
Excavation and Sitework Ralph Camputaro & Son Excavating
Landscaping Valley Crest Landscape Development
Size 58,000 square feet
Cost $33.5 million


Structure

Structural steel with up to 95 percent recycled content
Capco Steel
capcosteelco.com

Exterior Cladding

Sandstone masonry
The Briar Hill Stone Co.
briarhillstone.com

Precast concrete
Rex Precast Systems
rexprecast.com

Structural red oak glulam beams
Goodlam, a division of Goodfellow
goodfellowinc.com

Douglas fir arch and louvers
Goodlam, a division of Goodfellow
goodfellowinc.com

Windows and Glazing

Custom metal and glass curtain wall
Kawneer North America
kawneer.com

Custom windows
Marvin Windows and Doors
marvin.com

Custom skylight system
Wasco Skylight Products
wascoskylights.com

Doors

Custom doors
Builders’ Hardware
builders-hardware.net

Roofing

Sloped metal roofing
Follansbee Roofing
follansbeeroofing.com

Interior finishes

Cabinetwork and custom woodwork
Legere Woodworking
legeregroup.com

100 percent FSC-certified wall paneling
Legere Woodworking
legeregroup.com

Custom partitions
Partitions Inc.
partitionsincct.com

ElectroShade system for motorized shades
MechoShade Systems
mechoshade.com

Ceilings

Custom ceiling panels
Rulon Co.
rulonco.com

Flooring

Menagerie modular carpet tiles
InterfaceFLOR
interfaceflor.com

Furnishings

Think task chair
Steelcase
steelcase.com

Leap task chair
Steelcase
steelcase.com

B2 lounge chairs
Bernhardt Design
bernhardtdesign.com

B1 sofa
Bernhardt Design
bernhardtdesign.com

Luca chairs
Kusch + Co.
kusch.com

Custom tables
Fairhaven Furniture
fairhaven-furniture.com

Monumental entrance benches
Fairhaven Furniture
fairhaven-furniture.com

Lighting

P5 wall-mount wall washing fixture
Winona Lighting
winonalighting.com

FCSLR 803 exterior die-cast recessed step light
FC Lighting
fclighting.com

GR4B-132T8 interior downlight
Gammalux Systems
gammalux.com

FRR-07030 fixture
The Kirlin Co.
kirlinlighting.com

FRR-07031 fixture
The Kirlin Co.
kirlinlighting.com

One Line task lighting
Artemide
artemide.us

Design DSK-40 exterior fixture
Quality Lighting, a Philips Group brand
qlty.com

Lumark small Vaportight exterior accent fixture
Cooper Lighting
cooperlighting.com

FCSL 505 exterior die-cast step light
FC Lighting
fclighting.com

nLight control system
Sensor Switch
sensorswitch.com

Photovoltaics

Model 225 solar photovoltaic panel
SunPower
us.sunpowercorp.com

Plumbing

LaZer2, bespoke solar thermal domestic hot water array
Solar UK
solaruk.com

Bespoke reclaimed water tank
Fiber Technology Corp.
fiberteccorp.com

Solar-powered faucets, fixtures, toilet flush valves
Sloan Valve Co.
sloanvalve.com

Waterless no-flush urinals
Waterless Co.
waterless.com

Building Management System

Customized building management software system
Automated Logic Corp.
automatedlogic.com

Special Equipment

Adsolair 561901 air-handling unit with double-pass heat recovery and indirect evaporative cooling
Menerga
menerga.co.uk

WW 420, water-to-water reverse cycle heat pump
FHP Manufacturing
fhp-mfg.com

About the Author

No recommended contents to display.

Upcoming Events

  • Design Smarter: Leveraging GIS, BIM, and Open Data for Better Site Selection & Collaboration

    Live Webinar

    Register for Free
  • Slate Reimagined: The Surprising Advantages of Slate Rainscreen Cladding

    Webinar

    Register Now
  • The State of Residential Design Today: Innovations and Insights from RADA-Winning Architects

    Webinar

    Register for Free
All Events