Residential

Grand Award: BrightBuilt Barn, Rockport, Maine

BrightBuilt Barn

2 MIN READ

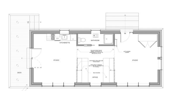
Small is not only beautiful these days, but also more practical, adaptable, and sustainable, as exemplified in the 640-square-foot BrightBuilt Barn prototype production house. Every aspect of this LEED-Platinum home, from materials selection to net-energy performance to water efficiency, was thoughtfully integrated into its design and carefully executed in its pre-fabricated construction.

The judges commended BrightBuilt’s simplicity of form and how well it “lives” for its size due to its flexible open plan. But they also appreciated the performance-focused features integrated into a replicable package, and the obvious results, including a HERS rating of 23 and an ACH@50 of 0.590. “From its inception, the design was driven by five guiding principles: livability, sustainability, replicability, disentanglement, and education,” explains Robin Tannenbaum of project designers Kaplan Thompson Architects.

The prototype is packed with every option available now in the for-sale models that Kaplan Thompson and Bensonwood Homes are offering: a super-insulated shell (R-40), a 6.2-kW grid-connected PV array and an evacuated-tube solar thermal system, a supplemental heat pump and heat recovery ventilation, high-efficiency lighting fixtures, and water-efficient plumbing fixtures. A way-cool real-time energy monitoring system includes an LED light skirt on the exterior perimeter that glows green when the house is a net-producer and red when it’s using grid power.

Production models are fitted for options, shop-fabricated, and shipped to the site for fast, efficient assembly. “This house pulls everything together,” said one judge. “You don’t have to say it’s a good green house, it’s just a good house.”

Project Details

Project


BrightBuilt Barn, Rockport, Maine | Size: 640 square feet | Price: $125,000 to $225,000 (depending on options) | Completed: Fall 2008 | Certifications: LEED-Platinum; Living Building Challenge | HERS Rating: 23 | Architect: Kaplan Thompson Architects, Rockport, Maine | Builder: Bensonwood Homes, Walpole, N.H. | Verifier: Fore Solutions, Portland, Maine

Green Highlights
Energy: R-40 shell / Thermotech triple-glazed windows (unit value R-4.6, U-0.20) / 6-kW SunPower PV system / Thermomax Mazdon evacuated-tube solar thermal / Trane Wethertron heat pump / Aspen dual coil air handler | Resources: Locally milled lumber and finishes / engineered framing / Atlas metal roofing with 31% recycled content | IAQ: Huber Advantech formaldehyde-free sheathing / Lifebreath HRV / low-VOC paints and finishes | Water: low-flow Kohler, Delta, and Sterling plumbing fixtures / drought-tolerant landscaping


PRODUCTS
Windows and Doors: Thermotech Fiberglass Fenestration / Polycarbonate Panels: Duo-Gard / Door Hardware: Stanley / Timber Framing: Nordic Engineered Wood / Siding: Locally milled pine
Roofing: Atas / Decking: Locally milled Eastern white cedar / Insulation: Dow; National Fiber; Bonded Logic / Appliances: Danby (refrigerator); Verona (stove); Fisher & Paykel (dishwasher) / Countertops: Jon Meade Design / Cabinetry: Liza Wheeler / Kitchen Faucets: Kohler / Bath Faucets: Kohler / Showerhead: Delta / Toilets: Sterling / Flooring: Locally sourced white pine / Paints & Stains: Land Ark; Painter’s Touch; Cabot / Interior Lighting: Lightolier; Philips Color Kinetics; Lithonia Lighting / Exterior Lighting: Philips Color Kinetics; Intense Lighting / HVAC: Lifebreath; Trane; Aspen / Alternative Energy: SunPower (PV); Thermomax (solar hot water)

Click here to see all 2010 EHDA Winners.


About the Author

Rick Schwolsky

Rick Schwolsky, construction manager for the 2015 Greenbuild Unity Home, has worked in the residential construction industry for more than 40 years with a special focus on high-performance homes. Before joining Hanley Wood in 1993 as BUILDER’s construction editor and later launching EcoHome magazine, he was president of Grafton Builders, a successful custom home building company in Vermont. 

No recommended contents to display.

Upcoming Events

  • Design Smarter: Leveraging GIS, BIM, and Open Data for Better Site Selection & Collaboration

    Live Webinar

    Register for Free
  • Slate Reimagined: The Surprising Advantages of Slate Rainscreen Cladding

    Webinar

    Register Now
  • The State of Residential Design Today: Innovations and Insights from RADA-Winning Architects

    Webinar

    Register for Free
All Events