GGA Offices

Washington, D.C. / Group Goetz Architects

3 MIN READ
Lewis J. Goetz, President and CEO, Group Goetz Architects

Lewis J. Goetz, President and CEO, Group Goetz Architects

When Group Goetz Architects (GGA) decided to move from the central business district of Washington, D.C., to the Georgetown neighborhood, the firm saw an opportunity to put its philosophy into practice and create one of the city’s few LEED Platinum office interiors. “We wanted the office to be the highest level LEED that we could achieve,” says Lewis J. Goetz, president and CEO. “It’s hard to be talking to your clients about LEED when your own space is not at a high level.”

Achieving platinum presented a challenge since the seven-story K Street building was not LEED certified. It did offer a green roof, bike parking with showers, and proximity to mass transit, but the interior needed special consideration. GGA worked with the landlord on ways to affordably incorporate sustainable elements into the buildout of its 12,640-square-foot shell as well as in the communal bathrooms shared with other tenants. The interior design harnesses natural daylight from three walls of windows, flooding more than 90 percent of the office with light. Low-mercury fluorescent bulbs by Osram Sylvania in fixtures by Zumtobel are controlled by a system of sensors and dimmers that reduce lighting use by 35 percent. Furniture from the old office was repurposed, and the new furniture and finishing materials are renewable and locally sourced. In all, the design nets 44 points on the LEED rating system.

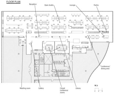
In addition to sustainability considerations, GGA also wanted the new environment to foster collaboration and mobility. The office is organized around one main artery that separates two primary work areas. On one end is the reception area; on the other, the designers’ work studio.

The main corridor houses public functions such as a library, an employee lounge with a fireplace, and conference rooms. In the designers’ studio, there are no private offices. All staff, including the executive team, works out of large open spaces with stunning views of the city. “It’s an egalitarian and dynamic environment,” Goetz says. And then there are the other perks, such as healthy vending machines and wine and espresso bars.

The resultant space is a bright modern interior that belies its green credentials, an achievement that was very much by design. “Clients walking in don’t think it’s necessarily LEED,” Goetz says. “I wanted to show people that you could make beautiful spaces that can also be LEED Platinum.”



Project Group Goetz Architects Washington, D.C. Offices
Location Washington, D.C.
Client Group Goetz Architects
Architect Group Goetz Architects, Washington, D.C.—Lewis J. Goetz (president and CEO); Mansour Maboudian (principal, director of sustainable design); Elizabeth Cockerham (chief administrative officer); Rina H.K. Li (associate, project design leader); Amber Kwasniewski, Laura Madge (project designers)
M/E/P Engineer Charles Szollosy
Construction Dietz Construction
Size 12,640 square feet
Cost $885,000


THE SPEC LIST

Power

Power poles
Unistrut
unistrut.com

Ceilings

Optima open plan ceiling tiles
Armstrong
armstrong.com

Optima ceiling grid
Armstrong
armstrong.com

Finishes

FSC-certified walnut panel
Tuohy
tuohyfurniture.com

White marble slab
Rugo Stone
rugostone.com

Blackout film in matte black
3M
3m.com

D Line door pulls
Carl F International
carlf.com

Window shades
MechoShade
mechoshade.com

Furniture

Storwal storage system
Inscape Solutions
inscapesolutions.com

Sushi tables
Kristalia
kristalia.it

Arne Jacobsen Series 7 side chair
Fritz Hansen
fritzhansen.com

Sarapis stool
Driade
driade.com

Custom desk in FSC-certified walnut
Tuohy
tuohyfurniture.com

BCN stool
Kristalia
kristalia.it

Deer bench in white
Quinze and Milan
quinzeandmilan.tv

Le Corbusier LC3 lounge chair
Cassina
cassinausa.com

District desking system
Teknion
teknion.com

Current System furniture
Knoll
knoll.com

Current System shelves
Knoll
knoll.com

Eames round table with white marble top
Herman Miller
hermanmiller.com

M4 monitor mounts
Humanscale
humanscale.com

Eames aluminum lounge chair
Herman Miller
hermanmiller.com

Fabrics

Ricochet textile in Topaz
KnollTextiles
knolltextiles.com

Lighting

High-efficiency ceiling fixtures
Zumtobel
zumtobel.us

Light fixtures
Lighting Services Inc.
lightingservicesinc.com

Custom fixture
Artemide
artemide.us

Automated lighting control system
Sensor Switch
sensorswitch.com

Talak fixture
Artemide
artemide.us

Task lighting control system
Artemide
artemide.us

Light fixture
Bartco Lighting
bartcolighting.com

Low-mercury fluorescent bulbs
Osram Sylvania
sylvania.com

Flooring

Lonstage UV sheet vinyl flooring in shiny white
Lonseal
lonseal.com

Customized First Ave. carpet tile
Interface Global
interfaceglobal.com

Tac Tiles carpet installation system
Interface Global
interfaceglobal.com

Glass

Lumisty control film on ½” glass
Glassfilm Enterprises
glassfilmenterprises.com

Back-painted glass
Bendheim
bendheim.com

Color-matched yellow glass
McGrory Glass
mcgrory-glass.com

About the Author

Elizabeth Evitts Dickinson

Elizabeth Evitts Dickinson has been a contributing editor with ARCHITECT since 2008. Her articles and essays have appeared in The New York Times, The New Yorker, Co.Design, and CityLab among many other publications.

No recommended contents to display.

Upcoming Events

  • Build-to-Rent Conference

    JW Marriott Phoenix Desert Ridge

    Register Now
  • Reimagining Sense of Place: Materiality, Spatial Form, and Connections to Nature

    Webinar

    Register for Free
  • Homes that Last: How Architects Are Designing a Resilient Future

    Webinar

    Register Now
All Events