Colonel H. Weir Cook Terminal at Indianapolis International Airport

Indianapolis / HOK

5 MIN READ
Ripley Rasmus, Designer, HOK

Ripley Rasmus, Designer, HOK

The average American businessperson’s carbon footprint is made far larger by air travel than by a daily car commute, so the idea of an eco-friendly airport is hard to imagine. But the new Colonel H. Weir Cook Terminal at Indianapolis International Airport, designed by HOK, promises to be one of the first LEED-certified facilities of its type.

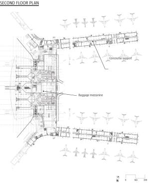
“This is out of category for USGBC,” says HOK designer Ripley Rasmus—noting the difficulties of a greenfield airport whose site work includes enormous stretches of taxiway and tarmac. But the mitigation of the complex’s environmental impact starts with its location. The terminal’s opening late last year completed a 25-year master plan that replaced an uninspired utilitarian complex at the east end of the runways with this new midfield terminal—located at the center of the two parallel main runways. It’s estimated that airlines will save $1 million in jet fuel this first year because of shorter taxiing patterns. Demolished taxiways and roadways produced 7,000 tons of materials that were recycled as site fill.

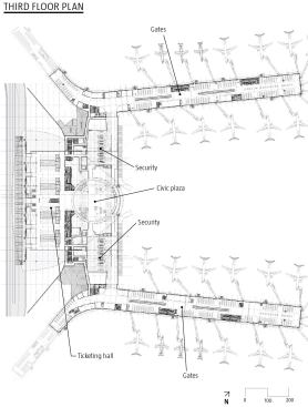
The 1.2-million-square-foot terminal has a central arrival and departure structure with two gently curving concourse wings that hold 40 enclosed-jetway gates. The main building is topped by an undulating roof whose broad sweep creates generous spaces below. The ticketing hall leads to the civic plaza—a public space that allows visitors to shop, eat, and watch planes take off. Between the civic plaza and the concourses are passenger screening facilities that are large enough to be reconfigured to accommodate future security developments, a legacy of the terminal’s post-9/11 design.

“The design was material-, not product-, driven,” says Rasmus—who contrasts this approach to “the typical American model—put up a shed and slap materials on it.” The high-performance curtain wall that encloses the building was custom designed by HOK and manufactured by Josef Gartner GmbH. Recycled materials form most major construction items, notably the steel structure and concrete for the building’s foundations. HOK also devised methods to mitigate the environmental effects of some of the unavoidably toxic aspects of airport operation. Glycol—an essential ingredient in deicing mixtures­—runs off into apron areas that have been designed to collect, filter, and recycle these compounds.

This new terminal may be in a LEED category of its own, but it creates an iconic destination for travelers to this Midwestern capital city while proving that it’s possible to decrease the airline industry’s environmental footprint.


Project Col. J. Weir Cook Terminal at Indianapolis International Airport
Location Indianapolis
Client Indianapolis Airport Authority
Architect HOK, St. Louis—Ripley Rasmus, Mark Askew, John Brocato, Leesa Coller, Chip Crawford, Dennis Gillespie, Tom Kaczkowski, Terry Mattison, Ali Moghaddasi, Richard Powers, Bill Valentine, Dhaval Barbhaya, Edward Chan, Robert Chicas, Jeff Davis, Clark Davis, Paul Donnelly, Neil Eisenberger, Tim Gaidis, Sara Graham, Valerie Greer, Julie Maggos, Andrew Kilmer, Laura Linn, Craig Menn, Derek Prior, Arthur Ramirez, Jeff Ryan, Matt Snelling, Kyle St. Peter, Richard Tell, John Vogt, David Ziolkowski (project team)
General Contractor Hunt Construction Group
Program Manager Aviation Capital Management
Structural Engineer Thornton Tomasetti Group
Environmental RLR Associates
MEP Engineers Syska and Hennessy Group
Associate Architects BSA LifeStructures;ARCHonsortium
Collaborating Architect Aero Design Group
Environmental Engineering Shrewsberry & Associates
Baggage/Handling BNP Associates
Cost Estimating U.S. Cost
Lead Airside/Civil CM Turner Construction Co.
Steel Fabrication Alberici Construction
Code Consulting Code Consultants
Curtain wall Advanced Structures Inc.
Energy/Sustainable Design Architectural Energy Corp.
Associate CM Smoot Construction; Powers and Sons
Associate Airside/Civil CM Trotter Construction Co.; Shiel Sexton
Airside Planning & Design RW Armstrong
Lighting Design HOK Lighting Group
Terminal Consultant TransSolutions
Airport Planning Aerofinity
Size 1.2 million square feet


Structure

Structural steel and steel framing
Cives Steel Co.
cives.com

High roof trusses and tree columns
Alberici/Hillsdale Fabricators
alberici.com

Cast-in-place concrete
A2S04
a2so4.com

Metal decking
Wheeling Corrugating Co.
wheelingcorrugating.com

Roof

Terminal roof joists
Canam
canam-steeljoists.ws

Ticket hall and civic plaza acoustical roof deck
United Steel Deck/Nicholas J. Bouras Inc.
njb-united.com

Glazing and Windows

Insulated glass units
BGT Bischoff Glastechnik AG
bgt-bretten.de

Custom laminated fritte glass
BGT Bischoff Glastechnik AG
bgt-bretten.de

Unitized glazed curtainwall sections
ASI Limited
asilimited.com

Aluminum storefront 451 curtain wall
Kawneer North America
kawneer.com

Insulated skylights
Supersky
supersky.com

Curtain wall system insulated glazing units
Viracon
viracon.com

Masonry

Limestone masonry
Majestic Block and Brick
majesticblockandbrick.com

Veneer limestone
Evans Limestone Co.
evanslimestone.com

Finishes

Precast concrete panels with aluminum and steel accents
A2S04
a2so4.com

Alucobond metal wall panels
Sobotec Limited
sobotec.com

Metal wall panels
Trespa
trespa.com

Custom glass railings
Livers Bronze Co.
liversbronze.com

Miscellaneous metals
F.A. Wilhelm Construction Co.
fawilhelm.com

Paints and wallcoverings
CL Coatings
nacoatings.com

DensDeck, Type X gypsum board, abuse resistant board, glass-mat board
USG
usg.com

Interior composite metal panels, phenolic wall panels, custom handrails
Spohn Associates
spohnassociates.com

Ornamental metals
Metal Arts
metalarts.net

Doors

Custom DuraGlide automatic doors
Stanley Works
stanleyworks.com

PC-5 quarter-sawn cherry prefinished doors
Eggers Industries
eggersindustries.com

Wood doors, door hardware, steel doors and frames
Mulhaupt’s
mulhaupts.com

Ceilings

300C Linear Plank long span design for interior and exterior ceilings
Hunter Douglas Contract
hunterdouglascontract.com

Public area metal ceilings
Perry Acoustics Co.

Safety and Communications

Paging and fire alarm systems
ERMCO Electrical & Communications Contractor
ermco.com

Furniture

Eames Tandem Sling Seating
Herman Miller
hermanmiller.com

Vertical Transport

Traction elevator, hydraulic elevator, hydraulic freights, autowalks, escalators
Kone Corp.
kone.com

Lighting

Civic plaza lighting
Syska Hennessey Group
syska.com

Ceramic metal halide indirect lighting, semi-recessed wall washers
Ametrix Lighting
ametrixlighting.com

Ticket hall counter fixtures
NeoRay-Lighting
neoray-lighting.com

Pole lights
Hess America
hessamerica.com

Recessed and suspended fluorescent fixtures
Pinnacle Architectural Lighting
pinnacle-ltg.com

Compact fluorescent and ceramic metal halide downlights
Edison Price Lighting
epl.com

Accent lighting for art program
Zumtobel
zumtobel.us

Accent lighting for art program
RSA Lighting
rsalighting.com

Roof overhang lighting
Architectural Area Lighting
aal.net

About the Author

Edward Keegan

ARCHITECT contributing editor Edward Keegan, AIA, is a Chicago architect who practices, writes, broadcasts, and teaches on architectural subjects.

No recommended contents to display.

Upcoming Events

  • Design Smarter: Leveraging GIS, BIM, and Open Data for Better Site Selection & Collaboration

    Live Webinar

    Register for Free
  • Slate Reimagined: The Surprising Advantages of Slate Rainscreen Cladding

    Webinar

    Register Now
  • The State of Residential Design Today: Innovations and Insights from RADA-Winning Architects

    Webinar

    Register for Free
All Events