Wilkinson Eyre Architects’ Timber Dome Tops a Student Hub

The geodesic grid shell over the University of Exeter's Forum supports student life and looks great on T-shirts.

1 MIN READ
The Forum’s freeflowing gridshell mirrors 
the rolling hills around the University of Exeter. The designers used 
European oak to create the effect of a wooded canopy and capped the roof
 in copper, which will oxidize, form a green patina over time, and allow
 the building to age in harmony with its surroundings.

Hufton + Crow

The Forum’s freeflowing gridshell mirrors the rolling hills around the University of Exeter. The designers used European oak to create the effect of a wooded canopy and capped the roof in copper, which will oxidize, form a green patina over time, and allow the building to age in harmony with its surroundings.

With its design for an undulating geodesic dome roof, London-based Wilkinson Eyre Architects turned an underutilized infill space into the social and academic heart of the University of Exeter’s Streatham Campus. The 37,674-square-foot, free-form, timber grid shell—one of the largest in the United Kingdom—covers a 96,875-square-foot area called the Forum, which ties together the Great Hall Piazza, student guild, library, and other academic facilities with cafés, a shop, and a bank along a galleried “high street.” The soaring ceiling of oak-clad spruce timber shelters the Forum from South West England’s wet climate and floods it with natural light, thanks to a mix of glass and ETFE (ethylene tetrafluoroethylene) panels.

See a fly through of the University of Exeter Forum.

Wilkinson Eyre director and project lead designer Stafford Critchlow and his team used wood for the roof to reference the tree-covered campus, which was once part of Reed Hall, a Victorian-era country house and botanical garden. A pure timber grid shell of woven wood would have taken too long to build. Working with engineering firm Buro Happold and subcontractor SH Structures, Wilkinson Eyre developed a hybrid grid of timber linked by custom-fabricated steel nodes and flitch plates. The project’s success is clear: The iconic ceiling now appears on T-shirts, wayfinding signs, and event posters. “They used the grid-shell structure as a graphic, a kind of totem,” Critchlow says. “It’s become this sub-brand within the university.”

Natural light pours in through triangular 
bays filled with EFTE rooflights by London-based Vector Foiltec, chosen 
because they are lighter than conventional double glazing. Each 48 
square feet EFTE light consists of a three-layer cushion with a random 
printed frit pattern. Double-glazed windows cover the triangular 
openings in teaching and study areas to reduce rain noise.
“We originally envisioned more glass, but we ended up with half the 
number of light bays based on daylight modeling,” Critchlow says. “You 
can have too much light, especially when students are working on 
computers.”

Hufton + Crow

Natural light pours in through triangular bays filled with EFTE rooflights by London-based Vector Foiltec, chosen because they are lighter than conventional double glazing. Each 48 square feet EFTE light consists of a three-layer cushion with a random printed frit pattern. Double-glazed windows cover the triangular openings in teaching and study areas to reduce rain noise. “We originally envisioned more glass, but we ended up with half the number of light bays based on daylight modeling,” Critchlow says. “You can have too much light, especially when students are working on computers.”

Weathered, green-oak slats give the sun 
screen along the outer rim a feathery, natural look. The slats tie in to
 steel T-sections welded onto a 7.5-inch-diameter perimeter tube.

Hufton + Crow

Weathered, green-oak slats give the sun screen along the outer rim a feathery, natural look. The slats tie in to steel T-sections welded onto a 7.5-inch-diameter perimeter tube.

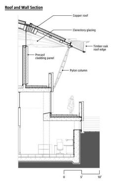
The team needed to stiffen the 
gridshell—to keep it from collapsing upon itself—without stretching 
tension ties across the ends. “We wanted a delicate junction where the 
roof oversails the adjacent parapet walls,” Critchlow says. “It’s all 
about making the shell structure as delicate as possible.” The team 
propped the gridshell up with tubular steel pylon columns that anchored 
into the ground.

Hufton + Crow

The team needed to stiffen the gridshell—to keep it from collapsing upon itself—without stretching tension ties across the ends. “We wanted a delicate junction where the roof oversails the adjacent parapet walls,” Critchlow says. “It’s all about making the shell structure as delicate as possible.” The team propped the gridshell up with tubular steel pylon columns that anchored into the ground.

The gridshell consists of prefabricated 
glulam timbers (twin-flitched spruce members doweled and secured with 
pairing screws) linked by round galvanized-steel nodes. Each node is 5 
inches in diameter and contains six mounting plates for receiving six 
timbers, which radiate out from the nodes like stout wagon spokes. When 
linked together, the timbers form large triangular bays, which are 
subdivided by smaller beams. To realize the complex geometry of the 
undulating dome in wood, the team used standard timber sizes (17.75 
inches by 3.5 inches) and custom-fabricated steel nodes bristling with 
mounting plates cocked at different angles to receive the timbers. The 
designers modeled the system using Tekla and Autodesk software. The 
nodes, timbers, and other parts were assembled on site like a 
complicated “piece of flat-pack furniture,” Critchlow says. A plywood 
skin and standing-seam copper cover the roof. Beneath the plywood, the 
ceiling comprises rigid thermal insulation, acoustical insulation, black
 acoustically transparent fabric, and finally the finished surface of 
0.75-inch-by-1.73-inch kiln-dried oak slats spaced 1.73 inches on 
center.

The gridshell consists of prefabricated glulam timbers (twin-flitched spruce members doweled and secured with pairing screws) linked by round galvanized-steel nodes. Each node is 5 inches in diameter and contains six mounting plates for receiving six timbers, which radiate out from the nodes like stout wagon spokes. When linked together, the timbers form large triangular bays, which are subdivided by smaller beams. To realize the complex geometry of the undulating dome in wood, the team used standard timber sizes (17.75 inches by 3.5 inches) and custom-fabricated steel nodes bristling with mounting plates cocked at different angles to receive the timbers. The designers modeled the system using Tekla and Autodesk software. The nodes, timbers, and other parts were assembled on site like a complicated “piece of flat-pack furniture,” Critchlow says. A plywood skin and standing-seam copper cover the roof. Beneath the plywood, the ceiling comprises rigid thermal insulation, acoustical insulation, black acoustically transparent fabric, and finally the finished surface of 0.75-inch-by-1.73-inch kiln-dried oak slats spaced 1.73 inches on center.

About the Author

Logan Ward

Freelance journalist Logan Ward has written about architecture, design, and innovation for The Atlantic, Smithsonian, Garden & Gun, Preservation, Popular Mechanics, and many other magazines. Ward is the author of See You in a Hundred Years, the true account of the year his family traded digital-age technology for the tools of his great-grandparents’ era.

No recommended contents to display.

Upcoming Events

  • Design Smarter: Leveraging GIS, BIM, and Open Data for Better Site Selection & Collaboration

    Live Webinar

    Register for Free
  • Slate Reimagined: The Surprising Advantages of Slate Rainscreen Cladding

    Webinar

    Register Now
  • The State of Residential Design Today: Innovations and Insights from RADA-Winning Architects

    Webinar

    Register for Free
All Events