Like artist Katsushika Hokusai and his famous woodblock prints, Takashige Yamashita’s first project under his own name is inspired by views of Mount Fuji. The project, a nursery (i.e., daycare) in the small town of Fujikawaguchiko in Japan’s mountainous Yamanashi Prefecture, is for a client that also owns and operates several elderly and assisted-living facilities on the site. The client hoped the nursery could double as a much-needed community gathering place and organized a design competition in 2015 to select an architect. Takashige, who left Tokyo-based firm SANAA the same year to open Takashige Yamashita Office in the Japanese capital, won the competition with a single-story building made up of several irregular volumes and a curved timber roof that billows like a sheet on a clothesline.
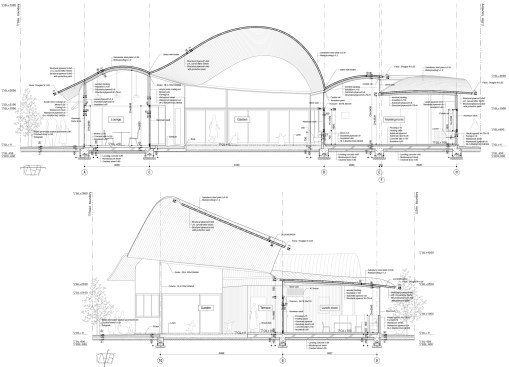
To Takashige, who spoke to ARCHITECT through an interpreter, the oversized roof is a unifying element, its various curves creating a “sequence of scenery” that divvies up the building into classroom, lounge, office, and garden while simultaneously connecting the individual spaces. Like a large tree in a public plaza, the building aims to gather the community—many of whom might have children in the nursery, relatives in the senior housing, or both—at its center, with multiple entrances and approaches also cued by the roof’s curves. The most dramatic roof section, which rises 24 feet over the terrace, perfectly frames Mount Fuji, some 16 miles away.

courtesy Takashige Yamashita
Exif_JPEG_PICTURE
The roof structure is a combination of structural plywood and laminated veneer lumber (LVL), which allows for a thin profile even at long spans. Takashige became interested in LVL technology while at SANAA and had begun talking with experts at the Japan-based timber manufacturing company Shelter about its applications.
For the Toranoko Nursery, Takashige modeled the curvature of each roof section, first with a paper model, then in Rhino 3D, consulting with Tokyo-based Sasaki and Partners. To prevent the need for support columns midspan, the design team developed a custom steel portal frame system, which features integrated steel plates to join the timber roof to the walls and form the basic structure of the building.

courtesy Takashige Yamashita
Exif_JPEG_PICTURE

courtesy Takashige Yamashita

courtesy Takashige Yamashita
The final roof structure consists of two layers of structural plywood that sandwich a series of curved LVL ribs. The ribs were cut to the specified radii by CNC machines out of 2-inch-thick LVL panels. They attach to the portal frames via a 2-inch-round steel pipe with welded steel plates. For longer spans, the ribs are spaced at roughly 1 foot; for shorter spans, 2 feet was sufficient. Shelter’s Yoshihiro Kimura, who managed the Toranoko project, says the roof structure was so thin that he worried it would fail. So his team built a full-scale mock-up to test the roof’s stability.

On either side of the ribs are two layers of 0.333-inch structural plywood, secured with both glue and nails. Unlike the top of the roof structure, where the plywood panels are 3 feet by 6 feet, Takashige specified panels just 3 inches wide for the ceiling that range from 2 to 3 feet in length to create the look of wood planks and give it a more luxurious aesthetic. The underside plywood is also finished with a clear coat of a finish called Nonrot. Above is a waterproofing adhesive layer and galvalume metal roof. From top to bottom, the roof’s profile measures just 3.5 inches deep.

courtesy Takashige Yamashita
As one might expect with so many structural connections, a number of adjustments had to be made on site during construction. “It didn’t really go as we imagined,” Takashige says. Several of the steel gusset plates were welded at the wrong angle and had to be bent into place to achieve the roof’s curve. Takashige describes the process as both “ironic and interesting,” given how much time had been spent on 3D modeling. Takashige admits that despite the extra work, he enjoyed the process. It gave him a sense of satisfaction, he says, working directly with the wood as does a furniture maker.
Timber architecture has a long history in Japan, but also has experienced a renaissance in recent years thanks to new technologies and an awareness of climate change. Takashige hopes the nursery contributes to the country’s growing collection of contemporary wooden buildings and helps push the limits of what is possible, particularly with regard to LVL technology and thin timber roofs. This building, he says, “suggests and shows another possibility of wood in Japanese architecture.”
This story has been updated since it was originally published. The timber ribs did not need to be recut, but rather the gusset plates had to be bent to achieve the proper angle. ARCHITECT regrets the error.