Lancaster Public Safety Building

2 MIN READ

Lancaster, Texas, a sleepy suburb of Dallas, is hardly where one expects to find highly engineered public buildings. But the recently completed Lancaster Public Safety Building, designed by Perkins+Will, is just that, a combined fire and police station with a 50-foot roof extension that is not a single, but a double cantilever.

The design team created four schemes, all of which combined the two departments into an L-shaped building, and all exploring ways both to create a strong presence from the adjacent highway and to set the structure apart from the other public buildings on site. The winning scheme featured the signature roofline.

Luckily, the design team found a series of local allies who were determined to push the cantilever through. “We were fortunate, not only to have an ambitious city manager,” Perkins+Will design director-principal Nick Seierup says, “but we also had two guys that ran the police and fire department that very much appreciated the forward-looking building.”

Those local champions were key, because whenever a question came up about cost-cutting, the first thing people looked to was the extensive, and expensive, roof structure. “When there were budget crunches,” says Kent Pontius, an associate in Perkins+Will’s Dallas office, “the clients were extra protective of the overall design.”

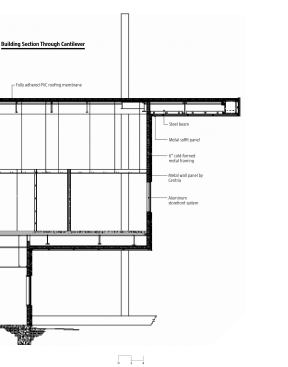
The first cantilevered element is the solid piece of roof that extends out over a recessed volume along the sidewalk. This then supports the front edge of the far more extensive second cantilever—a post-tension castellated beam system—that projects 50 feet over a reflecting pool. The steel members required for this larger projection reach up to 110 feet in length, and cables anchored in the building structure keep the beams in place. The additional internal structure is fairly minimal, with the beams infilled by metal studs and sheathing that act as a substrate for the Centria Formabond panels cladding the visible areas. The top is a PVC roofing membrane over rigid insulation.

The team made the decision to create a cut-out in the overhang because it would have been impossible to support a solid structure. But the engineers at Dallas-based L.A. Fuess Partners still had to contend with the building geometry, which dictated that none of the cantilever’s connecting points formed a true right angle.

This building would be a coup for any public agency, and especially at this fire and police department, which had been operating out of a dark rehabbed autorepair shop that had been hit by both floods and tornadoes. “Without exception, they’re all just thrilled with [the new facility],” says Pontius.

About the Author

Katie Gerfen

Katie Gerfen is the former editor-in-chief of ARCHITECT, as well as the former editor of Custom Home.

No recommended contents to display.

Upcoming Events

  • Slate Reimagined: The Surprising Advantages of Slate Rainscreen Cladding

    Webinar

    Register Now
  • The State of Residential Design Today: Innovations and Insights from RADA-Winning Architects

    Webinar

    Register for Free
  • Specifying Smarter with Copper-Clad Aluminum (CCA) Metal-Clad Cable

    Webinar

    Register for Free
All Events