Kendeda Building for Innovative Sustainable Design’s Tight Building Envelope

Designed by The Miller Hull Partnership and Lord Aeck Sargent, the 47,000-square-foot building at Georgia Tech aims to become the first certified Living Building in the Southeast.

4 MIN READ
View from northwest of the Kendeda Building for Innovative Sustainable Design at Georgia Tech.

Jonathan Hillyer

View from northwest of the Kendeda Building for Innovative Sustainable Design at Georgia Tech.

To design what is anticipated to become the first certified Living Building in the Southeast, Seattle-based The Miller Hull Partnership and Atlanta-based Lord Aeck Sargent, a Katerra Company, looked to Atlanta’s vernacular architecture, specifically the ubiquity of the front porch. The resulting 47,000-square-foot Kendeda Building for Innovative Sustainable Design is a multifunctional learning hub and maker space for Georgia Tech that also is a demonstration building for high-performance design strategies. Paid entirely by The Kendeda Fund, a private family foundation based in Atlanta, the $18.6 million building includes an auditorium, classrooms, teaching labs, and gathering spaces. It also anchors the Eco-Commons, an 8-acre green space that will pilot innovative stormwater strategies that the university plans to implement on a total of 80 acres across campus.

The concept of a porch as a climate-responsive approach to fostering a comfortable outdoor environment in the South “just fit,” says Miller Hull partner Brian Court, AIA. “It was a concept that was rooted in the regional history, and it worked for us on multiple levels: It fit the program, it worked with the site, and it worked with the whole concept of a Living Building.”

The ambitious project was complicated by the building’s north-south orientation, predetermined by its site, earmarked to embrace and insulate the adjacent Eco-Commons from excessive street noise. As a result, the two-story building has broad east and west façades. Ensuring that the high-performance goals remained attainable would require the designers “to keep the sun off the glass,” Court says. “The second the sun hits the glass, you’ve heated your building and you’ve got to figure out what to do with that energy.”

Miller Hull and LAS—acquired by the Menlo Park, Calif.–based construction technology company Katerra in 2018—devised a largely passive, climatically responsive solution. On the west façade, where the building will meet the Eco-Commons, a soaring solar canopy extends 40 feet to effectively create a deep, shaded porch. Supported midspan by elegant, white-steel tensegrity columns, the saw-toothed canopy is topped with 917 solar panels sized to generate 140% of the building’s energy load.

West elevation, Kendeda Building for Innovative Sustainable Design

Jonathan Hillyer

West elevation, Kendeda Building for Innovative Sustainable Design

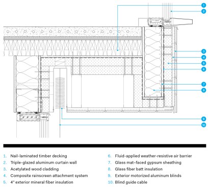
Wall section at soffit, west elevation

Courtesy The Miller Hull Partnership and Lord Aeck Sargent

Wall section at soffit, west elevation

The building’s expansive west elevation is alternately glazed and clad in either acetylated wood or corrugated aluminum siding. In the afternoon, automated aluminum sunshades controlled by a rooftop weather station deploy from the soffit under the building’s slightly cantilevered second floor, forming a continuous closed façade. Besides extending or retracting based on the sun’s position, the blinds can also rotate and automatically retract in high wind.

Although such sunshade systems are available off the shelf, adoption in the U.S. lags behind that in Europe, Court says, making sourcing and technical assistance more difficult. “With a lot of things on Living Buildings,” he explains, “you’re scratching at the surface of what’s to come, so not only are you paying a premium, but it’s more difficult to get those products integrated into the project.”

Limiting air infiltration was also key to the project, says LAS director of sustainable design Joshua Gassman. The building’s airtight envelope was accomplished by wrapping its glulam and nail-laminated timber structure with 4 inches of continuous Rockwool insulation installed over a fluid-applied weather barrier, and additional insulation between the metal studs that support the cladding.

A tight envelope design is as important in the Southeast as it is in Scandinavia, Gassman says. Summer temperatures in Atlanta regularly reach 90 F with 75% relative humidity. “Every unit of air that comes into the building, whether it’s through an open door or a leak in the skin, carries water vapor with it,” he says. “Keeping that water vapor and heat energy out of the building is what allows us to use very low-energy mechanical systems, like radiant heating and cooling.” A high-performance weather barrier and continuous exterior insulation are absolutely essential for a building’s design, he continues. “They will pay for themselves by shrinking your mechanical systems.”

Ceiling fans and radiant concrete topping slabs help condition the interior of the Kendeda Building for Innovative Sustainable Design.

Jonathan Hillyer

Ceiling fans and radiant concrete topping slabs help condition the interior of the Kendeda Building for Innovative Sustainable Design.

In the end, the passive design strategies are expected to reduce the Kendeda Building’s energy use by 72%, as compared with the average building in Atlanta. Living Building Challenge certification requires 12 months of post-occupancy data showing continuous net-positive water and energy generation. Gassman says the team will continue to meet regularly with Georgia Tech and the project’s general contractor, Skanska, to resolve any building performance issues.

Each of the challenges arising in the creation of a 21st-century space in sunny, hot, humid Atlanta informed the architecture in profound and ultimately beneficial ways, Court says. In other words, prioritizing performance resulted in no “compromise” to Kendeda Building’s design, he says. “I just see a better building.”

About the Author

Timothy A. Schuler

Timothy A. Schuler is a contributing editor at Landscape Architecture Magazine and writes about architecture, landscape architecture, and urban design for a variety of national and international publications. Based in Honolulu, he is a graduate of Kansas State University. Follow him on Twitter or visit timothyschuler.com. 

No recommended contents to display.

Upcoming Events

  • Design Smarter: Leveraging GIS, BIM, and Open Data for Better Site Selection & Collaboration

    Live Webinar

    Register for Free
  • Slate Reimagined: The Surprising Advantages of Slate Rainscreen Cladding

    Webinar

    Register Now
  • The State of Residential Design Today: Innovations and Insights from RADA-Winning Architects

    Webinar

    Register for Free
All Events