Floating a Faceted Landform Above a West Texas Rest Stop

A pair of safety rest areas in Pecos County evokes the region's mountainous terrain with Richter Architects' custom roofs and stonework design.

5 MIN READ
Pecos West County safety rest area, one of two matching buildings flanking Interstate 10 near Fort Stockton, Texas

David Richter

Pecos West County safety rest area, one of two matching buildings flanking Interstate 10 near Fort Stockton, Texas

There is an unspoken assumption among transportation departments that pairs of public rest areas flanking opposite lanes of America’s 46,876 miles of interstate highway ought to mirror one another, offering the same face to visitors. But along Interstate 10, west of Fort Stockton, Texas, near the edge of the Chihuahuan Desert, at least one rest area breaks that mold. Richter Architects demurred flipping either of the two buildings at the Pecos West County safety rest area in order to preserve their relationships to the site.

“Everything suggests that the building be flipped, but when we started looking at how the building would actually perform, particularly capturing the views, we said, ‘Wait a minute, this is not such a good idea,’ ” says David Richter, FAIA, who co-leads the Corpus Christi, Texas–based firm with Elizabeth Chu Richter, FAIA.

As a result, the facilities are not mirrored, but instead are duplicates in design and orientation. Each 7,600-square-foot building consists of two limestone-clad volumes connected by a glazed atrium lobby. Accessible via north and south entries, the lobby is topped by a jagged roof inspired by the Davis Mountains, which amass along the southern horizon of I-10. The roof dips low on the south elevation to offer shade from the intense desert sun and allows views out to the mountains and both directions of I-10, emphasizing “this notion of where you came from and where you’re headed to,” Richter notes.

Craig Blackmon

With more than 20 irregularly shaped facets, the folded-plate roof and canopy created a number of design challenges, Richter says. The roof is supported by a series of approximately 20-foot-long, steel C-channel joists that tie into the building’s load-bearing concrete masonry unit structure and the atrium’s pressure-glazed curtain wall sash system, framed in weathered steel tubing that soars up to 20 feet tall. Inside, the roof’s sharp undulations are expressed in a white, perforated gypsum board ceiling. Outside, the canopy’s plywood decking is topped with a PMMA membrane while a fiber-cement fascia and earth-toned plaster soffit reinforce the building’s connection to the natural forces of uplift and accretion.

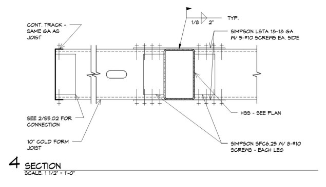
Cantilevering the canopy up to 8 feet past the curtain wall to evoke the sense of a floating landform was particularly complex. Richter Architects worked with the Dallas office of JQ Engineering to design a continuous, welded steel tube beam that traces the roof’s dramatic contours and tucks above the head of the curtain wall.

Recessing the beam into the roof cavity presented a structural conflict with the intersecting steel joists, which visually appear to run continuously across the curtain wall. “They can’t occupy the same space,” Richter says. To resolve the issue, the design team stitched each joist to the beam using two 18-gauge steel plates. The plates, which are 18 inches long, attach to the top and bottom flanges of the joists, span the intervening beam, and are secured on either side with five #10 screws. Three inches of rigid insulation on the outboard face of the beam reduce thermal transfer.

Section at curtain wall head and roof canopy

Courtesy Richter Architects

Section at curtain wall head and roof canopy

Section detail of metal straps at beam-and-joist intersections

Courtesy Richter Architects

Section detail of metal straps at beam-and-joist intersections

Though the solution took time to design and detail, Richter says, “it was a relatively simple proposition.” However, ensuring that the joists visually aligned was difficult. “Because the framing is essentially stick-built and there is no contiguous shoring to assist in alignment, quality execution is dependent on care,” Richter explains. To ensure that the orientation of the joists matched in the horizontal and vertical planes, the architects worked on-site with the steel contractor, Richter adds, “climbing scaffolding and looking down ridges to verify an acceptable level of precision.”

Where the atrium canopy terminates in an expanse of limestone masonry, the connection is more straightforward. A continuous steel strap formed to the roof’s folded shape is bolted to the building’s CMU structure, like a giant lintel. However, because the architects wanted the stone volumes to appear as solid, stand-alone masses, they added a reveal—a 0.75-inch gap left between the gypsum board ceiling and the limestone veneer. (Outside, a plaster casing bead creates a similar effect.) This detail meant the stone masonry under the roofline of the canopy had to be laid prior to the roof structure being erected, after which the stone masons could return to finish the job.

David Richter

The project’s biggest challenge was achieving a naturalistic coursing for the stone, which the architects envisioned as emulating the linear but variable striations visible in the hillsides. However, the stonemasons gravitated toward a consistent size of stone block, in part because that was what was arriving from the quarry, some 280 miles east of the site.

“They were starting to lay this thing, and it didn’t look anything like what we asked them to do,” Richter says. “So we put a stop to it and said, ‘OK, we have to go to the quarry because they’re not even getting these things out of the ground the way they’re supposed to be.’ ”

At the quarry, the architects hand-picked several stone types, some just 1 inch thick. “The quarry started realizing that we didn’t want uniformity,” Richter says. “We wanted the rocks as long and as skinny as we could get them.” The team then constructed an on-site mock-up, laying the stones on the ground in the desired pattern.

Thousands of drivers from around the world have stopped at the new I-10 rest areas since their opening in February 2018. The firm is pleased with the project’s connection to the austere, breathtaking landscape of West Texas. Civic architecture, Richter notes, can often become, intentionally or not, caricatures of a region. However, he continues, “we have always felt [that] civic buildings … should be fun and interesting, but they should also be serious, genuine, and respectful of their place.”

Craig Blackmon

About the Author

Timothy A. Schuler

Timothy A. Schuler is a contributing editor at Landscape Architecture Magazine and writes about architecture, landscape architecture, and urban design for a variety of national and international publications. Based in Honolulu, he is a graduate of Kansas State University. Follow him on Twitter or visit timothyschuler.com. 

No recommended contents to display.

Upcoming Events

  • Design Smarter: Leveraging GIS, BIM, and Open Data for Better Site Selection & Collaboration

    Live Webinar

    Register for Free
  • Slate Reimagined: The Surprising Advantages of Slate Rainscreen Cladding

    Webinar

    Register Now
  • The State of Residential Design Today: Innovations and Insights from RADA-Winning Architects

    Webinar

    Register for Free
All Events