With a dazzling steel-mesh newel and transparent balustrade, the Miles Stairs provides a contemporary yet complementary focal point in the west wing of the neoclassical Somerset House, in London. Named for Gwyn Miles, former director of the Somerset House Trust, which owns the former royal palace and now popular arts and cultural center, the five-story staircase has 104 steps, which includes 14 landings.
The tight space available within the house and sensitivity to the architectural context guided local firm Eva Jiricna Architects (EJA) to design a helical stair that wraps an ethereal steel-mesh newel, which rises nearly 65 feet from a load-bearing floating slab to the ground level and then to the four upper floors. “A fine steel newel was adopted to create a central focus without becoming too dominant in the space,” says EJA director Duncan Webster.
The 4.75-foot-diameter newel consists of approximately 550 bent steel rods, each 4 meters (13.1 feet)​ long. The rods are welded to machined circular bosses, linked by facing steel plates—or “bicycle chain bracing,” Webster says—and secured by washers and countersunk bolts. EJA designed the staircase with Microstation and Rhinoceros while local structural engineer Techniker used Microstation, Robot, and Midas.

Richard Davies
The newel is made from 550 rods of 3-millimeter diameter steel.
Washers
and countersunk bolts embedded in the steel mesh also connect the spiraling array
of treads and landings to the newel. The streamlined, precast forms are made of Paris-based Lafarge‘s ultra-high-performance concrete Ductal Fiber Organic, which
provides high shear strength and recalls the Somerset House’s Portland-stone façade,
Webster says. Two high-strength bolts, measuring 450 millimeters long and 30
millimeters in diameter, link each T-shaped tread-and-riser module to the one
below it. These pre-stressed bolt connections
resist
slippage between the components and transmit bending, shear, and torsional forces
down the staircase’s spine, Webster says.

Peter Cook/View
A curved laminated glass balustrade wraps the stair.

Richard Davies
The precast tread-and-riser modules are made from Ductal concrete.
Though
EJA is known for incorporating glass into its feature staircases, the curved
glass balustrade encasing the Miles Stairs is more than an architectural
element: It also preserves views of the Somerset House’s decorative moldings and
paneling, Webster says. Made of 55 low-iron, laminated glass panels, the balustrade attaches
to the outer edge of the treads via washers and countersunk hex-head bolts.

3D model at base of stair

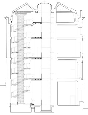
Stair section

Stair plan
Newcastle,
U.K.–based Clifford Chapman
Staircases fabricated the newel and coordinated the staircase installation,
and Fiume Veneto, Italy–based Il
Cantiere fabricated the precast treads and landings. The staircase’s metal and
concrete components were transported via truck to the site.
Construction began at the Somerset House in January 2013 under the direction of the general contractor Coniston, based in Kent, U.K. The work crew removed the existing staircase, interior walls, and floors from the top down and constructed the mid-basement floating slab to accommodate the new staircase and adjacent elevator.
The crew then used circular scaffolding and a lift-block assembly to construct the stairs from the bottom up. The newel was hand-builtin approximately 15-foot-tall sections. As the newel rose, the team added the treads and landings. Adjustable scaffolding supported each landing off the previous landing until the entire structure was assembled, including the balustrade and handrails. After checking for deflections, the team removed the temporary supports.
Construction
was completed in November 2013. The complex project and detailing were made possible because the project team designed and modeled the project digitally and resolved
issues during mockups and testing, Webster says.