Detail: Daylit Gallery

Architect: MUMA; Location: London, U.K.

2 MIN READ

When the Victoria and Albert Museum held an international competition seeking display strategies for its world-renowned Medieval & Renaissance Collection, London-based MUMA answered with a different proposal altogether. “The competition brief asked for display ideas, not what we proposed,” explains MUMA partner Stuart McKnight. “The competition format allowed us to risk mentioning the unmentionable.”

The strategy paid off: MUMA got the job. MUMA designed the museum’s new Daylit Gallery to connect the previously segregated Medieval and Renaissance galleries under one roof—specifically, a glass ceiling composed of translucent glass beams, some more than 30 feet in length, supporting glass panels to form an undulating roof. By removing existing stairs and installing the roof over interstitial spaces between the existing suite of medieval galleries, MUMA created a new public space for the museum, which is a Grade 1 listed historic building, meaning that it could not be altered without special planning permission.

Along the gallery’s edges, sunlight renders the historic façades in crisp highlight and shadow. The pitch of the heat-strengthened, laminated beams—which varies from 20 to 40 degrees—and the rhythm provided by the roughly 30-inch spacing between them gives the impression of a softly glowing, wavelike ceiling overhead. Along one edge, the glass beams sail cleanly over the semicircular parapet of the adjacent East Hall apse; opposite, they slice into the brick-and-stone façades of the Perimeter Galleries. By stitching together six floors of galleries into a coherent exhibit sequence, MUMA provided wheelchair access and daylight where none existed previously.

To realize the glass roof, in particular along the corner radial sections, MUMA considered heat-bending the double-glazed, insulated glass panels. Dewhurst MacFarlane and Octatube, the engineers for the ceiling’s “hypar surface,” discovered that the glass panels would remain flat along their edges, curving across the center only—allowing the engineers to cold-bend them.

“We began drawing straight lines across the space—connecting points along a bottom horizontal on one side with a top horizontal on the other,” said McKnight. “We discovered a natural rippling that occurred as the lengths and angles varied.”

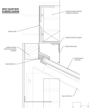
Each glass beam is supported by a steel bracket concealed within the masonry wall. Strategically, MUMA’s detail provided a way for masons to conceal the brackets and work beneath the line of the installed glass roof.

By distinguishing its thin, light, elegant material palette from the existing masonry, MUMA’s detailing helped win project approval from English Heritage. Prior to the successful bid, MUMA created full-scale mock-ups to test the project’s feasibility, in particular the ability to meet the manufacturer’s warranty criteria for the cold-formed, twisted, double-glazed roof units.

About the Author

No recommended contents to display.

Upcoming Events

  • Reimagining Sense of Place: Materiality, Spatial Form, and Connections to Nature

    Webinar

    Register for Free
  • Homes that Last: How Architects Are Designing a Resilient Future

    Webinar

    Register Now
All Events