Now in season three of ArchitectChats, we are continuing our Dissecting the Code series, which highlights leaders and initiatives in the AEC profession that are ensuring the structures that we design meet the evolving demands of today’s world.

Mark Clayton

James Haliburton
The high level of creativity and people skills required in the design profession means that architects can rest assured that their jobs are safe from automation. However, few would argue that some of the rote aspects of the building construction workflow could be improved by automation. The structured and repetitive nature of code review makes it a natural candidate for the machines, thus freeing up time for architects to pursue more thought-provoking endeavors and expediting the review process overall.
Only recently have the stars—robust BIM platforms, cloud computing, and digital technology—aligned to enable code compliance to be automated effectively, says Mark Clayton, founder and CEO of Smartreview Inc., based in College Station, Texas. In this podcast, Clayton, also an architecture professor at Texas A&M University, discusses his company’s development of Automated Plan Review (APR), a cloud-based software that checks building information models against key chapters of the International Building Code.
Also on the podcast is James Haliburton, AIA, a principal at the firm SZH Architecture, based in Bryan, Texas. A former doctoral student of Clayton’s, Haliburton has been a beta tester of APR since last summer.
Episode 20: Dissecting the Code, Part 5 – Code Review, Meet Automation, featuring Mark Clayton and James Haliburton, is available on SoundCloud and on iTunes.
Resource:
Smartreview Inc.’s YouTube channel offers several APR demonstrations and tutorials.

Courtesy Smartreview Inc.
Sample APR report for a Revit model

Courtesy Smartreview Inc.
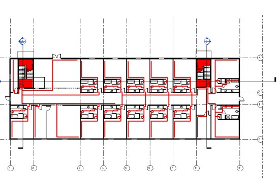
Paths of egress identified and measured in APR
This episode of ArchitectChats was brought to you by the ICC Evaluation Service, and produced by Lauren Honesty and Wanda Lau.