ZIP2516

Project Details

Project Name
ZIP2516
Architect
Studio Komma
Project Types
Mixed-Use
Shared By
Ayda Ayoubi
Project Status
Concept Proposal
Year Completed
2018
Size
32,292 ft²
Team

Project Description

FROM THE ARCHITECTS:

The dutch architectural firm Studio Komma, in close collaboration with concept-developer The Men of Foam, is the winner of the ‘’Kavel 2 ‘Urban Lab’ Challenge’’ in The Hague, The Netherlands. The winning proposal, titled “ZIP2516”, seeks to create an iconic building that is an accelerator for the transformation of an industrial area into a new energetic urban district. It combines multiple functions within a building that is fully re-mountable and re-uses an old parking garage.

A challenging mix of functions
The project is to be located on The Binckhorst, an introverted industrial area very close to The Hague that is currently transforming into a living and working district. ZIP2516 is a concept where social and commercial entrepreneurship will meet, and is combined with a multi-functional public space.

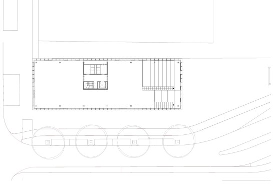
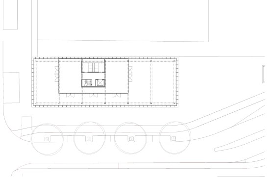
The ground floor of the building accommodates the flagship store of a social entrepreneur, Happy Tosti. On the first floor is a public square, the ‘urban play ground’, covered by two floors of office space for start-ups. On top, the program is completed by a special ginbar with roof terrace.

In the design, the program is stacked and projected on the plot, and is partially lifted to make room for the public square. Next, the ground floor is modified in such a way that it creates a welcoming gesture to its users and visitors. With this iconic building, the team wants to add both economically and socially value to the area, and become a genuine accelerator for the transformation of the area.

A circular building as a Lego-package
The competition brief calls for a building that can activate the location for 10 years, after which it is decided whether the building remains permanently. This requirement challenges to think about temporary structures that have a permanent high quality. The team decided to make a building on the principle of a Lego-package. Smart structural joints ensure that the building can be dismantled at an elementary level. After ten years, if needed, the whole building can be moved and re-mounted at a new location to boost the urban and/or regional economy. A circular construction principle based on value preservation, and adaptable to future developments.

Urban mining: an old parking garage re-used
ZIP2516 is carefully designed so that an old parking garage can be reused almost completely. By making clever use of the donor building, the components (floors, beams, railings) can be reused in different ways for the realization of the ground floor and the urban playground. Following the Lego principle, the donor parts are also made removable, and can move to the next location.

The jury has assessed the proposal as “a plan with guts” and as a real eye-catcher focusing on the future users of the area. City Counsel Member Revis: "It’s a good innovative concept that fits the developments Binckhorst and is an asset to the area around the Binckhorst Harbor. The area will be further refurbished in the near future, and developed more and more into an area to work, live and recreate."

Upcoming Events

  • Build-to-Rent Conference

    JW Marriott Phoenix Desert Ridge

    Register Now
  • Reimagining Sense of Place: Materiality, Spatial Form, and Connections to Nature

    Webinar

    Register for Free
  • Homes that Last: How Architects Are Designing a Resilient Future

    Webinar

    Register Now
All Events