Zarafshan Villa

Project Details

Project Name
Zarafshan Villa
Location
N.12, Anahita St, Akhgari St, Fereshte St, ValiAsr St, ParkwayTehranIRAN0098
Architect
MADO ARCHITECTS
Project Types
Single Family
Shared By
MADO
Project Status
Concept Proposal
Year Completed
2018
Style
Modern
Team
Architect: Mado Architects

Project Description

Head Architect : Maziar Dolatabadi

Lead Architect : Moein Nikaeen

3D Design & Rendering : Saeid Yousefvand

Drawing : Tina Shahnazari

Sahar Samadi

Soroush Ketabi

Sarah Soleymani

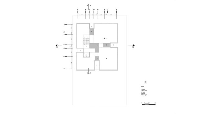
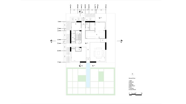
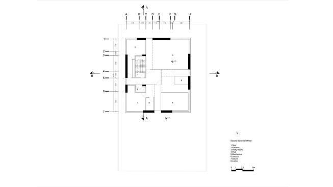
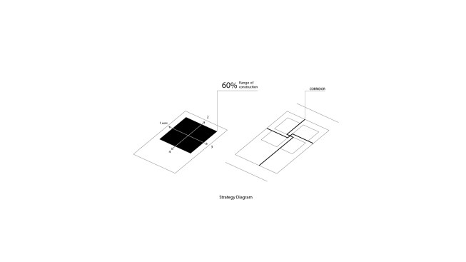
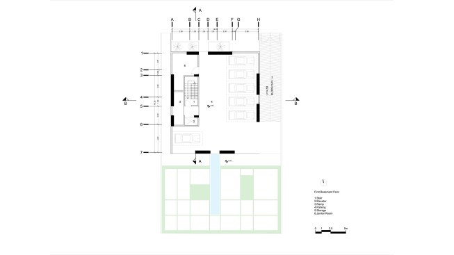
In this project, the client requested a neo-classic building with four separate sections. The design team decided to match the client’s need with his characteristic type and develop the classic structure with a new expression of the past architecture. By studying the past architecture, we attempted to establish a symbiosis between past and present through a representation of Chahar-Bagh Arche-type. By emphasizing the main axis of the Chahar-Bagh, we created a void between the building that allowed light and landscape into it which connected the ground to the sky. The voids are defined from the roof to the lower part of the building continuously,

connecting north to south, east to west and top to bottom of the project. The villa has two floors above the ground level and two floors below it. The lower levels are dedicated to the facilities, sports and social program and the upper ones are to the public and private residential program. The spatial arrangement of the Zarafshan villa around orthogonal views taken from the axis of the Persian garden, emphasizing the four divisions and their extension into the courtyard, connects the courtyard to the building and connects the interior and exterior using empty spaces.

Upcoming Events

  • Design Smarter: Leveraging GIS, BIM, and Open Data for Better Site Selection & Collaboration

    Live Webinar

    Register for Free
  • Slate Reimagined: The Surprising Advantages of Slate Rainscreen Cladding

    Webinar

    Register Now
  • The State of Residential Design Today: Innovations and Insights from RADA-Winning Architects

    Webinar

    Register for Free
All Events