Zambezi Estate – Villa 21

Project Details

Project Name
Zambezi Estate – Villa 21
Architect
BasaboseStudio
Project Types
Single Family
Shared By
MrBasabose
Project Status
On the Boards/In Progress
Style
Modern
Team
Head of Design: Nicolas-Patience Basabose

Project Description

Zambezi Estate is a leafy compound of 22 unique villas and 60 apartments on two low-rise blocks in in the East of Port Louis in Mauritius.

10 different design firms were recruited to design 22 distinctive villas with two projects each. The brief came with a strict budget for all projects and a preselected palette of materials used for the construction of the whole estate. A simple palette of exposed concrete with different surface finishes and local hardwoods is employed throughout the estate, producing low maintenance buildings with an aesthetic that will weather charmingly with time. Rammed earth is a construction technique used to complement the main materials, notably naked concrete and wood. It is the accent touch for all the projects.

Villa 21 and 22 were allocated to BasaboseStudio on two completely different plots in the estate and two different models in the project.

Villa 21 is built on a sloped site where views are projected onto the distant leafy horizon on the island nation.

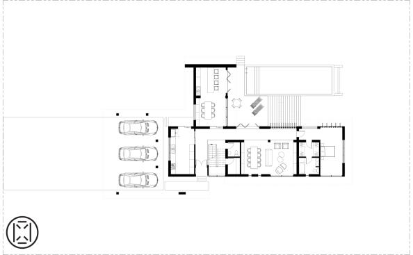
Greeted by an open garage covered with a concrete roof planted with wild native grasses, you are welcomed by two distinct entrances to the main house from both right and left sides of the parking

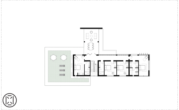
A paved passage on the left guides to the kitchen back door for quick access and another on right guides to the main entrance that opens to a glazed staircase leading to private spaces above. The first floor contains a kitchen, guest room and storage at the entrance. An L-shaped concrete passage directs to the dining and living areas and stops at the door of the ground floor master bedroom with views to the Eastern rising sun. Facing the staircase is a door leading to the entertainment room, a dining area and a bar. NanaWall folding doors open to the floating pool with its sided monumental concrete staircase inviting to the slopped garden below.

The glazed staircase offers a visual continuity of the concrete passage way on the first floor giving three directions. To the left, a self-contained bedroom and to the right, a play of light and shadows from the intermittently glazed wall points to the shared bathroom and two bedrooms, while the passage just like on the floor below, stops at the door of the 2nd identical master bedroom. Straight ahead, a folded door opens to the elevated entertainment balcony from where the sundowner garden looking West located above the garage is accessible.

A play of hide and seek between the house and the sun is carefully executed using different tools, both natural and man-made or a hybrid mixture of the two. The trees found on the site and others tactically added shade the house against the harsh tropical sun. A regiment of perforated wooden brise-soleils were deployed to protect the Northern glazed façade as louvers in calculated positions without closing off the views from the inside, while the sun shaded Southern façade is left open to bathe interior spaces with natural light all day long.

The heavily planted estate is reminiscent of a forest strategically invaded by human habitats, thus offering plenty of privacy for all inhabitants.

Upcoming Events

  • Design Smarter: Leveraging GIS, BIM, and Open Data for Better Site Selection & Collaboration

    Live Webinar

    Register for Free
  • Slate Reimagined: The Surprising Advantages of Slate Rainscreen Cladding

    Webinar

    Register Now
  • The State of Residential Design Today: Innovations and Insights from RADA-Winning Architects

    Webinar

    Register for Free
All Events