Zambezi Estate Club House

Project Details

Project Name
Zambezi Estate Club House
Architect
BasaboseStudio
Project Scope
New Construction
Shared By
MrBasabose
Project Status
On the Boards/In Progress
Year Completed
2020
Style
Modern
Team
Head of Design: Nicolas-Patience Basabose

Project Description

Conceived as a playground for residents of the Zambezi Estate in the East of Port Louis in Mauritius is a leafy compound of 22 unique villas and 60 apartments on two low-rise blocks.

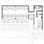
Designed primarily for the apartment dwellers, the club house is open to all residents and guests and comprises of 3 function areas. The main mass contains the entertainment area and lounges and the small mass contains services like restrooms, the kitchen with its storage room and a dining/lounge area. The main attraction of the club house is the pool and its landscaped surroundings, with its randomly elevated concrete benches extracted from the pathways going around the site offering glorious views towards the hilly scenery.

Even though each of the 22 villas have private swimming pools, under the tropics, it was only plausible to provide such amenities to other residents restricted by the verticality of their apartments. This space is suited to people that enjoy life on a lively and vibrant island where residents can escape to appreciate the outdoors away from their balconies and truly connect as a community.

The building is a showcase of one of the prominent materials in the reduced palette used for the construction of the whole estate. Rammed earth is a construction technique used to complement the main materials, notably naked concrete and wood.

The expressive textures of the rammed earth walls give the space both a warm and cooling atmosphere linking it to the earth and the leafy natural surroundings.

The concrete columns and concrete corner walls support the flat concrete roof topped by green grass, emulating a common element on the site, the trees. This allowed for semi-structural rammed earth walls to wrap the masses offering floor to ceiling glazing section to allow sunlight deep inside the volumes and also facilitate cross ventilation.

An extra block is meant to be added to the club house to contain the communal gym and showers to form the final U-shape construction around the pool.

Upcoming Events

  • Design Smarter: Leveraging GIS, BIM, and Open Data for Better Site Selection & Collaboration

    Live Webinar

    Register for Free
  • Slate Reimagined: The Surprising Advantages of Slate Rainscreen Cladding

    Webinar

    Register Now
  • The State of Residential Design Today: Innovations and Insights from RADA-Winning Architects

    Webinar

    Register for Free
All Events