Yuma Heritage Library

Project Details

Project Name
Yuma Heritage Library
Location
YumaAZ
Architect
Studio Ma
Project Types
Project Scope
Renovation/Remodel
Shared By
UGC User
Project Status
Built
Year Completed
2008
Size
21,000 ft²

Project Description

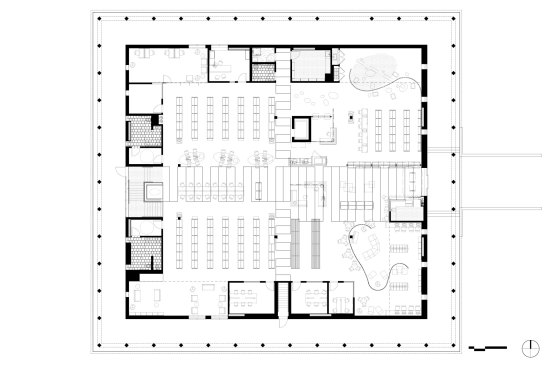
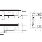
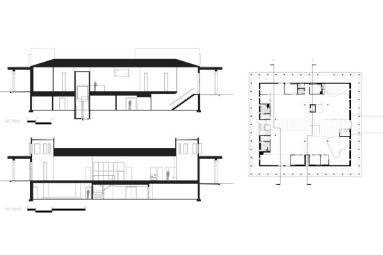
Originally the Main Library, a Carnegie town library and square that underwent a major addition in the 1960's, the goal of the project was to restore its once prominent standing as a social destination and focal point for all ages in downtown Yuma. The renovation provides 21,000sf of new library space including a large, central reading room with flanking meeting rooms of specifically programmed areas for Children, Teens and Elders, a cafe and retail space for the Friends of Yuma Library. Studio Ma created a daylighting strategy that transformed the scale and quality of the interior and exterior of the library by adding four double height light 'monitors'. The design of this state of the art facility reflects the community's desire for a contemporary library that acknowledges its historic standing in Yuma. Local points of pride such as the Colorado River, the Gila Trail and the local tale, 'Roxaboxen' are woven into the project through physical and representational references providing a lens through which to understand the changing nature of the community. Yuma Crossing, the legacy of the Colorado River and the Santa Fe Trail in the history of Yuma inspired the plan of the library, organized along this 'crossing' in quadrants with curviliear screen walls made of coiled metal fabric designating the Teen's area and the Children's area. Studio Ma drew inspiration from 'Roxaboxen' by author Alice McLerran, a native of Yuma, Arizona, in the selection of furnishings, manipulatives, interactive lighting and a magnetic screen wall – all elements to foster interactive place making.

Upcoming Events

  • Design Smarter: Leveraging GIS, BIM, and Open Data for Better Site Selection & Collaboration

    Live Webinar

    Register for Free
  • Slate Reimagined: The Surprising Advantages of Slate Rainscreen Cladding

    Webinar

    Register Now
  • The State of Residential Design Today: Innovations and Insights from RADA-Winning Architects

    Webinar

    Register for Free
All Events