York University’s School of Continuing Studies

Project Details

Project Name
York University’s School of Continuing Studies
Architect
Perkins & WIll
Project Types
Institutional
Project Scope
New Construction
Project Status
Built
Year Completed
2022
Size
97,000 ft²

Project Description

This project was selected as a Merit winner in ARCHITECT’s 2024 Architecture & Interiors Awards, Architecture: Institutional category.

“I appreciate its subtle singularity, and the understanding of the site and relationships was nice.” –Juror John Frane

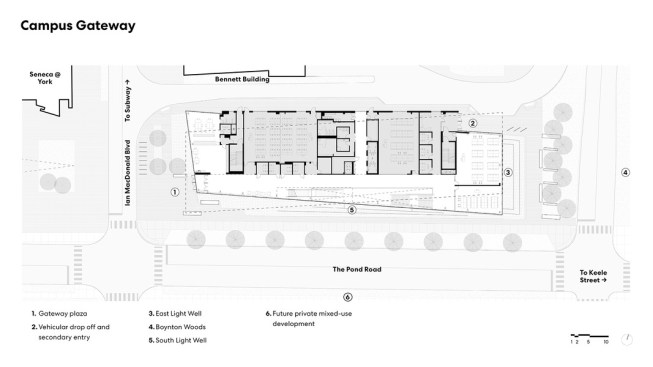
Despite being one of Canada’s largest institutions of its kind, York University’s School of Continuing Studies was previously scattered across multiple temporary locations on campus. This was a significant issue for its students, who primarily attend classes in the evenings and on weekends. To address this, the University identified the need for a dedicated building to establish the School’s identity, create a campus gateway, and meet ambitious sustainability goals.

The new building features a bold, twisting form derived from a simple geometric principle. By rotating rectangular floorplates around a central point, a two-way curve is created on the North and South facades. This rotation results in a triangulated panel pattern that utilizes regular and biaxial symmetry, allowing for repeated panel shapes on all facades.

Inside, program containers are set back from the triangulated exterior, creating adaptable classroom spaces. Informal gathering areas between these containers and the exterior foster a sense of community and belonging. Large glazed screens with custom frit control views and allow daylight to penetrate, enhancing occupant health and well-being. The ground floor’s full glazing establishes a visual connection between the campus exterior and the building’s interior, showcasing the School’s culture and promoting visible learning.

Central to the project are goals to reduce embodied carbon and enhance occupant health through intelligent resource use. The design, aiming for LEED Gold certification, supports a future campus-wide switch to renewable energy. Key strategies include an airtight prefabricated building envelope, direct outdoor air ventilation, and active chilled beams. These high-efficiency design strategies, combined with advanced HVAC and energy systems, significantly reduce energy loads, aiding the project in achieving its Net-Zero Energy target.

This innovative twisting design successfully meets the objectives of creating a distinctive home for the School of Continuing Studies, promoting energy efficiency, enhancing occupant well-being, and contributing to campus development.

PROJECT CREDITS:
Project: York University School of Continuing Studies
Location: Toronto, Ontario
Client/Owner: York University

Perkins&Will Architect (include team member names, their titles, and any relevant AIA designations):
1. Safdar Abidi, Principal-in-Charge, OAA, ALBNL, MRAIC, LEED® AP BD+C
2. Dan McTavish, Project Architect, Design Principal, Associate, OAA, MRAIC, LEED® AP BD+C, Certified Passive House Designer
3. Alan Mortsch, Project Manager, OAA
4. Andrew Frontini, Design Director, Principal, OAA, NSAA, FRAIC, LEED® AP BD+C
5. Jon Loewen, Design Principal, OAA, MRAIC, LEED® AP BD+C, Certified Passive House Designer
6. Gayle Meeks, Technical Director, Associate, LEED® AP BD+C

Construction Start Date: March 2020
Construction End Date: December 2022

Perkins&Will Interior Designers:
1. Tsvetelina Rabashki, ARIDO, NCIDQ, LEED® AP
2. Martha del Junco, ARIDO, NCIDQ, LEED® AP ID+C

Mechanical Engineer:
• Smith + Andersen

Structural Engineer:
• Entuitive

Electrical Engineer:
• Smith + Anderson Associates Ltd

Civil Engineer: RV Andersen

General Contractor:
• Aquicon Construction

Landscape Architect:
• DTAH

Lighting Designer:
• Smith + Andersen

Acoustics
• Smith + Andersen

Building Envelope
• RDH

Code
• David Hine Engineering

Signage / Wayfinding
• York University and Suria Design Studio

Fire & Life Safety
• David Hine Engineering Inc. did the code work.
• Smith + Andersen designed the fire alarms

Size in Square Feet: 97,000 square feet
Cost: $57.6 million

MATERIALS AND SOURCES
Acoustic Wall Panels: Kirei USA
Acoustic Ceiling Tiles: Armstrong
Adhesives, Coatings and Sealants: Tremco
Bathroom Fixtures: American Standard, Zurn
Carpet: Carpet Tile: Tarkett
Cabinets: Second Generation Furnishings
Custom Millwork Slat Ceiling: Second Generation Furnishing
Sealed Concrete Floor: W.R. Meadows
Countertops: Dupont Corian, Caesarstone
Exterior doors: Alumicor
Interior door: Lambton
Exterior Wall Systems: Alumicor
Flooring (Stone Treads): Ciot; (Static Dissipative Tile): American Biltrite; (Tactile Warning Surface): Kinesik
Glass: Carey Glass
Gypsum: Certainteed
HVAC: HTS
Insulation: Soprema, John Manville
Lighting Control Systems: Cooper Lighting Solutions
Lighting: Eaton, Cooper
Masonry and Stone: Brampton Brick
Millwork (Back of House): Panolam; (Front of House): Abet Laminati
Metal Skirting Boards: Profilitec
Paint: Dulux
Plumbing and Water System: Zurn
Roofing: Johns Manville
Structural System: Mirage Steel
Waterproofing: Soprema
Windows: Alumicor

Photographer 1: Tom Arban | e: info@tomarban.com | t: 416-566-9409
Photographer 2: Younes Bounhar | e: younes@doublespacephoto.com | t: 647-640-4868
Photographer 3: Lisa Logan | e: lisaloganphotography@gmail.com | t: 416-894-0040

Upcoming Events

  • Design Smarter: Leveraging GIS, BIM, and Open Data for Better Site Selection & Collaboration

    Live Webinar

    Register for Free
  • Slate Reimagined: The Surprising Advantages of Slate Rainscreen Cladding

    Webinar

    Register Now
  • The State of Residential Design Today: Innovations and Insights from RADA-Winning Architects

    Webinar

    Register for Free
All Events