Writers Theatre

Project Details

Project Name
Writers Theatre
Project Types
Cultural
Project Scope
New Construction
Shared By
katie_gerfen
Project Status
Built
Year Completed
2016
Size
36,000 ft²

Project Description

2017 AIA Institute Honor Award Winner in Interior Architecture

It’s been a long journey for director and actor Michael Halberstam: What he launched in the early 1990s as an offbeat experimental theater—operating, at its inception, in the cramped back room of a bookstore—has become a staple of the regional cultural scene, and now it finally has a home commensurate with its stature. At 36,000 square feet, the new Writers Theatre in Glencoe, Ill., designed by Chicago architect Jeanne Gang, FAIA, is a major presence in the leafy village-like community, and about as far from that long-ago bookstore as one could plausibly get.

An elegantly understated composition in wood and glass, the project seems to break the cardinal rule of theater design by not simply being a hermetic, windowless block. From the fully glazed and high-ceilinged lobby, to the lofted catwalk where playgoers can loiter and take in the surrounding views, to the sliding glass doors that allow the building to be instantly converted to an indoor-outdoor performance space, the project is an experiment in permeability. That continuity with the landscape is further emphasized by a box office and concession stand made from wood sourced on site.

In keeping with the company’s enduring commitment to head-on, up-close encounters with the lively arts, the two main venues—a 250-seat thrust stage and a 99-seat black box—place visitors in unusual proximity to the stage, almost reversing the spectator-performer relationship, as the building itself turns the theatrical experience inside out. – Ian Volner

Project Credits
Project: Writers Theatre, Glencoe, Ill.
Client: Writers Theatre
Architect: Studio Gang Architects, Chicago . Jeanne Gang, FAIA (founding principal); Mark Schendel, AIA (managing principal); Juliane Wolf (design principal); Angela Peckham (project architect); Margaret Cavenagh, AIA (principal, interior architecture); Harry Soenksen, AIA (senior director, technical); William Emmick, AIA (senior director, operations); Claire Cahan (studio design director); Michan Walker, Rodia V. Sánchez, AIA (senior project leaders); Kara Boyd (project architect); Maciej Kaczynski, Rolf Temesvari, Lindsey Moyer, Christopher Vant Hoff, Stephen Claeys (design team)
General Contractor: W.E. O’Neil Construction Co.
Owner’s Counsel: AMS Planning & Research Corp.; VMS
Theater Consultant: Auerbach Pollock Friedlander
Landscape Architect: Coen + Partners
M/E/P/FP Engineer: dbHMS
Structural Engineer: Halvorson and Partners
Lighting Consultant: Lightswitch Architectural
Engineering Specialist: Peter Heppel Associates
Civil Engineer: SPACECO
Geotechnical Engineer: Holmes Testing
Graphic Designer: Thirst
Acoustical Consultant: Threshold Acoustics
Timber Specialist: Trillium Dell Timberworks
Cost Consultant: Venue
LEED/Sustainability Consultant: WMS Consulting Engineers
Size: 36,000 square feet
Cost: $28 million

To see the rest of ARCHITECT’s coverage of the 2017 AIA Institute Honor Awards, click here.

From the April 2016 issue of ARCHITECT:

Text by Thomas de Monchaux

“God must love gunnery and architecture, if Euclid is his only geometry,” observes the heroine of Arcadia, the Tom Stoppard play with which the Writers Theatre of Glencoe, Ill., inaugurated its new 36,000-square-foot, $28 million building by Chicago architect Jeanne Gang, FAIA. But, the heroine continues, “there is another geometry which I am engaged in discovering.” Stoppard’s passionately brainy drama—about rationalism and romanticism, scholarship and courtship—features an essential definition of the complex, post-Euclidean form-finding that drives much of contemporary design (perhaps including, literally or evocatively, some of the intricate geometries in Gang’s own work). The methods of Stoppard’s heroine, a 19th-century mathematical prodigy, are summarized by her descendant: “Every time she works out a value for y, she’s using that as her next value for x. She’s feeding the solution back into the equation, and then solving it again. Iteration, you see.”

“The first iterations were gorgeous,” recalls Writers Theatre artistic director and co-founder Michael Halberstam, of Chicago-based Studio Gang Architects’ early schemes for the building’s 250-seat main stage, “but unperformable.” Studio Gang’s design team had auditioned for the gig, he notes, with something of a performance of their own: “They were sort of like a music video when they walked into the room. They were all in black, either on purpose or by accident,” and—high praise from a director—“there was a slight drama to it.” Because of the kind of drama in which the Writers Theatre had historically specialized, the main stage was not to be the traditional framing—but distancing—proscenium, but a low thrust stage. Bringing actors and audience in close contact would preserve what Gang describes as, “the feet-on-the-stage intimacy,” of the theater’s former home on this site at the edge of Glencoe’s commercial center, a Neo-Georgian private library and clubhouse that, for all its charm as a local landmark, seated far smaller audiences and lacked essential support spaces and services.

To solve the thrust stage, remembers Gang, “We mocked up the space in a gym, laying it all out with tape and string, and after that exercise we ended up shifting the geometry,” to better accommodate how actors would position themselves onstage. Halberstam says, “We had to get up on ladders and stools and tiptoes” in the gym to ensure intimate sight lines from the audience and between performers. “A stage has to work as a stage,” he says, “but it also has to work as a room within a room.” His unamplified but resonant voice, as he says those words from the stage in question, attests to how much the place sounds like a room, too, thanks in part to iterative testing of the iterative patterns of masonry lining its back walls—made of bricks that, in another kind of iteration, were salvaged during demolition of the site’s old Neo-Georgian building.

That intention for intimacy extended to the composition of the building as a whole, which includes a 99-seat black box theater, a large rehearsal hall, and a dramatically glassy and woodsy double-height lobby that—with two banks of tribune-style seating cleverly incorporating a box office and concessions—becomes its own kind of theater. “The lobby,” Gang says, “came about from an urban level: It’s a village, it wants to have a more pedestrian-friendly, more interactive feel, to have social space at a civic scale.” Tellingly, the word “village” might equally describe the center of Glencoe—a quaint main street anchoring leafy lanes of grand houses—or the interior landscape of the Writers Theatre itself, in which that lobby, with its attendant passageways and bridges and overlooks, feels like a small public square, defined by adjacent volumes scaled to the dimensions of the substantial private residences nearby. “We thought about street theater,” says project architect Juliane Wolf, “about the Shakespearean Globe, about theater in a courtyard—not only for the performance spaces but for the public places as well. All of a sudden the lobby is a third performance space, for talks, for events, for informal music,” which one can imagine, on a pleasant summer night, drifting out through the monumentally scaled glass doors in the lobby across the Arcadian lawns.

One of the felicities of architectural language is that the word “performance” refers equally to an entertaining or edifying event and to the material and structural capacities that, often invisibly, allow that event to happen. The Writers Theatre lobby is highly performative in both senses of the word: Those big glass doors slide under uninterrupted perimeter spans of some 50 feet between barn-like squared timber columns, sustained by timber Vierendeel trusses overhead that occupy the height of the building’s second story. The visual effect of those trusses is amplified by an outdoor walkway that loops around the lobby’s perimeter from an adjacent roof terrace; the walkway is suspended by lattice-like inner and outer structural screens of 2-by-3-inch wood tension members, angled toward alternating beam heads above, and attached to laminated veneer lumber chords below with a purely mechanical joint—no bolts, no glue—that Gang calls a “cat’s paw.” This clever and charismatic detail—like much of the gallery walkway developed alongside specialists Trillium Dell Timberworks and engineer Peter Heppel, splits and spreads the fine grain of the Port Orford cedar tension members into a kind of terminal cleat. “Every project has structural engineering,” reflects Gang, “I’m just very interested in making it part of the vocabulary of the building. I like architecture when it tells you something about how it’s made, maybe because I’m the daughter of an engineer.”

Stoppard, the son of a doctor, puts Arcadia’s heroine on the verge of envisioning an architecture that might—either in its trial-and-error making, or its subsequent formal repetition and variation, or both—reflect the complexity of biology or geology. Making such an architecture means being enough of an engineer or diagnostician to disinterestedly calculate and iterate structural and geometrical solutions until they saturate all of a building with resonance. And then—especially for architecture in the service of theater, in which appearances can matter above all—one must be enough of an artist to get interested when, however serendipitously or expectedly, those solutions look right.

The Writers Theatre, for all of its facility with iterated details, isn’t the kind of project that—sometimes to a fault—weaves every single part into the pattern of one big idea: It’s a building that has, appropriately for show business, a front and a back, an onstage and an off, in which the heroic performance in cedar and glass crisply gives way to plain cementitious plaster on the service façades outside, and to standard kit-of-parts detailing within. “You see buildings that are designed for the drama of the building,” reflects Halberstam, “and not for the performance of the space itself. What Jeanne has given us is a sense of occasion, a space of preparation,” and, in that sense, an architecture that, like Stoppard’s play, fully finds its form only in the complexities of the anticipation, perception, participation, and occupation undertaken by its audience.

FROM THE ARCHITECTS:

Writers Theatre is a popular theater company in the Chicago suburb of Glencoe, Illinois. Founded in the back room of a bookstore in 1992, Writers has embraced intimacy as its hallmark aesthetic since the very beginning. In 2003, Writers established a larger space at the Woman’s Library Club of Glencoe, but, at 108 seats, this new venue soon imposed challenges of it own. The company faced bleak economic prospects despite an enthusiastic and committed audience. They were playing close to capacity night after night, but with very few seats to sell and production costs steadily rising, they were in need of a larger, more flexible space to allow for their growth.

Meanwhile, Glencoe—a suburb 20 miles north of Chicago with a population of approximately 9,000 residents—embarked on an ambitious master plan to integrate more cultural and commercial spaces in the downtown area. At the same time, the existing but deteriorated Woman’s Library Club building was in serious need of repair. Partnering with the Woman’s Library Club and the Village of Glencoe, Writers seized the opportunity to build a custom theater center and catalyst for downtown development on the Library Club site.

The company, which plays to an audience of 35,000 patrons each season, has garnered critical praise for the consistent high quality and intimacy of its artistry. With their new permanent home, Writers wanted to ensure these hallmark traits were maintained while also accommodating a growing audience base, improving their facilities for their global community of artists, and creating new relationships with the public. The resulting design, with its transparency and flexibility, is intended to energize daily life in downtown Glencoe, creating an open, welcoming space where the potential of theater to unite people across boundaries through shared experience is rendered visible.

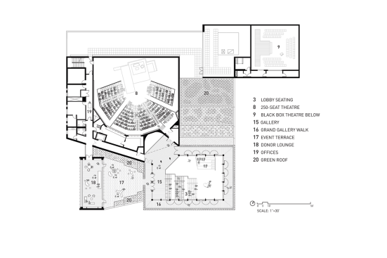
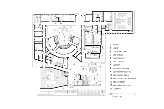
The theater is anchored by a public gathering space that serves as a lobby as well as an informal space for performance, rehearsals, and audience outreach programs, and a formal space for events. Two performance venues, a 250-seat main stage and a 99-seat black box venue, as well as rehearsal rooms and other public amenities, open to this central space. A second-floor gallery walk, providing views toward the downtown, lake, and nearby grove, is structured by timber Vierendeel trusses and a lighter wood lattice hung in tension from the primary structure. In warm weather this central hub opens to the adjacent public park and downtown, allowing the energy and interaction generated within the theater to extend outward into the community beyond. At night, it glows from within like a lantern, drawing interest and activity to this important cultural anchor and downtown Glencoe.

The design of the performance spaces is intended to maximize the sense of intimacy between actors and audience and enhance the immersive experience for which Writers is known. In the larger venue, tribune seating is liberated from the walls, inviting exciting actor entrances and other innovative staging opportunities, further enhanced by a seamless transition from theater floor to stage. In a nod to the history of the company, bricks reclaimed from the Woman’s Library Club building form an elaborately patterned back-of-house acoustic screen that diffuses and reflects sound for an intimate aural environment. The smaller black box venue can be infinitely customized for performances and events. A rooftop pavilion and green roof offer additional event space.

Writers Theatre not only serves its immediate Glencoe community but also attracts audiences from the Chicago metropolitan region and beyond. With the opening of this new cultural facility, nearly 45,000 additional people could be drawn to Glencoe each year to share in the experience of the company’s performances, community events, workshops, and gatherings, infusing the art of performance into their everyday lives.

Upcoming Events

  • Build-to-Rent Conference

    JW Marriott Phoenix Desert Ridge

    Register Now
  • Reimagining Sense of Place: Materiality, Spatial Form, and Connections to Nature

    Webinar

    Register for Free
  • Homes that Last: How Architects Are Designing a Resilient Future

    Webinar

    Register Now
All Events