Writer’s Studio

Project Details

Project Name
Writer’s Studio
Project Types
Outbuilding
Project Scope
New Construction
Shared By
mohan reddy
Project Status
Built
Size
550 ft²

Project Description

2009 RADA
Outbuilding / Merit

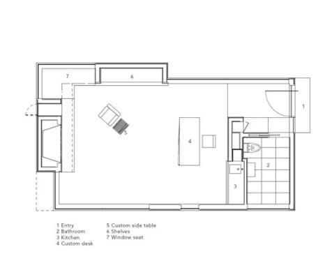
A dark, quiet, enigmatic shape in the woods, this building responds to a very simple program. “It’s mostly about reading and writing, watching the fire, and listening to music,” says Wendy Evans Joseph, FAIA, LEED AP.

But in simplicity there is power, and Joseph’s distilled forms and highly tuned surfaces imbue familiar elements with iconic force. Our judges noted the deft handling of walnut in building assemblies and sculptural custom furnishings.

Upcoming Events

  • Design Smarter: Leveraging GIS, BIM, and Open Data for Better Site Selection & Collaboration

    Live Webinar

    Register for Free
  • Slate Reimagined: The Surprising Advantages of Slate Rainscreen Cladding

    Webinar

    Register Now
  • The State of Residential Design Today: Innovations and Insights from RADA-Winning Architects

    Webinar

    Register for Free
All Events