Woodland House

Project Details

Project Name
Woodland House
Location
HamdenCT
Project Types
Single Family
Project Status
Built
Year Completed
2015
Size
2,000 ft²

Project Description

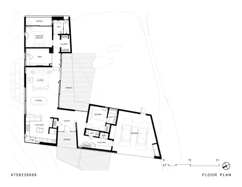
Constructed in 2016, this house for an academic couple perches on a ledge outcropping, overlooking a dramatic wetland ravine. Located on 25 forested acres in the midst of an otherwise typical suburban development, the home’s design reflects the desire of the client to inhabit a peaceful, compact forest retreat that blends into the boulders, creeks, and deciduous trees that abound on the property. Despite the generous size of the property, the architects were challenged to site the home on a relatively small building area, reckoning with steeply sloping topography and extensive wetlands in order to create a sustainably designed, low-impact 2,000 square foot home on a modest construction budget. The home’s design, organized by a compact L-shaped plan, embraces a small clearing in the forest and maximizes opportunities for views in all directions. Designed as a monolithic, sloping volume, the design team selectively subtracted volumes from the facade to create both the main entrance and a large garden porch. Partially protected from the elements, these outdoor spaces increase the livable area of the home by 50%. The center of the home features an open living, dining, and cooking space that can be fully opened to the exterior via large sliding glass doors. In contrast, bedrooms anchor either end of the single-story plan, creating three, separated private retreats with views into the forest beyond. Cantilevered from an exposed rock outcropping, the master bedroom extends into the forest and offers the clients a private, sheltered porch. Further embodying the clients’ sustainable ethos, the home features energy-efficient radiant floor heating, a spray-in closed-cell foam insulated exterior envelope, abundant natural lighting, large operable windows designed to maximize cross-ventilation, a custom-designed cypress screen to reduce heat gain along a glazed, polycarbonate entry wall, a fully-planted green roof to reduce run-off and provide additional thermal mass, and an intentionally minimal landscaping strategy that is largely maintenance-free and creates space for a small vegetable garden. Efficient, sustainably designed, and built to sit lightly on the land, this home is designed to complement and preserve its natural surroundings.

Upcoming Events

  • Design Smarter: Leveraging GIS, BIM, and Open Data for Better Site Selection & Collaboration

    Live Webinar

    Register for Free
  • Slate Reimagined: The Surprising Advantages of Slate Rainscreen Cladding

    Webinar

    Register Now
  • The State of Residential Design Today: Innovations and Insights from RADA-Winning Architects

    Webinar

    Register for Free
All Events