Wood House

Project Details

Project Name
Wood House
Project Types
Project Scope
New Construction
Shared By
mkrochmal
Project Status
Built
Year Completed
2014
Size
7,900 ft²

Project Description

Custom Home / Over 3,000 Square Feet / Citation
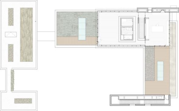
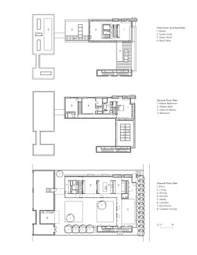
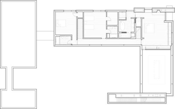
Brad Lynch of Chicago-based Brininstool + Lynch convinced his client that a new custom home would suit his needs better than the adapted warehouse he wanted with a tried and true method of architectural persuasion: the napkin sketch. Lynch used a limited palette of materials in his design for the 7,900-square-foot courtyard house, a design that combines industrial-sized spaces with the refined details of a bespoke home. Brick façades behind a Cor-Ten fence give way to warm wood-lined interiors, while granite pavers and ground-level glazing connect inhabitants to a landscaped central courtyard. Upstairs, copper privacy screens admit filtered light while repelling curious eyes. A third-floor guestroom and office open up to a partially planted roof deck with views to the courtyard below and to the surrounding Bucktown neighborhood. The jury responded to the high degree of craft evident in the Wood House, with juror Joel Sanders citing the virtues of “control, execution, implementation, and detail.” Juror Cary Bernstein agreed, adding that “the execution is really impeccable.” —Deane Madsen, Assoc. AIA

Upcoming Events

  • Slate Reimagined: The Surprising Advantages of Slate Rainscreen Cladding

    Webinar

    Register Now
  • The State of Residential Design Today: Innovations and Insights from RADA-Winning Architects

    Webinar

    Register for Free
  • Specifying Smarter with Copper-Clad Aluminum (CCA) Metal-Clad Cable

    Webinar

    Register for Free
All Events