WMS Boathouse

Project Details

Project Name
WMS Boathouse
Location
3400 North Rockwell StreetChicagoILUnited States60618
Project Types
Community
Project Scope
New Construction
Shared By
ahennes
Project Status
Built
Year Completed
2013
Size
22,620 ft²

Project Description

Text by Ian Volner

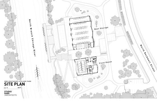
The Chicago River was key to the development of its namesake city, forming part of the network of waterways that connected the Mississippi River to the Great Lakes and eventually linked America’s rural West and commercial East. That also made it a heavily trafficked commercial corridor and, consequently, a heavily polluted one. It’s a legacy the city is now struggling to address with a major redevelopment plan that includes the WMS Boathouse at Clark Park. Local fixture Jeanne Gang, FAIA, along with her multidisciplinary collaborators at Studio Gang Architects, has given the city a major new hub from which the long term remediation of the historic riverfront can spread.

The first of four such boathouses (the last is slated for completion this year), the WMS complex includes two structures—one for renting canoes and kayaks, the other for indoor exercise equipment. Faced in a zinc-and-slate façade system, touched with details in Douglas fir, and sporting an irregularly gabled roofline, the ensemble seems both rustic and sophisticated, a citified, 21st-century update on the kind of public facilities common in American parks around the turn of the previous century. Most important, the building operates not only as a social magnet but serves as an infrastructural node in the revival of the Chicago River, redirecting stormwater runoff down into a carefully engineered substrate that allows it to pass slowly through detoxifying layers of gravel and soil before it filters back into the river. An outstanding instance of Gang’s innate sense of stylistic panache, the project also demonstrates her dedication to putting architecture at the service of her hometown.


Project Credits
Project: WMS Boathouse at Clark Park, Chicago
Client/Owner: Chicago Park District
Architect: Studio Gang Architects, Chicago . Jeanne Gang, FAIA, Mark Schendel, AIA (partners); William Emmick, AIA (project architect); John Castro, Juan de la Mora, Jay Hoffman, Wei-Ju Lai, Angela Peckham, Christopher Vant Hoff, Michan Walker, Todd Zima (team members)
M/E/P Engineer/Lighting Designer: dbHMS
Structural Engineer: Matrix Engineering Group
Civil Engineer: Spaceco
Riverfront Civil Engineer: AECOM
General Contractor: Schaefges Brothers
Landscape Architect: Terry Guen Design Associates
Roofing Contractor: M Cannon Roofing
Slate and Zinc Contractor: Mortenson Roofing Co.
Plywood Contractor: Wendell Builders
Size: 22,620 square feet
Cost: $8.8 million

This article appeared in the May 2016 issue of ARCHITECT magazine.

(April 2014)

On the river’s edge in Chicago’s Clark Park, lies the WMS Boathouse, a two-story 20,000-square-foot rowing, training and boat storage facility that is home to the Chicago Rowing Foundation and North Park University’s women’s rowing team.

Studio Gang Architect's dynamic design of the boathouse mirrors the motion of crew members rowing. The boathouse is a year-round training facility that includes a row tank and ergometer work out space, a community room and offices. The roof’s design features an alternating roof truss system with windows that capture the southern light into the building, provide sufficient ventilation and abundant daylight, while the high performance glazing on the glass warms the floor slab in the winter to minimize energy use. The project is targeting LEED Silver Certification. Guardian SunGuard SNX 62/27 was selected to deliver energy savings and abundant daylight while earning points towards LEED certification.

Upcoming Events

  • Design Smarter: Leveraging GIS, BIM, and Open Data for Better Site Selection & Collaboration

    Live Webinar

    Register for Free
  • Slate Reimagined: The Surprising Advantages of Slate Rainscreen Cladding

    Webinar

    Register Now
  • The State of Residential Design Today: Innovations and Insights from RADA-Winning Architects

    Webinar

    Register for Free
All Events