Westport River House

Project Details

Project Name
Westport River House
Location
WestportMA
Project Types
Shared By
dmadsen
Project Status
Built
Size
3,000 ft²

Project Description

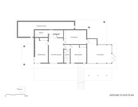
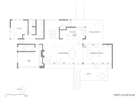
This gregarious couple entertains frequently, so the house was required to be equally comfortable for a house full of friends, children, and grandchildren as it would be for just the two of them. The main level also had to be designed to be fully accessible, so that the house can eventually become their full-time retirement home, and includes an open loft-like living/dining/cooking space, contiguous screened living/dining space, adjacent grilling and lounging decks, home office for his construction business, and master suite. On the ground floor, the owners required two guest bedrooms with shared sitting room and bath, as well as a large storage area for boats and outdoor furniture.

The design consists of two long, low bar-buildings that conceptually float above the site, sliding past each other to enhance views and cross ventilation. The river-side bar has a ten-foot high, eighty-foot long continuous wall of glass facing the river, while the inland bar is lower and largely solid, with selective openings framing carefully edited views of the wooded portions of the property. Both bars are cantilevered off of the existing foundations below, enhancing the floating effect. Between these two forms is a compact circulation zone that terminates at one end in a floor-to-ceiling window facing the woods; the main roof drain is directly above, creating a waterfall that spills into a rectangular bed of river rock in the landscape below.

To keep costs down, the massing is simple, circulation space is minimal, spaces are located and laid out so that they can have multiple functions, and the generous amounts of glazing create an openness that belies the small footprint.

Upcoming Events

  • Design Smarter: Leveraging GIS, BIM, and Open Data for Better Site Selection & Collaboration

    Live Webinar

    Register for Free
  • Slate Reimagined: The Surprising Advantages of Slate Rainscreen Cladding

    Webinar

    Register Now
  • The State of Residential Design Today: Innovations and Insights from RADA-Winning Architects

    Webinar

    Register for Free
All Events