Westport River House

Project Details

Project Name
Westport River House
Location
99 Cummings LaneWestportMAUnited States02790
Project Types
Shared By
William
Project Status
Built
Year Completed
2011
Size
2,500 ft²

Project Description

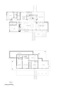
Built on a gentle slope on the Westport River, less than a mile from the coast in southeastern Massachusetts, is an unabashedly modern glass house designed for a well known Cambridge general contractor and his wife. Mature oaks and cedars define the property edges and frame dramatic sunset and island views. The architecture expresses the owners’ gregarious way of life, and accommodates their passions for cooking and entertaining their large group of devoted friends.

The house is technically a renovation, recycling an earlier faux “Saltbox Colonial” house’s foundation. Conceptually, two long, low bar-buildings float above sculpted lawn terraces stepping down to the river, sliding past each other to enhance views and cross ventilation. The river-side bar has a ten foot high by eighty foot long continuous wall of glass that frames views of the river, while the inland bar is shorter and more solid, with windows opening to carefully edited views of the woods. Between the two bars is a compact circulation zone that terminates at one end in a floor-to-ceiling window facing the woods; the main roof drain is directly above, framing a rain-waterfall that spills into a steel-framed, rectangular bed of river rock in the ground below.

To control costs, massing and finishes are simple, circulation space is minimal and square footage is limited, all spaces are multi-functional, and details are contemporary riffs on traditional New England conventions. The overall openness as well as the large proportion of glazing helps the house feel much larger than its actual square footage. On the upper level is an open living/dining/cooking space, contiguous screened living/dining space, separate exterior decks for cooking and gathering, a home office that doubles as guest room, and a master suite with en suite bath and wall of built-in walnut cabinetry. Newly designed within the existing basement walls are two bedrooms with shared sitting room and bath, as well as a large storage area with slatted walls for boating and beach storage, built below the screened porch.

Upcoming Events

  • Design Smarter: Leveraging GIS, BIM, and Open Data for Better Site Selection & Collaboration

    Live Webinar

    Register for Free
  • Slate Reimagined: The Surprising Advantages of Slate Rainscreen Cladding

    Webinar

    Register Now
  • The State of Residential Design Today: Innovations and Insights from RADA-Winning Architects

    Webinar

    Register for Free
All Events