West Shokan, N.Y., Residence

Project Details

Project Name
West Shokan, N.Y., Residence
Project Types
Custom
Project Scope
New Construction
Shared By
Mahesh Rajanala
Project Status
Built
Size
3,500 ft²
Room or Space

Project Description

2006 CHDA
Custom Home 3,000 to 5,000 Square Feet / Merit Award

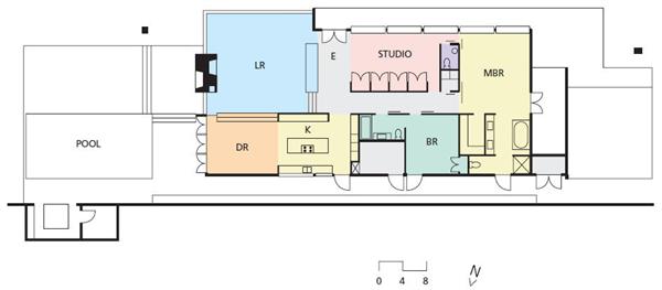
Along with spectacular views, the site of this weekend home in New York’s Catskill Mountains presented a stiff siting challenge: a precipitous slope underpinned by solid bedrock. Architect Audrey Matlock opted for a direct approach that also became the project’s central organizing principle. “We took a slice out of the hill and ran this 200-foot retaining wall,” she explains. The excavation produced a flat shelf on which to perch the building, a swimming pool, and some beautifully spare outdoor spaces. The retaining wall, 13 feet high and broken only by a cave-like opening for a walled spa area, provides a backdrop to the north that is as compelling in its way as the view that it faces.

The entry sequence leads guests along the south wall of the house, so they experience the topography, the view, and the architecture before they reach the front door. Inside, the house presents a radically abbreviated suite of materials: pigmented concrete at the floors, gray slate tile at the bearing walls, and dark-stained oak for partitions and cabinetry. The grayscale interior contrasts dramatically with the full-color world outside. The concrete floor spreads beyond the house to the outdoor living spaces. A massive beam that supports the roof at the living room follows suit, piercing the glass wall and lending a bit of enclosure to a patio area that also includes an outdoor fireplace.

The judges were particularly impressed with the house’s minimalist detailing, its fluid relationship between indoor and outdoor spaces, and its restrained palette of colors. Said one, “It’s the unusual gray-and-white house that’s somehow still warm.”

Upcoming Events

  • Design Smarter: Leveraging GIS, BIM, and Open Data for Better Site Selection & Collaboration

    Live Webinar

    Register for Free
  • Slate Reimagined: The Surprising Advantages of Slate Rainscreen Cladding

    Webinar

    Register Now
  • The State of Residential Design Today: Innovations and Insights from RADA-Winning Architects

    Webinar

    Register for Free
All Events